查看完整案例


收藏

下载
2020
届研究生毕业设计
Graduation design of 2020 postgraduate
专业:环境艺术系室内设计
年级:
2017
级
设计:李小宁
指导教师:赵建国 教授
完成时间:2020年
4
月
Renovation of Old Buildings
天马&行空基地
老旧厂房改造的服装设计孵化园
本次毕业设计的课题是把老旧工业建筑改造成为一个服装设计人才孵化空间。
项目基地位于成都武侯区的白药厂,白药厂是清末洋务运动时期的机械所,历经一百一十多年还有部分遗存,为了发挥“新遗产、新价值”的理念,对园区三栋相邻的老旧工业厂房建筑进项加固和保护性改造,让场地重新焕发生机与活力。这些老旧建筑见证了我国几个历史时期的更迭,历史的沧桑感与走在时尚和设计前端的服装创意孵化器的结合拉伸了整个项目的历史纵深感,同时特殊的人文因素也是服装创意产业孵化园的一大特点。
区位分析
/
Regional analysis
-项目地址位于成都市武侯区白药厂遗址,在武侯区高攀路26号。
-厂区地处成都市二环路以内,紧邻锦江,并有多路直达公交,距地铁七号线较近,距离成都双流机场驾车距离14.65km,距离成都东站驾车距离13.25km。
厂区人文情况
/
Humanities in the factory
建筑概况
/Building overview
通过实地考察和网络调研得到场地建筑的基本情况,建筑师砖木梁柱框架结构,青砖砌筑,外墙厚80公分,砌墙时用糯米浆做的粘合剂,由德国人设计中国人施工完成。
成都白药厂时成都地区清末建筑群和洋务运动的实物遗存,时中国近代史的一个缩影,有着无可比拟的历史价值和文化价值。白药厂厂房被列为成都市第九批批历史保护建筑目录中,是1906年建立,屹立一百一十条年并不大体破坏。
建筑加建部分
/Building addition
对有历史价值的老旧建筑的外观应该克制性设计方法,在不破坏原建筑结构的基础上对建筑的开窗方式做了一定的调整,
改变了窗户的分布方式和形式,并
进行了不规则的虚实处理。
在充分利用场地的基础上给建筑改造时加建了一部分建筑体,平面受限但是竖向尺度方面可以适当提高,外形上面以相似形以求得和谐统一的方式,也采用折线形式,呼应了老建筑的外轮廓线的形式。新增建筑的性格区别于老建筑的性格,如果老建筑的性格是朴素、敦厚有历史感,那么新建筑的性格就是简洁时尚轻盈。新加建筑最终选择的砌筑方法是用定制的50cm x 50cm x 10cm玻璃砖隐框方式砌筑。
改造后效果
/Effect drawing
内部空间规划
/Internal space planning
▲ 需求分析
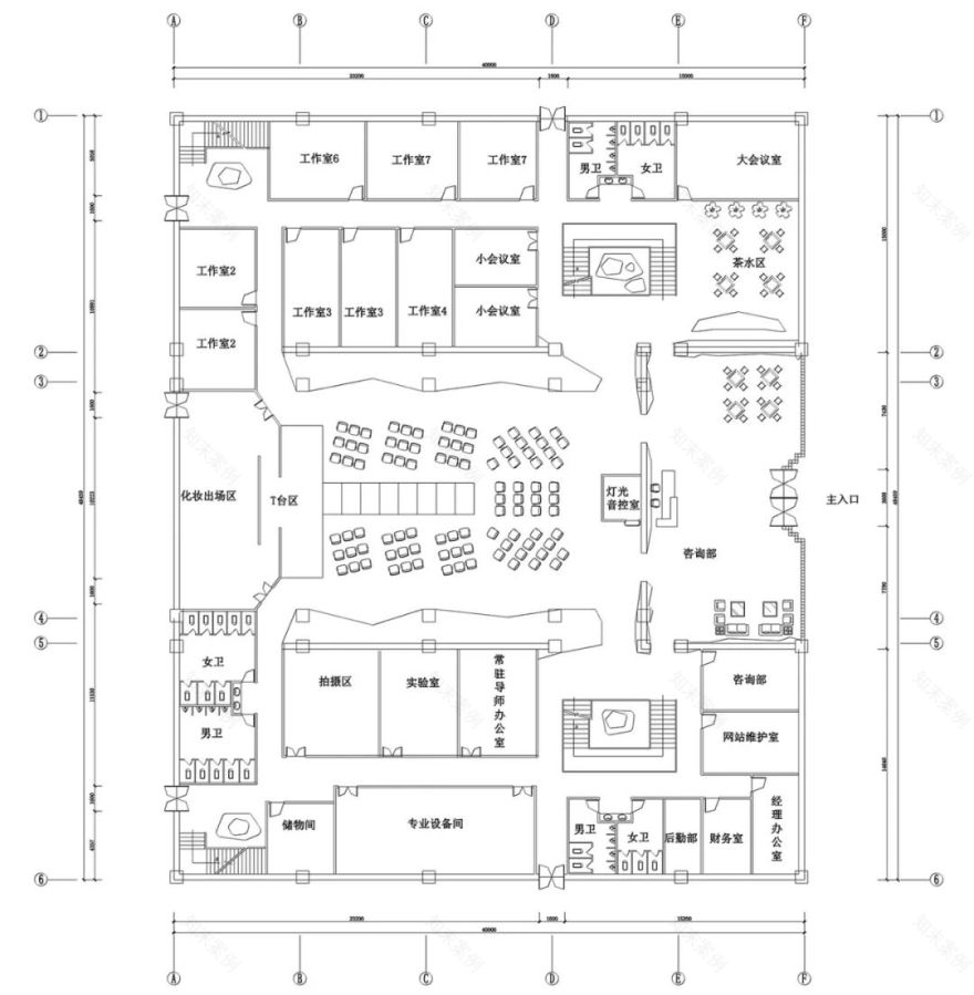
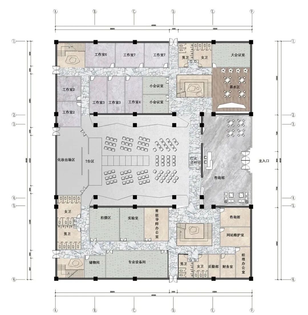
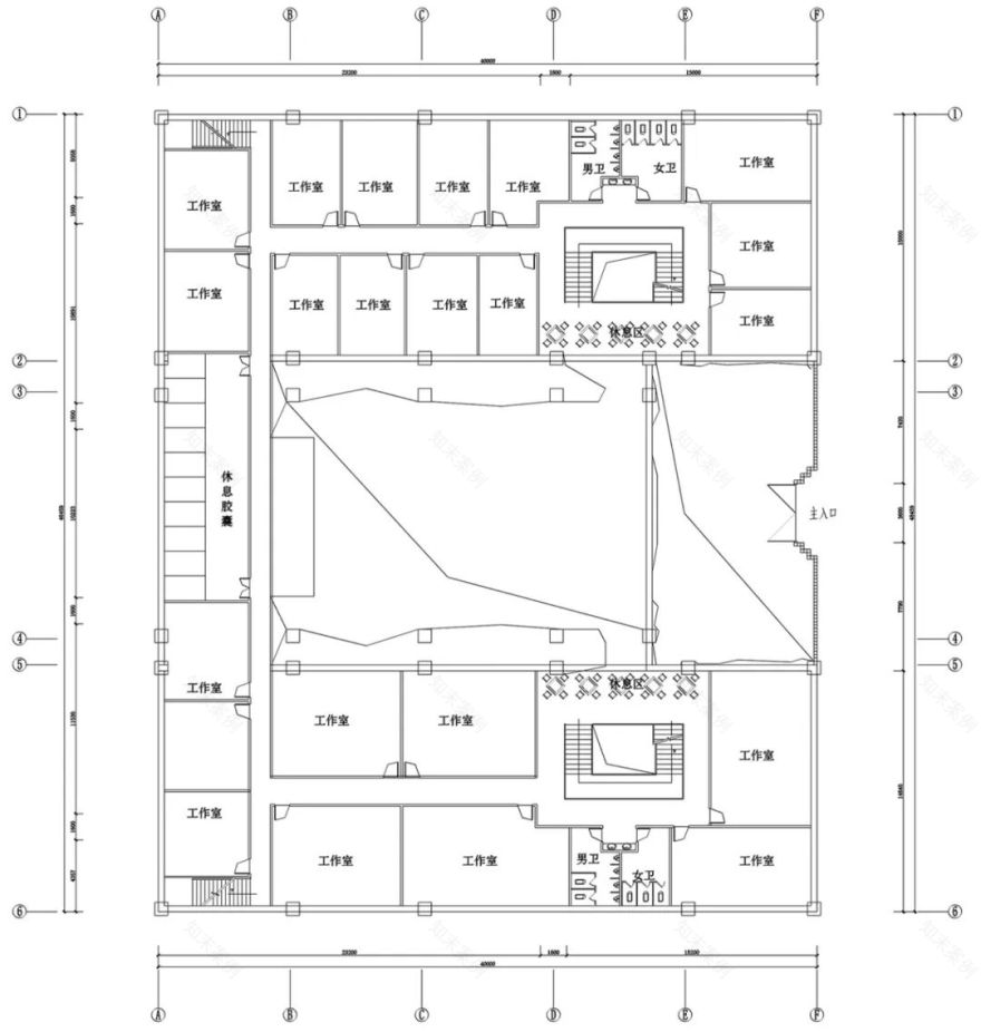
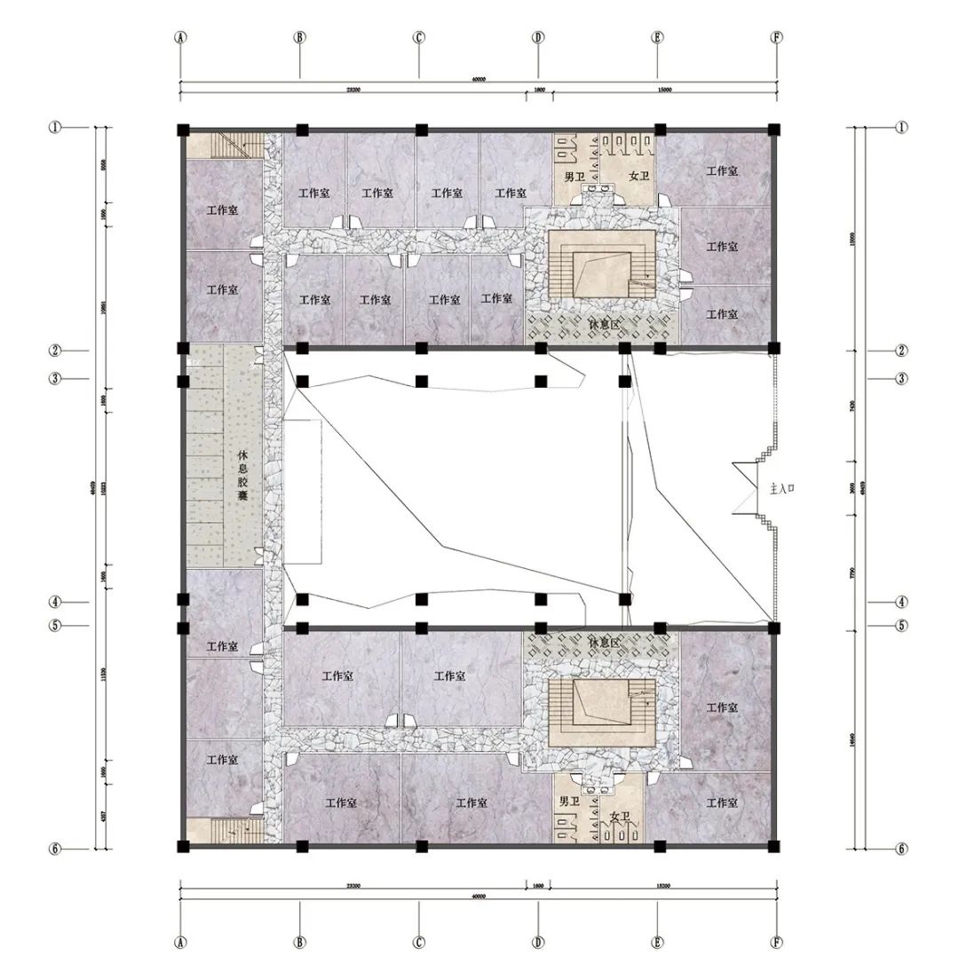
基于服装创意使用人群的工作需求、学习需求、交流需求、展示需求、休闲娱乐需求和实验需求等,以及服务人员的办公室,最后加上必要的楼梯卫生间等服务空间,共同组织了空间次序。
▲ 空间组构
▲ 交通流线分析
平面图
/Floor plan
▲ 一层平面图
▲ 一层彩色平面图
▲ 夹层平面图
▲ 夹层彩色平面图
室内空间设计
/Interior space design
门厅是整个孵化空间的形象展示部分,为了营造时尚、明快、活泼、具有包容性的特点,大面积应用了高反射材料,形式上从布料自然垂落形成的褶皱为灵感,经过变形和组合,运用到了门厅四周的内部维护结构和门的造型上去,最终营造出自由、夸张、非对称、时尚的空间。
▲ 门厅
在充分考虑场地结构特征的前提下,置入一个不规则非对称的围合体,这个多功能厅兼具了大型会议、大型培训,主题展示,动态展演等功能空间。暗黑色系色调目的是为了营造一个有利于专注的空间,一个利于展示的质感基底空间。
▲ 多功能厅&T台
茶水区运用了大量的木材和金属板,不规则的三角形和相对鲜艳的颜色共同营造一个轻松、包容的一个休息交流的空间。
▲ 茶水区
孵化工作室满足服装创意人才的工作和创作需求,根据每位设计师的工作内容和工作需求可以个性化定制工作空间,造型呼应整体的不规则折线形式,氛围以明亮安静为主。
▲ 工作室
小会议室内部运用了相对活泼的蓝色,镜面纹理反光金属板的运用,在视觉上扩大的空间,增加了时尚感。
▲
小会议室
在材料的选择和空间氛围的营造方面,为了营造孵化空间多元包容、自由灵活、简约时尚的特性,装饰材料运用了有色金属板、高反射金属板、波纹反光金属板、镜面材料、木纹、金属线条等等一些装饰材料来打造各个空间。空间造型方面从布料自然垂落时形成的褶皱为灵感,提取和变形了一系列不规则的三角形和折线形式来统一打造空间内部的形式,这种折线恰巧也呼应了建筑的外轮廓线条。不规则的形状和高反光材质在空间多次反射人物和家具可以营造光怪陆离的时尚感增加趣味性。
-
设计者 /Designer
李小宁
/Li Xiaoning
四川音乐学院
2020届室内设计研究生毕业生
On-line 毕业展
THE POSTGRATUATION
EXHIBITION OF DESIGN
四川音乐学院-美术学院环境艺术设计系室内设计
2020届研究生-优秀毕业设计展
王雪
/ 聂雨婷 /
李小宁
/文亚兰 / 赵鹏
- END -
编辑 | 大白 校对 | 大白
*本文由室内设计研究生李小宁投稿,标题及版式由AXD编辑制作。
点击
“阅读原文”,
报名参与公益住宅设计!
客服
消息
收藏
下载
最近

































