查看完整案例


收藏

下载
▲首发视频
LIFE SHOULD BE LIKE BIRDS,
LIGHT AND GRACEFUL
生活应如云燕,轻袅而曼妙
文/张轶青
图/尚壹扬设计
■
项目名称: 绿城地产·重庆晓风映月销售中心
项目地点: 重庆市礼嘉主城区北部
项目面积: 890平方米
空间设计师: 谢柯 支鸿鑫 许开庆 代维 刘凤
陈设设计师: 徐斌 姚利娟
空间摄影:石梓峰 杨轻轻
绿城中国西南区域公司/
重庆绿城致嘉房地产开发有限公司:邹海峰 张楚一 张遥
新疆苏中建设工程有限公司装饰部:李汉臣 葛栋梁
————
谁也未曾料到,在2020年伊始,一场前所未遇的瘟疫正在扑向陶醉并正在追求着生活梦想的我们,一时间,整个中国陷入恐惧和无助之中。隔着口罩的我们从未感觉如此孤独和绝望;肉身沉重,以至于我们必须慢下脚步,重新打量与思考“生”与“活”的意义:什么是我们挚爱的,什么是“镜花水月”的虚幻,在如“梦幻泡影”的生涯里,我们应该追求的是什么?
生活总是这样让我们猝不及防又无可奈何!美好曾经离我们如此近却又恍如隔世。时至今日,我们才深刻地理解了“咫尺天涯”的悲悯!
为了阻断传染源在更大范围内传播,2020年整个春节,所有人都寓居在家中,避免与外人——哪怕最熟悉的朋友——相处与相触,眼神中充满冷漠与孱弱。当无邪的阳光漫过窗棂,蓝天、白云无邪而纯粹,呈现出少有的安宁,曾经喧嚣的城市,如今却变得一片死寂……
生活在突然间停顿,失去了往日的欢歌笑语与日常的声音,隔窗仰望天空的是充满渴望的眼神……
我回到桌旁漫无目的地打开电脑,鼠标这时仿佛充满灵性,它自动指向了一个文件夹:尚壹扬。我打开它,看到了新山书屋、滟设、壹集、屋顶顶、梅里雪山……十几个项目的照片,一一打开,重温了曾经看过几十遍的照片,仿佛谢柯、支鸿鑫就在我身边,向我讲述他们对生活、日常、美好和生命的理解,娓娓道来、如涓涓清泉,润泽干涸的心灵,浑然不觉之间潸然泪下。
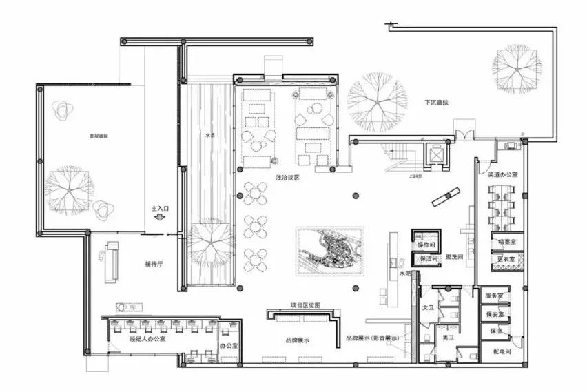
时间回拨到2019年岁末,尚壹扬发布了他们的最新作品:重庆绿城•晓风映月销售中心,这是用三层、近900余平方米的别墅,去除所有轻质隔墙、经过改建后而设计呈现出的地产销售中心。
绿城地产•重庆晓风映月销售中心地处重庆礼嘉主城区北部,东面毗邻龙潭公园,南接嘉陵江。大面积的水面与天空宛如 “留白”,让谢柯和支鸿鑫想到了“轻盈”与“不争”的美学意象,在他们看来,如今的地产销售中心应该是人们追求高品质生活的场所。
只有让品质成为日常,才是设计的本质意义。
设计师在空间设计中的主要目的,是规划和确立适当的空间氛围,让情绪和生活在这里发生。
因此,简约、节制,使空间让渡给人们的生活,成为了重庆晓风映月销售中心的基调。
将空间氛围外推,让外环境写意地形成“漏斗”与“负压”,引导人们进入空间之内,是谢柯和支鸿鑫重塑空间节奏的心思。在“晓风映月销售中心”的入口处,他们营造了极具东方气质的“内向性”水景庭院和下沉式庭院,确立了空间的基调——
一个有品质、可以让内心回归宁静的品质美学空间。
作为用别墅空间改造的地产销售中心,层高限定、空间逼仄和缺乏连贯性,是设计师需要解决的问题。在别墅设计中最大的弊端,就是行为的“组团化”导致浪费空间较多。谢柯和支鸿鑫经过反复考虑,决定在这里
拆分洽谈空间,使它更符合别墅的现状;
采用分散布局,使人们在使用空间时变得更均质;
用楼梯作为纽带,串接起分散的功能空间,沙盘、洽谈区——交流区——艺术展示区层层递进,用节制、统一的设计语句和自然光的折射与衰减,形成心理暗示:
这是一个以地产销售为背景的生活空间。
在这样的设计思想引导下,别墅改建的重庆晓风映月销售中心从外到内开始变得剔透而明晰了。
一层,作为交代空间背景和接待的区域,它应该是明亮的。于是,设计师将外墙更换成落地玻璃,将自然光和庭院景观“借”入室内,形成宽朗的洽谈区,使人们可以方便地与销售人员交流。在这里,设计师处理空间的语言节制而纯粹:纯白的顶与墙和锈色的地面,形成让人安宁的空间体块。黑色风口形成线条,用骨力勾勒出空间的边界,空间变得有秩序和大气。为了增加柔软度,设计师用木质陈列架、抽象艺术画和自然木雕,使空间变得生机盎然。
在中心处,设计师借用二层引下天光,和一层落地玻璃“借”来的是观光线,在照明沙盘,让沙盘不仅具有功能性,也是空间的特征装置。
在这个作品中最令人心动的是由一楼升至三楼的楼梯,和素净的白色墙体结合,成为既是我们游走空间的必由路径,也是空间气韵犹如云燕轻袅和妙曼,向上升腾,引领了我们从物质走向精神、从束缚走向自由。
它不是体量,而是柔软、折叠而视线贯通,甚至是漫不经心地向天空生长。
在楼梯的引导下,我们进入二层,这是一个自由的咖啡区。它在中庭与一层形成贯通的挑空关系,落地玻璃窗引入自然光在这里折叠,进入下层空间之后,也揽自然景色入怀,使在这里享用咖啡和静思的人,翩然欲仙。
与销售中心相连的龙潭公园,形成另外一个出入口。设计师将书吧的氛围引入这里,使安坐有了存在的理由,至此,设计师刻意建构“双洽谈区”在貌似不经意间得以完成,解决了单层面积过小的难题。也使销售中心化的空间使用均质。嵌入墙体的书柜,使空间变得散漫、轻松,严肃立面变得自由、轻盈,让人感受到愉悦。
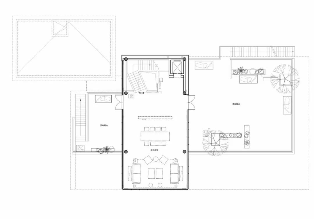
销售中心的三层,是视野最开阔、心情舒朗的地方:三面玻璃幕墙没有任何遮挡。作为艺术展览和举办活动的地方,它具有很强的精神力量和空间的延展性:人少的时候,他让我们的身心融化在自然中;人多时,可以移步到室外,两边有超大的露台,静享自然。
我每次阅读谢柯和支鸿鑫的作品,都有一种莫名的感动和温暖。这种感动和温暖来自哪里,难以言说。因为我们没有看到夸张、惊世骇俗的手法,或难以得见的材料构建而成的“壳”与陈设,没有戏剧的“张力”,也难以总结出一种理念或方法,一切都是以人的视角缓缓展开、娓娓而来。我只能说:
在他们的设计作品中,常人的情感永远是第一位的,萦系在他们的心目中的,始终是人在空间中的状态,目光永远锁定在生活、身体和心灵之上,考虑我们如何在惬意、放松和安宁之间流露出“爱意”与“诚挚”。
没有故作高雅,没有刻意在设计中体现“我”的存在,没有功利的目的。
在他们看来,在“诚挚”面前,这一切都是不值一提的。
在这个艰难的时刻,谢柯和支鸿鑫带给我们最大的心灵慰藉!
————
ABOUT THE DESIGNER
————
谢柯
重庆尚壹扬设计
设计总监
支鸿鑫
重庆尚壹扬设计
设计总监
- END -
编辑 | 陈瑞
校对 | 大白
AXD空间艺术丨双月刊
总第47期丨2019 09
设计,是对世界有态度的表达
点击
“阅读原文”,
关注AXD学社最新课题!
客服
消息
收藏
下载
最近








































