查看完整案例

收藏

下载
项目作为儒乐星镇医养片区的康养住宅,位于整区西北角,东依赣江,北邻儒乐湖,水绿环绕。渐水渐低的上位规划策略,不仅营造出错落风情的多层次城市界面,沿水公共建筑在高度上的适当退让,也使得康养住宅的景观资源最大化,赋予基地得天独厚的自然生命力。
▲襟江依湖的儒乐星镇医养片区
▲滨水建筑天际线整体规划
如何在延续城市空间体系的前提下,充分利用绿化景观资源,提升居住空间使用体验,成为设计需重点回应的命题。
规划上以共享开放的设计构思,突破场地小且狭长的局限性:地块与地块之间,多维度渗透、调用外部丰富的环境资源;地块内部,创造性地联动地上地下空间,拓展社区交往范围,形成情景交融的花园式生态社区。
错落共享的开放空间
丰富城市形态
为实现项目在有限用地中与城市空间更多元的互动,塔楼在落位时退让城市街角,让城市绿带充分渗透至社区内部。同时,项目摒弃了高度一致的传统塔楼设置,采用“高—低—高”的建筑体块形态,在视觉上打开开阔的空间,为城市的其他区域提供与远处水景交互的视野,令天际线更加丰富,也为后续的二线洋房预留了湖景的观赏角度。
▲建筑呼应城市体系而生成
▲高低错落的塔楼开阔天际线©纯点摄影
多层级的架空设置,拓展交往空间。为进一步提升地块的使用价值,项目在通常为 3 层的地上低层空间设置首层架空,并与地下挖掘出的更多空间打通,将底层还给大地,令居住者享有更丰富的社区交往空间,为社区生活赋予更为多元的品质环境。
▲设置各级架空层提供更丰富的社交空间。
首层归家动线引入智能体系与高品质生活服务,入户空间功能性装置延伸成为归家生活体验的组成部分。同时,通过地面与地下空间的协同互动,归家动线拓展至下沉庭院与水景连廊中,为架空层整体营造了舒适尊贵的社交空间。
▲归家动线兼具使用性与空间感
▲更为丰富的下沉社交庭院空间©纯点摄影
建筑在高低错落的落位基础上,以造型风貌进一步呼应近处的儒乐湖水景,让水波层层生长,为建筑赋予迎水而立的丰富意象。建筑立面主体材料采用白色铝板,建筑底部则选取主要来自当地的水纹石、木材质,令建筑自下而上形成“湖石”与“湖面”的对比。
立面横向的通透线条模拟了波光粼粼的水纹效果,仿佛清风徐来,波纹渐起,同时为最大化横向观景面,平面采用了微弧的曲线,令观景立面进一步拓展延伸。
▲面向景观的微弧界面©纯点摄影
▲降低窗户尺寸提升横向观景感受
头部的造型撷取“雁归来”的意象,令建筑如同落鹜雁翅一般飘逸灵动,既丰富了城市天际线的视觉,也反映了“落霞与孤鹜齐飞,秋水共长天一色”的独有在地印象。
▲顶部系统的立面节点
项目规划为绿地控股集团首批科技创新住宅,通过引入生态、智能、科技的社区系统,为使用者打造全方位的现代化智能生活方式,实现了“健康宅”与“科技宅”的双落地。产品实现对前沿生活的探索,获得国际 WELL 建筑研究所(IWBI)授予的 WELL 金奖预认证。
项目地块北侧为生态主题公园,未来计划安排以生态小镇为主要业态的娱乐功能片区。产品设计因此结合儒乐湖景观进行布局,充分利用外部景观资源,增加居住的舒适感受。
01FEATURES
景观电梯
为赋予使用者全方位的宜居体验,塔楼在北侧设置了景观电梯,令归家动线始终与儒乐湖的景观视野相交汇,也与产品中北向观景阳台形成了一体化的观景界面。
▲北向儒乐湖的景观电梯布局©纯点摄影
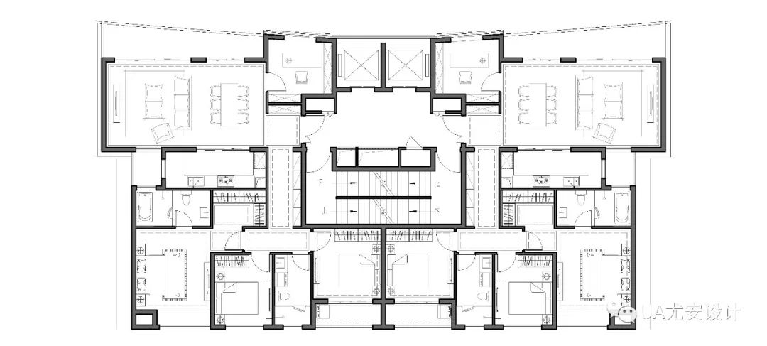
02 FEATURES C 型空间布局 为更好利用北侧的景观视野,同时合理划分住宅内部的公区、私区,产品采用 C 型的空间布局方案,在北侧一字型展开功能空间,最大化景观延展面;在南侧设置私密空间;二者之间设置辅助功能空间并收窄其面积,保证日常最优的使用体验。
▲165㎡户型
▲138㎡户型
RelatedDesign
上海虹桥世界中心
上海绿地黄浦滨江
上海融创精彩天地
南昌国际会展中心二期
景德镇昌南里艺术中心
济南绿地国际博览城先行区
合肥保利茂街
武汉复星外滩中心(住宅)
长沙绿地星城光塔
海口绿地新海岸
南京紫金中心
绍兴镜湖希尔顿酒店
长春世茂莲花山文旅小镇
靖安绿地明镜湾文旅小镇
深圳融创智汇广场
上海碧桂园中心
青岛华润辽阳东路地铁上盖项目
珠海保利中油琴澳大都会
黄石绿地国际会议中心
广州・广物鱼珠产城综合体
南昌绿地儒乐星镇医养片区
南昌绿地中央公园·璟悦
青岛青铁华润城凯旋门
珠海保利九洲天和屿墅
金茂府落成浅析
义乌绿地朝阳门
长沙北辰府
租赁住房产品模块需灵活
上海地产|仁恒置地世博二地块项目
全景规划设计方法实践
新形势下社区设计逻辑的三大思辨
具有方案设计基因的施工图设计
UA 七大人居设计观点
并不是只有豪宅才有好生活
四层及以上墅类产品创新实践
文旅产品有机活化的三大策略
有光,未来才能渐入“家”境
大型商业综合体的重构与共生
运营思维下,社区商业如何掘金
项目负责人到底负什么责
让设计和生活充满想象力
客服
消息
收藏
下载
最近








































