查看完整案例


收藏

下载
编者按:
高度不高、造价受限、体量不大,这很容易推导出一个平庸的产品。但越是如是,“设计越能创造价值”,在南京南站的第一线,都设用一栋小楼表达了自己的建筑观、价值观。
南京万科九都荟于 2022 年投入使用。这是继南京高力新庄广场、南京万科尚都荟之后,都设在南京高铁沿线的第三个建成作品。
南京万科尚都荟
南京高力新庄广场
基地东北侧毗邻南京南站枢纽,距离地铁南站约 100 米,交通便利,位置优越。
地块面积狭小,南侧与住宅区用地相连,屏蔽高铁对社区的干扰,并为社区提供商业服务。
北侧为城市主要界面,与沪宁高铁隔路相望。
建筑地上功能涵盖面积约 2.2 万㎡的办公,0.3 万㎡的商业,建筑限高 80m,定位甲级写字楼及配套商业设施。
德国现代主义设计大师 D·拉姆斯阐述现代主义设计的基本原则是:“简单优于复杂,平淡优于鲜艳夺目;单一色调优于五光十色;经久耐用优于追赶时髦,理性结构优于盲从时尚”。
项目秉承现代主义,与西侧体量庞大的证大喜马拉雅采取完全不同的思路,理性地看待自身所处的位置和体量,面对周边纷乱的场景,寻求属于自己的“标志性”。
对周边纷乱环境的回应
场地分析
基于对场地分析和业主的诉求,我们从高铁沿线城市界面入手。沿站前路从西向东分别为喜马拉雅中心、九都荟、都荟国际、尚都荟。同时紧邻沪宁高铁,代表了南京的城市门户形象。综合考虑城市界面及天际线,沿城市展示面强调竖向构图,其中尚缺少一枚拼图完型界面,形成具有韵律感完整统一的城市形象。
沿高铁线城市天际线
所以在布局上建筑塔楼主要朝向沪宁高铁方向,形成完整饱满的城市界面和形象。建筑划分为两个主要体量,与尚都荟一起形成群体性的起伏形体变化,打造沪宁高铁沿线一道富有韵律的天际线。
场地沿北侧道路展开,西北角紧邻南京南站。西侧明城大道为城市主干道,毗邻喜马拉雅中心并串联万科九都荟住宅区的街区商业功能,在基地西北角营造预留城市广场作为商业入口节点,引领街区商业。东北角城市广场作为办公主入口,与商业人流做一定程度的区隔,减少干扰。
体量生成分析
建筑受到用地和规划条件限制,整体体量敦实。在本案与尚都荟地块中间还有一栋现状塔楼。考虑到整个社区板块沿高铁界面的形象保持完整性和韵律感,方案将体量进行竖向切割和划分,使其更加挺拔,并与沿线高层建筑群形成手法的呼应。塔冠部分通过划分比例及体量高度的不同处理,使其有节制的变化,与泛光照明结合形成标志性造型。材料虚实的对比,体量高度的对比,线条疏密的对比,凹凸深浅的对比使原本平常普通方盒子变得理性而又生动,让人即使在高铁上也能一眼就分辨出来。
设计细部上以契合当地气候条件的绿色设计为原则,东西向以石材墙面和竖向遮阳幕墙结合,降低建筑的整体能耗,南北向保持开阔的视野和良好的采光面,每个房间均设计了隐藏通风开启装置,提供了高品质的办公环境。
形体推演过程方案
通常情况下,单元式玻璃幕墙立面造价是 1600 元/平方米左右,框架式玻璃幕墙立面造价是 1300 元/平方米左右;本项目在设计之初考虑的是单元式幕墙,但是受到造价的限制,成本需要控制在 1000 元/平方米以内。建筑师在设计体系框架内迭代和优化框架式幕墙的细节处理,并通过造型处理减少玻璃幕墙面积。在有限的成本下依然很好地保证建筑的完成度。
a. 幕墙体系归纳
方案设计阶段,整合及简化幕墙类型,以 1:30 系统大样为基础,通过与幕墙顾问的配合,锁定大面的做法和造价,保证了对建筑完成度的控制。
幕墙类型归纳图
b. 塔楼标准段幕墙系统
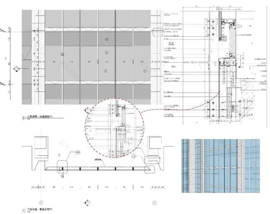
塔楼标准段幕墙体采用的是竖明横隐框架式幕墙。常规的框架式幕墙会在人视位置开悬窗,既影响视线,又会使外立面凌乱无序,影响效果。同时框架式幕墙受制于完全靠人工安装,跨层的玻璃很难保证平整度,当玻璃幕墙连续拼接时,通过反射很容易给人不平整的体验。
塔楼幕墙设计通过将所需的开启扇设计在每层的下方,内退一个层次,采用內倒式的金属开启扇形式,弱化开启扇对立面整体性的影响。同时每层的内凹造型,自然地将每层玻璃幕墙独立开,强化了幕墙的序列感,使玻璃的平整度影响降到最小。
塔楼的东西方向,通过在幕墙基本单元上增加竖向构件,来保证建筑的遮阳需求,同时强化了建筑的体量感。
塔楼东西向标准段实景照片
塔楼标准段大样图
塔楼标准段开启扇节点透视图
幕墙类型 T1 透视图
设备平台标准段实景照片
塔楼标准段设备位节点透视图
一般玻璃幕墙办公建筑的塔冠会采用完全通透的做法。这样既会透过玻璃看到后面的结构构件,也会看到屋面的设备及机房,对效果的控制难度很大。同时透过屋顶玻璃会直接看到天光,因此往往会显得塔冠与功能房间的玻璃幕墙截然不同,影响外观效果。
本项目塔冠方案采用玻璃幕墙后退一个空腔,内藏灯光的方式。既遮蔽了屋顶设备及结构构件,又避免了背透天光。使立面幕墙形成统一的体量。空腔内藏灯光便于检修和维护,在夜间会形成塔冠发光效果,富有昭示性。
塔冠实景照片
幕墙类型 T3 塔冠轴剖透视图
c. 裙房幕墙系统
裙房幕墙强调石材和玻璃的虚实对比。裙房玻璃幕墙外挂 C 型竖向构件,与塔楼既协调又有所区分。玻璃飞翼的设计,将玻璃转角的阳角处理,转变为阴角,规避了阳角明框扣盖过大,无法减少尺寸的问题,并能够遮挡疏散出口及其雨棚,使玻璃盒子完整统一。
裙房飞翼节点平面
裙房效果图
裙房实景照片
入口实景照片
入口雨棚剖透视
图
结语
在南京南站高铁沿线,以九都荟为代表的社区界面与证大喜马拉雅中心代表的商圈界面形成有意思的反差,体现了多元化的南部新城城市面貌。
九都荟项目希望表达的是理性简洁、稳重现代之美。得体而不张扬,经受得住时间的洗礼,日久弥新。
最后要感激一下合作深化设计方。在接手深化设计后,由于种种原因,后续又进行了一些设计调整。合作方始终坚持最初的大部分设计,从而成为保证项目高完成度落地关键因素之一。
项目图纸
一层平面图
二层平面图
标准层平面图
立面图
剖面图
项目信息
项目地点:江苏南京南站
设计时间:2016-2019
总用地面积:21085㎡
总建筑面积:55035㎡
项目类型:办公/商业
业主:南京万科
方案设计:上海都设营造建筑设计事务所有限公司
深化设计:南京兴华建筑设计研究院有限公司
幕墙顾问:BRM 上海睿柏
幕墙深化设计:金刚幕墙集团有限公司
摄影:赵奕龙
THEEND
欢迎关注
都|设|B|站
都|设|公|众 | 号
都|设|视|频| 号
幕|墙|培|训
全新一期课程计划明年在上海举办
欢迎发邮件到
提前锁定席位
客服
消息
收藏
下载
最近













































