查看完整案例


收藏

下载
简单中营造的格调
轻奢是一种高格调的生活态度,也是一种高要求的生活品质,精致到老,现代轻奢风居室设计大兴而起,成为时下热门的潮流,将高雅华丽的质感与时尚现代的特色融合贯通,打造出至精至雅、简洁大方的视觉效果。
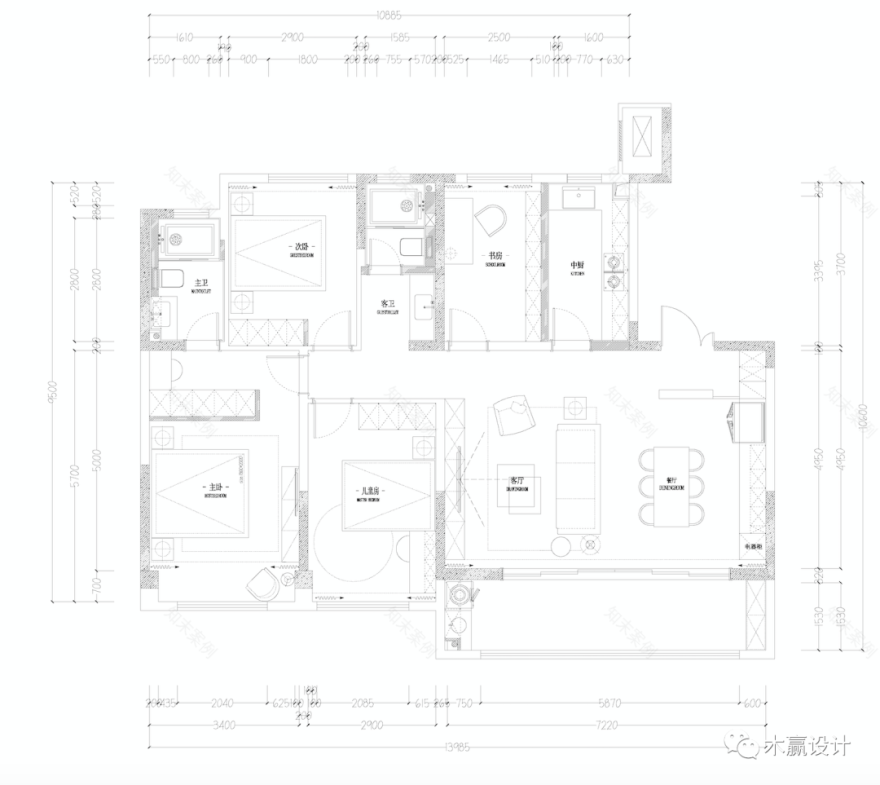
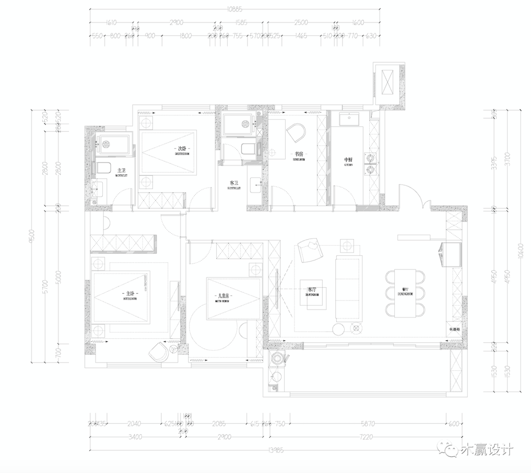
项目平面图
客餐厅
每个家都有自己独特的风格
追求心灵的归宿
不盲目从众,不浮夸
彰显主人独特的品味
独特的定制化现代轻奢设计
打开了幸福舒适的品质生活
主卧
利落清爽的现代化线条
纵横之间透出空间的简约大气
次卧/客卧
书房
现代轻奢风格,注重高品质与设计感,将优雅时尚的质感结合着现代材质及装饰技巧巧妙地呈现在居室中,展示着精致高端的生活态度。或简约大方,或繁复含蓄,或个性鲜明,或艺术雅致,现代轻奢风格的设计有着千万种打造方法,花样繁多的设计更是为我们带来无穷尽的时尚风华。
木赢设计
INDESIGN PLUS & 西安
如蒙垂询,敬请联系:
商务部
杨先生
187 9255 6616
朱小姐
152 2988 5689
客服
消息
收藏
下载
最近
















