查看完整案例


收藏

下载
闲暇处才是生活
器物所蕴含的韵味决定了空间场域的深刻内涵。
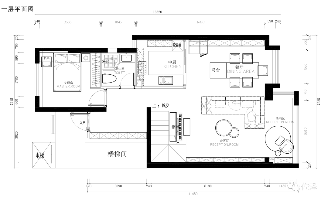
一层空间平面方正,整体结构开放,功能区域随着室内线条的走向自然划分,打造简约明朗的空间基调。
自然光的摄入,让光参与到空间的交流中,在宽阔的空间里,享受自由流动的释放。
客餐厅
浅色的空间主色调,搭配橙色作为亮点,激发了整体空间的色彩,赋予了室内的生机。色块的简化,简雅的视觉明度,使室内的情绪沉稳放松。
客餐厅
艺术休闲椅的融入,承接了整体气韵的流动,恰到好处地为室内空间增添艺术美学的气质。品味、格调,于虚实间缓缓溢出,构建一方温馨惬意的私密空间。
主卧
卧室空间的材质哑光表面处理,没有过多的反射,用肌理和触感传递着平静的美好。素净的床品在温煦的阳光里,生命力仿佛被唤醒。
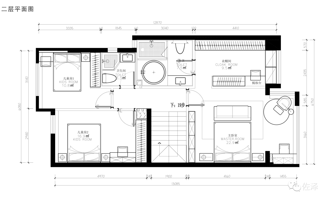
儿童房
平面图纸
Plane drawing
左右滑动查看更多图片
项目名称
|
建发央著
项目地址
| 福州
设计风格
| 现代轻奢
主创设计
| 林健
设计团队
| 康伟军、章丽青、何靓妮
项目类型
| 复式
项目面积
| 130㎡
创作时间
| 2021.02
阅读推荐
客服
消息
收藏
下载
最近























