查看完整案例


收藏

下载
59 / 厨柜实景案例
江苏·南京
瑞安翠湖山
如果说会客区域注重空间的流动性,那么餐厨区域空间布局则更显温情。在满足当前生活配置的前提下,更多的融入为家人未来生活的扩容。60 / 厨柜实景案例。江苏·南通。南 山 湖。
人们常说,世界再大,大不过一碗番茄炒蛋。在这处由黑白搭配而出的厨房区域中,不仅有番茄炒蛋,还有着业主太太的精湛厨艺。生活的滋味在这里被烹饪,然后成为能量到家人的身体里。只有厨房的灯亮起,房子才是家啊。西厨吧台吊顶处的 FLOS 吊灯,为用餐时光增加更多的趣味性,为香气扑鼻的家常菜更加增添了一抹光影滤镜。
△以上厨柜案例图片,均来源于梅亚奇厨柜配套项目实景。
01 关于梅亚奇厨柜
02 关于梅亚奇厨柜共享工厂
03梅亚奇厨柜标准柜系统
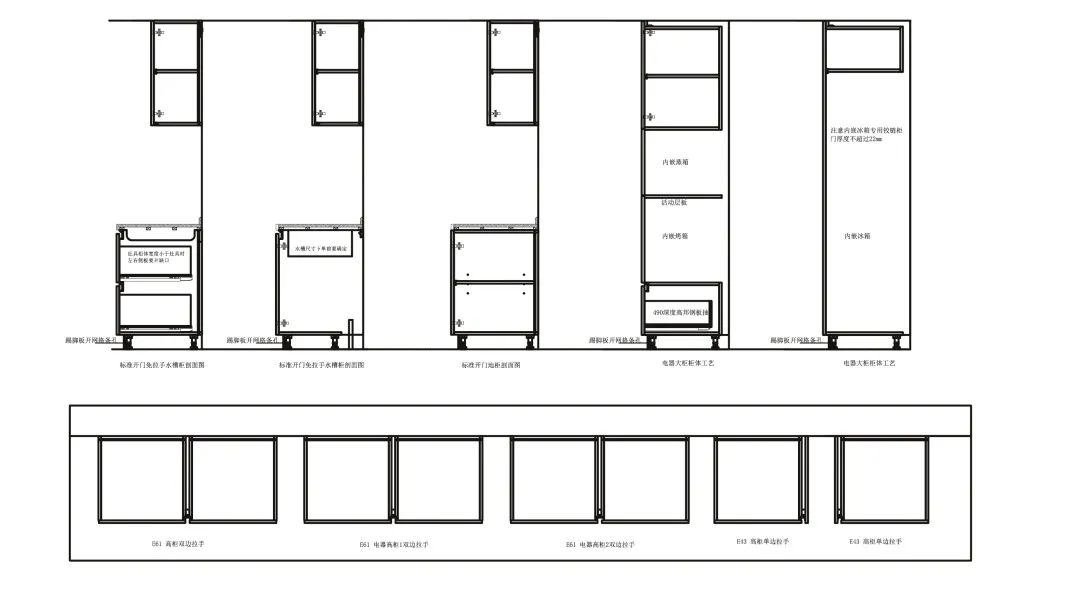
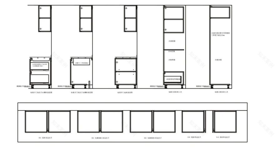
04 梅亚奇厨柜工艺节点 -地柜
05 梅亚奇厨柜工艺节点-吊柜
06 梅亚奇厨柜工艺节点 -剖面图
07关于 梅亚奇厨柜-定制套餐
08关于 梅亚奇厨柜-品牌采集升级活动
如果您还想了解不同的梅亚奇,或有意加盟!
梅亚奇全屋
或选择离您较近的展厅:
【无锡】无锡市国金中心 12 层 | 130 6370 8118
【镇江】镇江市苏宁广场 36 楼 | 150 5086 8190
【苏州】苏州市苏州中心 D 座 19 层 | 151 5152 4858
【泰州】泰州市育才路 77 号国宾 1 号 | 138 1470 8831
【南通】南通市圆融中心 1303/1304 | 136 4624 3648
【南京】南京市建邺区万达广场 A 座 1101/1301 | 139 5176 4571
客服
消息
收藏
下载
最近























