查看完整案例


收藏

下载
09 / 厨柜实景案例
江苏·南通
景瑞望府
这个项目住着一家三口。在厨房区域的设计规划中,先生提供了很多的设计需求,很多具体位置的规划摆设,是只有真正了解厨房、真正使用厨房的人才懂的。男业主特别不喜欢“君子远庖厨”这句话,他说那人一定是没有真正体会过家的味道,能够为家人烹制美食,能够看到家人品尝的神情,这些都会让他觉得特别开心。就连在厨房辛苦劳作的烟火气,闻起来都仿佛有了一丝香甜的味道。10/ 厨柜实景案例:江苏·泰州,御园。
这处厨房空间采用大方使用的深色木质餐桌,围绕餐桌的厨柜也采用同色系的材质,厨柜面板加上造型与金属拉手,视觉上营造出更为统一的美式风格。在这里除了可以品尝美食、饮茶、做手工,更因为大面积的桌面,还可以充当临时工作台,赋予厨房更多的收纳与功能。未来家庭的厨房将不再仅仅是充当厨房的角色。△以上厨柜案例图片均来源于梅亚奇厨柜配套项目实景。
01 关于梅亚奇厨柜
02关于梅亚奇厨柜共享工厂
04 梅亚奇厨柜标准柜系统
05 梅亚奇厨柜工艺节点-地柜
06梅亚奇厨柜工艺节点 - 吊柜
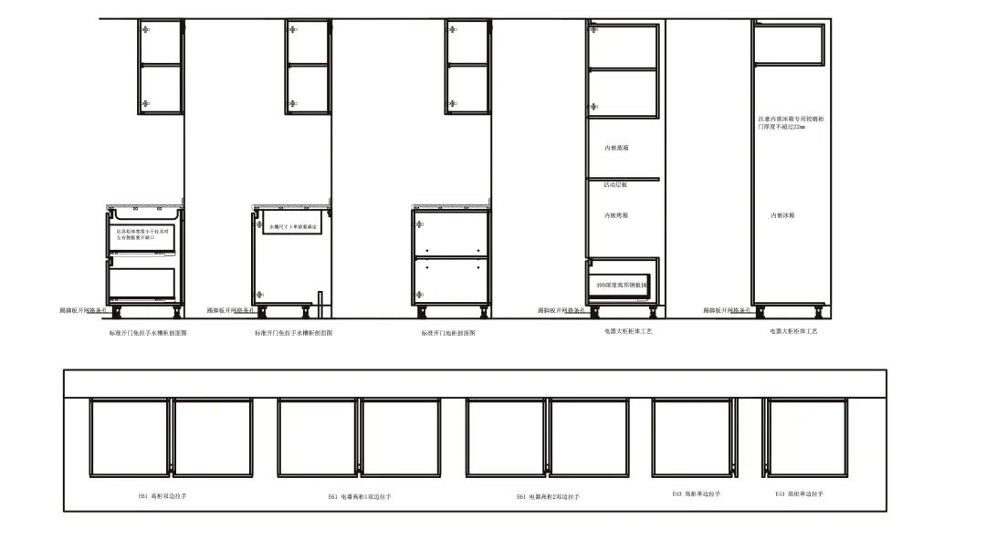
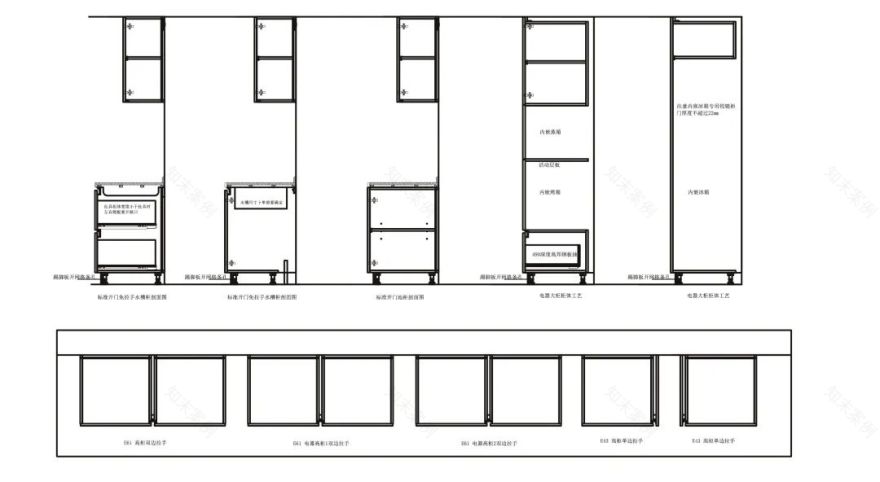
07 梅亚奇厨柜工艺节点 -剖面图
07 关于梅亚奇厨柜-定制套餐
10关于 梅亚奇厨柜-品牌采集升级活动
如果您还想了解不同的梅亚奇,或有意加盟!
梅亚奇全屋
或选择离您较近的展厅:
【无锡】无锡市国金中心 12 层 | 130 6370 8118
【镇江】镇江市苏宁广场 36 楼 | 150 5086 8190
【苏州】苏州市苏州中心 D 座 19 层 | 151 5152 4858
【泰州】泰州市育才路 77 号国宾 1 号 | 138 1470 8831
【南通】南通市圆融中心 1303/1304 | 136 4624 3648
【南京】南京市建邺区万达广场 A 座 1101/1301 | 139 5176 4571
客服
消息
收藏
下载
最近























