查看完整案例

收藏

下载
01
项目地址 / 采薇苑
Location / Cai Yei Yuan
设计风格 / 现代风格
Design style /
Modern
项目面积 / 103㎡
Project Area / 103㎡
设计+施工团队 / 芜湖百视装饰
Design & Builder / WUHU BAISHI Design
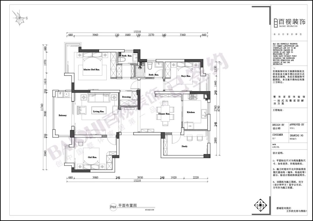
▽ 平面方案解析
①、原始户型卫生间面积小,将厨房小阳台纳入卫生间做淋浴区,卫生间功能区完整且使用面积充足。
②、主卧门洞和衣帽间门洞改变方向,衣帽间墙体外扩至客厅墙体,增加主卧衣帽间储物功能。
▽ 案例实景效果
△ 客厅区域
△ 餐厅区域
△ 主卧区域
△ 儿童房
黑色尽显沉稳,白色和灰色搭配,整个空间散发稳重气息,简单的跳色和格纹布艺点缀,整个空间在沉稳的同时而不觉单调。空间如人,自有气质,此时应是淡定从容。
02
项目地址 / 翰林公馆
Location / Han Lin Gong Guan
设计风格 / 北欧风格
Design style /
Boreal Europe
项目面积 / 120㎡
Project Area / 120㎡
设计+施工团队 / 芜湖百视装饰
Design & Builder / WUHU BAISHI Design
▽ 平面方案解析
保留三室,保留一个卫生间,主卧卫生间改成衣帽间。原始户型方正,无其他明显改造区域。
▽ 案例实景效果
△ 入户门厅区域
△ 客厅区域
△ 餐厅区域
△ 厨房区域
△
主卧区域
△ 书房
原木色凸显北欧气质,搭配更显活泼温暖。简单大方又温馨的家居环境能够给居住者在繁忙的生活中带来一丝温暖,舒适慵懒精致并存。
03
项目地址 / 翰林公馆
Location / Han Lin Gong Guan
设计风格 / 现代轻奢
Design style /
Modern
luxury
项目面积 / 140㎡
Project Area / 140㎡
设计+施工团队 / 芜湖百视装饰
Design & Builder / WUHU BAISHI Design
▽ 平面方案解析
厨房墙体向次卧内扩,增加厨房使用面积。保留两个卫生间,以客卫为主,缩小主卧衣帽间,扩大客卫面积,使用舒适度提升。
▽ 案例实景效果
△ 入户区域
△
客厅
△ 餐厅
△ 厨房
△ 主卧
△ 次卧
△ 儿童房
△ 卫生间
END
查看实景案例 / 预约参观工地
/
预约设计师
相关互动:
获取同户型方案
小区+户型
,即可获得同户型设计方案。
预约顶尖设计师
装修需求+预约时间
,即可成功预约设计师。
参观在建工地
小区+施工阶段+参观时间
,即可预约参观工地。
■
安徽百视装饰设计工程有限公司(总部)
地址:芜湖市镜湖区黄山东路与弋江中路交口绿地新都会一期B栋LOFT商铺三楼306-318号。
■
百视装饰•名家设计会所
地址:芜湖市弋江区新时代商业街7-63#(光大银行旁)。
■
百视装饰•七方
设计会所
地址:芜湖市鸠江区伟星·快慢里商业街S7-14号。(快慢里酒楼旁)
■
百视装饰•良本
设计会所
地址:芜湖市湾沚区未来城商铺A11-1102。(未来城小区北门旁)
■
百视装饰•凡宸设计会所
地址:芜湖市繁昌区新城华府商铺10栋12-13号(同济医院对面)
■
百视装饰•千禾设计会所
地址:芜湖市南陵县籍山镇南翔路以西金色水岸D2号楼106-107号。
客服
消息
收藏
下载
最近


























































