查看完整案例

收藏

下载
小区名称 | 熙悦府
项目面积|170㎡
设计风格 | 现代简约
主案设计| 贺晓云
工程监理| 王家平
项目经理| 何友剑
本案是一套 170㎡的四室两厅,业主夫妻二人都是 80 后,有两个小孩。对于住所,希望拥有温暖、舒适、沉稳、质感的家居氛围,从而获得简从容的生活感受。得以在都市生活奔波忙碌一天后,短暂逃离喧嚣繁杂,回归简单与本真的状态。于是,我们融入居者独有气质,对其生活有更深层次的思考。最终,呈现出蕴含了居者无法复制的生活痕迹的舒适氛围。
户型解析
APARTMENT TYPE ANALYSIS
、
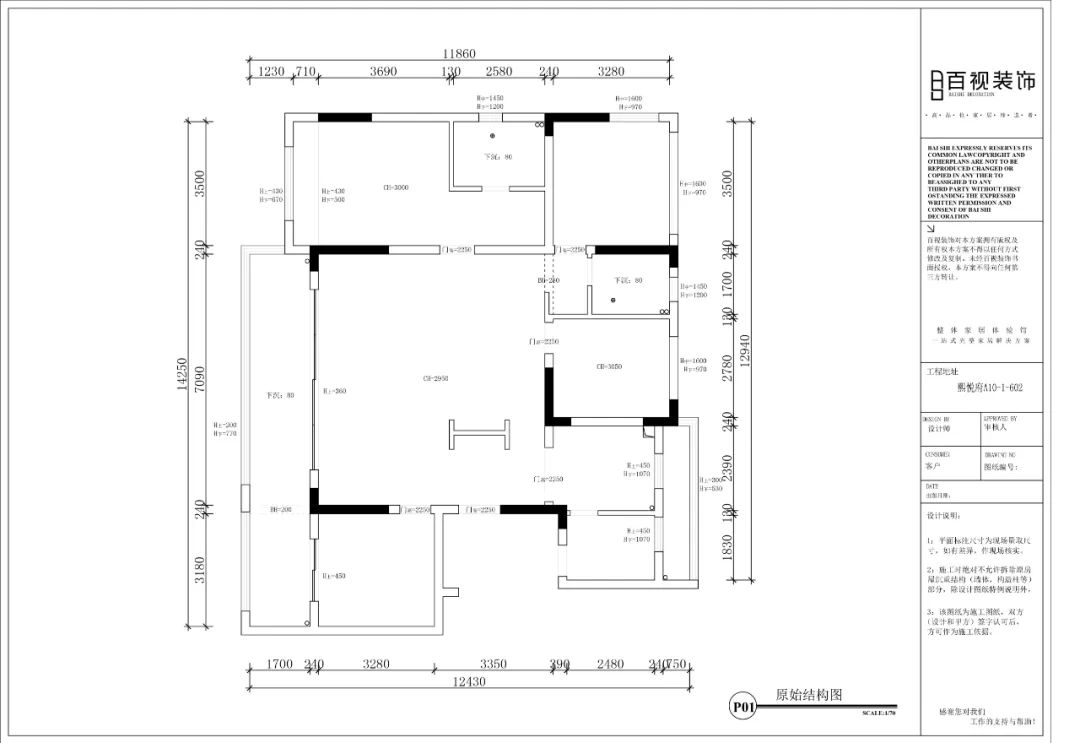
▼ 原 始 户 型 图
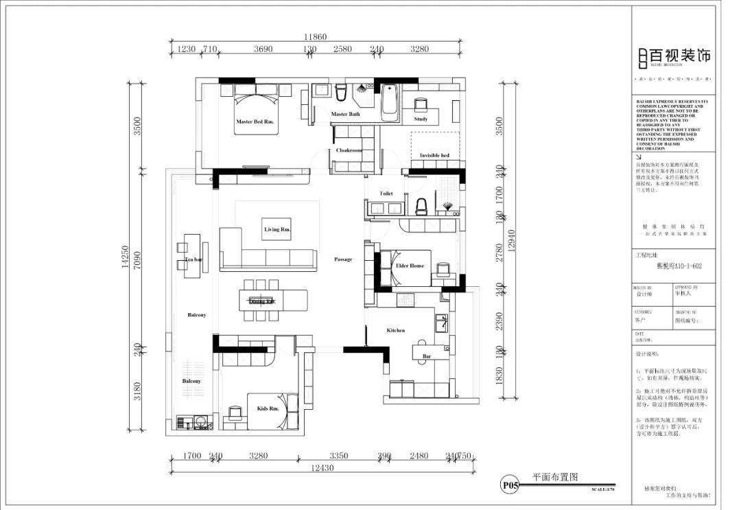
▼ 平 面 布 置 图
格局改造:
保留卧室的基本硬装,主要针对客餐厅、厨房及卫生间进行拆除拆重建。客餐厅区域,用家具对空间做重新定义,并将大阳台纳入客餐厅,给客餐厅整体开阔的视野与高通透度。规划中岛餐厅,丰富生活乐趣。
设计亮点
本案得益于大横厅的空间优势,设计师截取最大化的采光路径,最大程度开放空间,增加空间的流动性,让光线、空气与精致的家具形成连接。客厅需要为人们制造一个焦点,沙发和茶几则是凝聚人气的最佳组合。此刻,它们被安放在橙色的单椅中间,那里是一家人交流互动的最佳场所。从餐厅的视角看过去,电视为中心两边延伸,客厅的延伸感更强。椅子和沙发之间的距离可以让业主一家人舒服、亲密地唠家常,又能使每一位家庭成员快速找到自己喜欢的角落。浪漫的橙色单椅,足够亮眼,空间的深度被增加。可以想象,在这里,独处时看看窗外的风景,也是一件美事!
客餐厅
LIVING ROOM
客厅采用米色和橙色皮质沙发与不失格调的家具搭配,渲染出轻松愉悦的气氛。淡化对物质的追求,注重个人的文化熏陶和精神世界的造诣,低调不张扬、不随波逐流,都是对生活的一种思考和回归,在繁华的都市际遇里,转身便可褪尽喧嚣,尽享一座城市的精粹。
餐厅没有过多的装饰,简约而低调的布置一种氛围。在这个空间,对生活的品质追求也体现的淋漓尽致。大理石餐桌、皮质餐椅、装饰画、绿植,满足三口之家日常的四季三餐。
主卧室 MASTER BEDROOM
次卧室 SecondBEDROOM
书房 study
寄语
家,之于他们,是陪伴是相守,是经年累月共同生活所沉淀的印迹,此成为安放身心的温暖归处,每一天都有一个治愈的开始和结束,随意截取一段展开来,都是写在时间里的诗意篇章。
关于设计师
ABOUT DESIGNERS
贺晓云/ 百视装饰&设计总监
工作年限:10 年
擅长风格:现代轻奢风格、现代风格、美式风格、中式风格等
收费标准:100-200/平米
个人荣誉:中国 CIID 注册室内设计师、全国优秀设计师、中国室内设计金堂奖优秀奖、2017 年设计本推荐安徽十佳设计师、2018 企业年度优秀设计师等
代表案例:芜湖院子别墅、凤凰城别墅、圣地雅歌别墅、熙悦府、雍璟台、龙玺台、华仑港湾、金域华府、长江之歌、美加印象、国贸天琴湾、世茂滨江、白金湾、金域蓝湾、伟星城、蔚蓝海岸、公园大道、塞纳丽城、润津花园、东方蓝海、东方龙城、官山翰林、外滩府、皖江壹号院、荣盛华府、翰林公馆、国宾府、金悦府等
谢 谢 翻 阅 │ 欢 迎 分 享
B A I S H I D E S I G N
查 看 更 多 案 例 │ 预 约 设 计 师:请 联 系 百 视 小 编
回复“”即可订阅您家同一户型案例、效果。(针对有装修需求的您:我们会根据您提供的信息,安排做过您家楼盘的设计师,为您提供户型规划以及装修预算,帮您解决装修中所遇到的诸多问题)
安徽百视装饰设计工程有限公司(总部)
地址:芜湖市镜湖区绿地新都会 B 座 LOFT 商铺三楼 306-318 号。
百视装饰·名家设计会所
地址:芜湖市新时代商业街 7-63#(光大银行旁)。
百视装饰·七方设计会所
地址:芜湖市鸠江区伟星快慢里商业街 S7-14(快慢里酒楼旁)。
百视装饰·良本设计会所
地址:芜湖市湾沚区未来城商铺 A11-1102(未来城小区北门旁)。
百视装饰·凡宸设计会所
地址:芜湖市繁昌区新城华府商铺 10 栋 12-13 号(同济医院对面)。
百视装饰·千禾设计会所
地址:芜湖市南陵县金色水岸 D2 号楼 106-107 商铺。
百视装饰·千禧设计会所
客服
消息
收藏
下载
最近














