查看完整案例

收藏

下载
目地址:芜湖·颐景湾畔
项目面积:125㎡
设计风格:现代轻奢
主案设计:周凌峰
家是拿来居住和生活的,也是家人沟通和情感交流的场所。在本次案例中抛弃了那些所谓的体现“风格”的装饰,更多的是用业主所拥有的或者说今后在这个空间里面会体现的生活方式来构建我们的空间。确定了我们对房屋的整体风格后,经过了平面结构的改造之后户型更加合理,整体的设计注重功能、追求理性,讲究简洁明朗的颜色,淡雅清爽的自然材质,线条流畅,不事雕琢。整个顶面设计充满现代造型线条,流畅自然。
▼ 客 厅
▼ 餐 厅
▼ 主 卧 室
▼ 儿 童 房
▼ 原 始 户 型 图
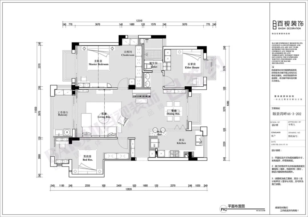
▼ 平 面 布 置 图
▼ 关于设计师
周凌峰
百
视装饰&设计总监
工作年限:
15年
擅长风格:中式、港式现代、轻奢风格、欧式、混搭等、中国建筑学会室内设计协会会员、全国室内设计大赛二等奖、2006年全国室内设计大赛优秀奖、2008年扬子晚报十佳设计师称号、 2011年南京设计大赛二等奖、2013年全国住宅装饰装修协会优秀设计师、
代表案例:和院别墅、凤凰城别墅、碧桂园别墅、柏庄丽城别墅、东湖壹号院别墅、圣地雅歌、伟星城、国贸天琴湾、金域蓝湾、华强广场、金域华府、华仑港湾、美加印象、颐景湾畔、白金湾、蔚蓝海岸、赭山春秋、赭麓公馆、外滩府、官山翰林、皖江壹号院、汀海壹品、保利香颂、熙悦府、世茂滨江等、、、、
END
查看实景案例 / 预约参观工地
/
预约设计师
相关互动:
获取同户型方案
小区+户型
,即可获得同户型设计方案。
预约顶尖设计师
装修需求+预约时间
,即可成功预约设计师。
参观在建工地
小区+施工阶段+参观时间
,即可预约参观工地。
■
安徽百视装饰设计工程有限公司(总部)
地址:芜湖市镜湖区黄山东路与弋江中路交口绿地新都会一期B栋LOFT商铺三楼306-318号。
■
百视装饰•名家设计会所
地址:芜湖市弋江区新时代商业街7-63#(光大银行旁)。
■
百视装饰•七方
设计会所
地址:芜湖市鸠江区伟星·快慢里商业街S7-14号。(快慢里酒楼旁)
■
百视装饰•良本
设计会所
地址:芜湖市湾沚区未来城商铺A11-1102。(未来城小区北门旁)
■
百视装饰•凡宸设计会所
地址:芜湖市繁昌区新城华府商铺10栋12-13号(同济医院对面)
■
百视装饰•南和设计会所
地址:芜湖市南陵县籍山镇南翔路以西金色水岸D2号楼106-107号。
客服
消息
收藏
下载
最近





















