查看完整案例

收藏

下载
设计案例
——BAISHI DESIGN——
户型设计专家 / 我们为您的美好生活而设计
始于·芜湖 · 2003
夏天即将来咯,
一支冰淇淋带来的冰爽与之更配哟?
小编反其道而行,
给你带来热门小区推荐,
为即将到来的夏日再添加一份火热。
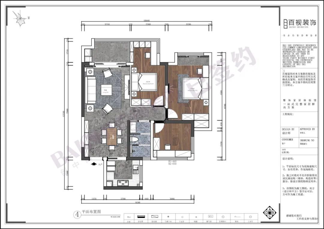
项目地址:
熙悦府2号楼
项目面积:134 ㎡
设计风格:轻奢风格
主案设计
:
崔 荣
家是什么?家是包容我们在外不能展露的所有好的坏的一切。
本案的基调是纯洁干净的高级灰为主,搭配了灰绿色为辅助色,局部蓝色调点缀了空间
,美丽冷静,静谧的氛围,让人卸掉一身的防备,与原木色的碰撞,调动情绪,步入主厅,浪漫的空间,进入自己的王国,放空思绪。墙面护墙板点缀,木质与石材玻璃的结合,冷暖对比,拉开空间,黑与灰,绿与蓝,蓝与棕,色彩的对比,明度的对比,拉开空间层次感,增加空间感。
客厅 ↓
餐
厅
↓
卧室
↓
书房
↓
原始结构图
↓
平面布置
图
↓
本案设计师
崔 荣
公司职务:
主任设计师
工作年限:
10年
擅长风格:
现代风格、欧式风格、美式古典、 新中式风格、港式风格等、
个人荣誉:
中国CIID注册室内设计师、 中国室内设计金堂奖优秀奖、 2011年东鹏星空杯安徽省室内设计大赛优秀作品、 2012年“仿古砖室内设计师大赛”分赛大区十强设计师、 2016“大江晚报”金盛国际杯家装设计大赛优秀奖等。
代表案例:
公园大道、幸福里、凤凰城、左岸、香格里拉、世茂滨江、赭山春秋、 皖江壹号院、颐景湾畔、东方蓝海、国宾府、官山翰林、蔚蓝海岸、东湖壹号院、 外滩府、中梁1621等。
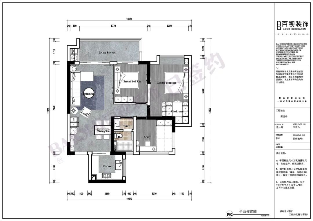
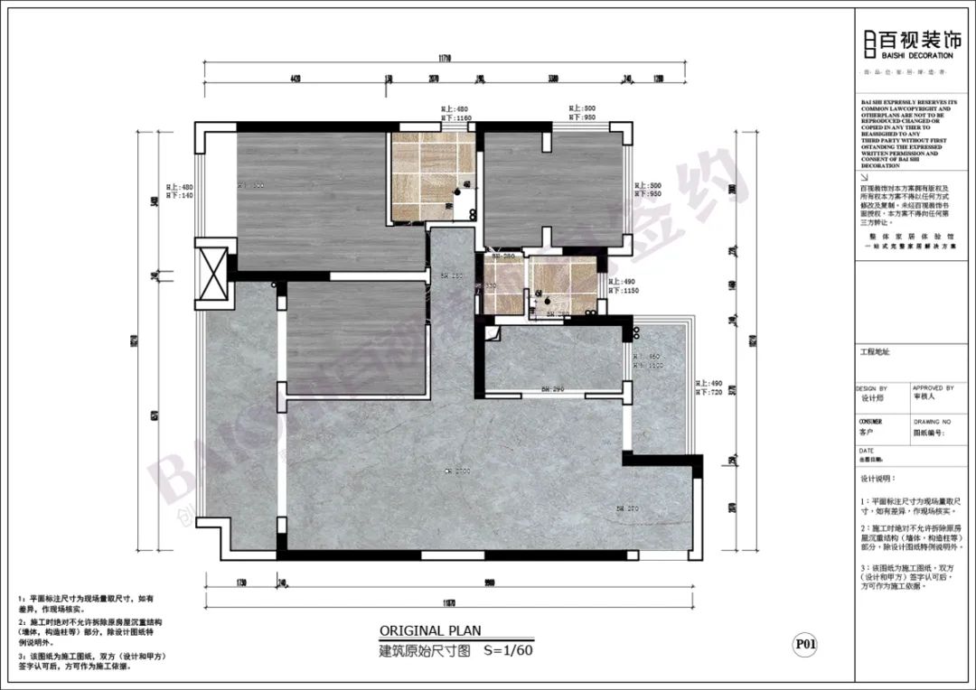
项目地址:
熙悦府A3号楼
项目面积:112 ㎡
设计风格:轻奢风格
主案设计
:
李 纪 璐
本作品为现代轻奢风格。建筑是诗的化身,同时兼顾了艺术与自然的灵感之美。在整个空间设计中,设计师希望通过浅咖色系表现空间的自然美学。整体上以开阔布局、明朗光线为主,营造出惬意的舒适感,结合各人性格喜好的不同,在独立空间设计上,注入相对应的元素,让家的每一个角落都真正成为身心、精神的归属地。我们把生活空间的结构还原为生活的本质,去除多余的、浮夸的装饰图案,用简单的系统来营造生活场景。
客厅
↓
餐
厅
↓
客餐厅
↓
卧室
↓
书房
↓
卫生间
↓
原始结构图
↓
平面布置
图
↓
本案设计师
李 纪 璐
公司职务:
设计总监
工作年限:
10年
擅长风格:
欧式风格、古典风格、 中式风格、现代风格、美式风格等。
人荣誉:
代表案例:
圣地雅歌别墅、碧桂园别墅、柏庄丽城别墅、白金湾、左岸、国贸天琴湾、 华强广场、金域蓝湾、华仑港湾、长江之歌、金域华府、城市之光、兆通大观、美加印象、 东方蓝海、蔚蓝海岸、赭麓公馆、外滩府、官山翰林、赭山春秋、荣盛华府、皖江壹号院等。
项目地址:
熙悦府7号楼
项目面积:112 ㎡
设计风格:北欧风格
主案设计
:
赵 晶
北欧式的生活方式一直潜移默化的影响着本案屋主的生活态度,简单纯粹又朴实无华。整个空间围绕着温柔、治愈的主题展开。整体线条简单、用简单低饱和度色块进行区分。空间多处留白、浅灰原木用以点缀,采用自然元素中的绿植材质装点,使空间氛围贴近自然的同时仍保留理性空间审美。墙面以白、灰为主,纹理自然的灰色磁砖贯穿整个空间。时髦的现代气息中加入沉稳的黑白与自然气韵,营造出脱离现实感的艺术氛围。
客厅
↓
餐
厅
↓
客餐厅
↓
卧室
↓
书房
↓
原始结构图
↓
平面布置图
↓
本案设计师
赵晶
公司职务:
设计总监
工作年限:
14年
擅长风格:
擅长风格:现代简约、欧式风格、 新古典风格、美式风格、田园乡村等
个人荣誉:
室内设计师资格证、 家装协会会员设计师、 2010年芜湖家居视觉优秀奖、 2016年西江月样板房设计优秀奖、 2017年CIID年度明星设计师、 2017企业年度优秀设计师等。
代表案例:
龙隐别墅、和院别墅、柏庄跨界、楚江府第、国贸天琴湾、白金湾、 伟星城、东方蓝海、东方龙城、美加印象、名流印象、柏庄丽城、左岸、金域华府、 华强广场、左岸、名门、长江之星、蔚蓝海岸、外滩府、中梁1621、国宾府等
项目地址:
熙悦府16号楼
项目面积:152 ㎡
设计风格:现代简约
主案设计
:
黄 讯
现代简约,让协调的感觉平衡,与传统风格一样追求内敛,朴素。装修手法的不同也让实用性增强,更富现代感它是经设计深思熟虑后创新得出的设计,非简单的“堆砌”与平淡的“摆放”。客厅电视墙大理石雅士白墙面,彰显空间大气,背景墙墙板透明书柜能够起到拉伸延长空间的效果,使空间的秩序扩大,无主灯设计理念是当下的流行趋势,符合当下一种慢生活的生活状态。
客厅
↓
餐
厅
↓
卧室
↓
儿童房
↓
原始结构图
↓
平面布置
图
↓
本案设计师
黄讯
公司职务:
设计总监
工作年限:
10年
擅长风格:
现代简约、美式风格、 田园风格、欧式风格、中式风格等。
个人荣誉:
芜湖市室内设计协会会员、 高级室内装饰设计师(国家一级职业资格)、 高级软装设计师、 中国注册室内高级设计师、 2018企业年度优秀设计师、 2019企业年度优秀设计师等。
代表案例:
碧桂园别墅、柏庄丽城别墅、金域蓝湾、国贸天琴湾、左岸、凤凰城、 伟星城、润津花园、金域华府、华仑港湾、颐景湾畔、白金湾、名门、华强广场、 皖江壹号院、美加印象、蔚蓝海岸、外滩府、东方蓝海、赭麓公馆、长江之星、 长江之歌、公园天下、熙悦府、荣盛华府等。
项目地址:
熙悦府B11号楼
项目面积:134 ㎡
设计风格:
新 中 式
主案设计
:
黄 讯
新中式风格以符合现代人的生活习惯的室内居住空间现实舒适的居住生活。其内部空间布置,如客厅、餐厅、卧室、书房等完全体现现代生活要求。在室内色彩方面,本案褐色、米黄、长城灰、水绿和原木色来打造新中式的气氛。除了保留中式的韵味外,还加了大理石、筒灯等现代材料,使空间又包含了现代生活气息;光源上舍弃了以往的烛光环境,使用简洁几何灯具,大量采用自然光;在家具搭配上主要取材自然,以木材为主,在合适的地方用合适的材料。
客厅
↓
餐
厅
↓
卧室
↓
儿童房
↓
原始结构图
↓
平面布置图
↓
本案设计师
黄讯
公司职务:
设计总监
工作年限:
10年
擅长风格:
现代简约、美式风格、 田园风格、欧式风格、中式风格等。
个人荣誉:
芜湖市室内设计协会会员、 高级室内装饰设计师(国家一级职业资格)、 高级软装设计师、 中国注册室内高级设计师、 2018企业年度优秀设计师、 2019企业年度优秀设计师等。
代表案例:
碧桂园别墅、柏庄丽城别墅、金域蓝湾、国贸天琴湾、左岸、凤凰城、 伟星城、润津花园、金域华府、华仑港湾、颐景湾畔、白金湾、名门、华强广场、 皖江壹号院、美加印象、蔚蓝海岸、外滩府、东方蓝海、赭麓公馆、长江之星、 长江之歌、公园天下、熙悦府、荣盛华府等。
在建工地现场
在建工地表
编辑
/ 吃雪糕咬棍子
查看实景案例 / 预约参观工地
/
预约设计师
相关互动:
获取同户型方案
小区+户型
,即可获得同户型设计方案。
预约顶尖设计师
装修需求+预约时间
,即可成功预约设计师。
参观在建工地
:
小区+施工阶段+参观时间
,即可预约参观工地。
回复
贵
即
可订阅您家同一户型案例、效果。
(针对有装修需求的您:我们会根据你提供的信息,安排设计过您家户型的设计师,为您提供户型规划以及装修预算,帮您解决装修中所遇到的诸多问题)
■
安徽百视装饰总部
地址:镜湖区黄山东路与弋江中路交口绿地新都会一期B栋LOFT商铺三楼306-318号。
■
百视名家设计会所
地址:芜湖市新时代商业街7-63#(光大银行旁)。
■
百视七方
设计会所
地址:
伟星·快慢里商业中心S7-14号。
■
百视良本
设计会所
地址:芜湖县
未来城A11-102。
400-809-6990
感谢您对我们的关注!百视装饰芜湖17年!服务江城名流生活!
请点击阅读原文报名
“我要装修”
客服
消息
收藏
下载
最近



















































