查看完整案例

收藏

下载
设计案例
——BAISHI DESIGN——
户型设计专家 / 我们为您的美好生活而设计
始于·芜湖 · 2003
摒弃生活的呆板和单调,这里不再有心酸生活的无奈,而是幸福生活的重要组成。让我们在这空间中得到身体和精神的放松,我们可以兴奋激动,但当我们安静下来时,便应该去感受这个世界上的每一份美好,和这些比美好更加细微的每一个刹那。
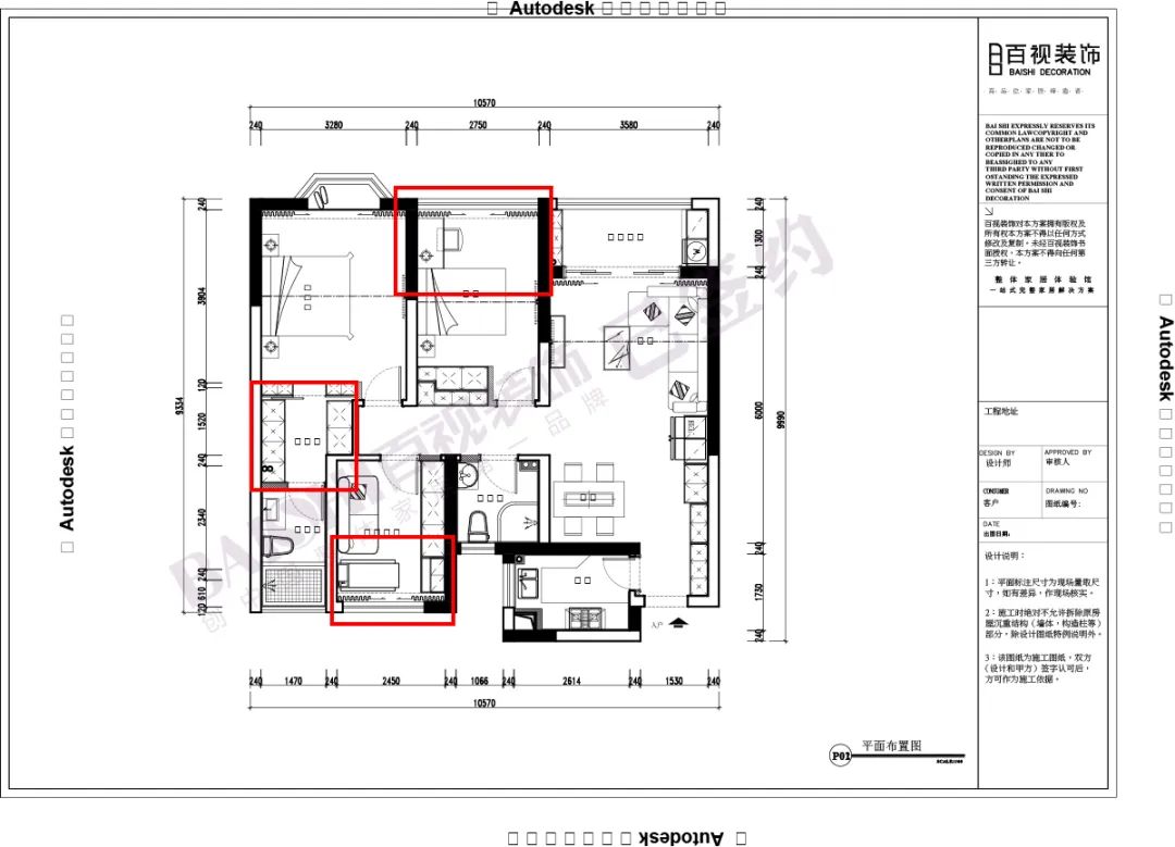
01
98㎡ 北欧风格
案例方案图
▲
before
▲
after
◆ 次卧室和书房的小阳台都纳入到室内,增加房间空间。
◆ 主卧开放式衣帽间改成封闭式衣帽间。
案例效果图
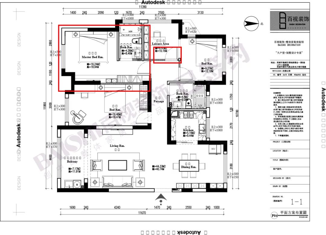
02
103㎡ 现代中式混搭
案例方案图
▲
before
▲
after
◆ 次卧室和休闲室阳台纳入室内。
◆ 主卧室衣帽间外部增加柜体空间,卫生间左侧墙体后移,增加柜体空间。
案例效果图
03
127㎡ 新中式
案例方案图
▲
before
▲
after
◆ 主卧卫生间改成衣帽间。主卧衣帽间不要,墙体砌平,做成内外柜体形式。
◆ 主卧对面的大阳台区域中间墙体拆掉,从中间隔成客卧和书房。
案例效果图
04
140㎡ 美式轻奢
案例方案图
▲
before
▲
after
◆ 主卧卫生间墙体外移,扩大卫生间面积。
◆ 客卫旁小阳台纳入室内,做成次卧室。
◆ 北边小房间和小阳台合并成书房。
◆ 儿童房小阳台纳入室内。
案例效果图
05
146㎡ 现代简约
案例方案图
▲
before
▲
after
◆ 主卧室阳台纳入室内,
砌墙体
,卫生间空间缩小。
◆ 书房门洞移到右边。
案例方案图
▼
外滩府
签约表
查看实景案例 / 预约参观工地
/
预约设计师
相关互动:
获取同户型方案
小区+户型
,即可获得同户型设计方案。
预约顶尖设计师
装修需求+预约时间
,即可成功预约设计师。
参观在建工地
:
小区+施工阶段+参观时间
,即可预约参观工地。
客服
消息
收藏
下载
最近














































