查看完整案例

收藏

下载
来源:安徽百视装饰设计工程有限公司
原木的风情划过丝丝的脑海,一圈圈的年轮刻画时光的记忆,抚手之间的温润,淡淡书香,是很多城市中人内心的向往,去繁就简,回归自然,清新的北欧风便是对这套案例最好的归宿
。
去掉了繁琐累赘的线条和鲜有璀璨奢华的元素,通过深浅不同的绿色之间的相互碰撞,干净利落的讲述了一个关于家的故事,给家以精致、温暖的生活气息。除了满足正常的生活功能外,也展现一个家的美貌。柔和的色彩,利落的线条,有温度的原木色,都让这里轻松而美好。
1
小 区
金浩仁和天地
面 积
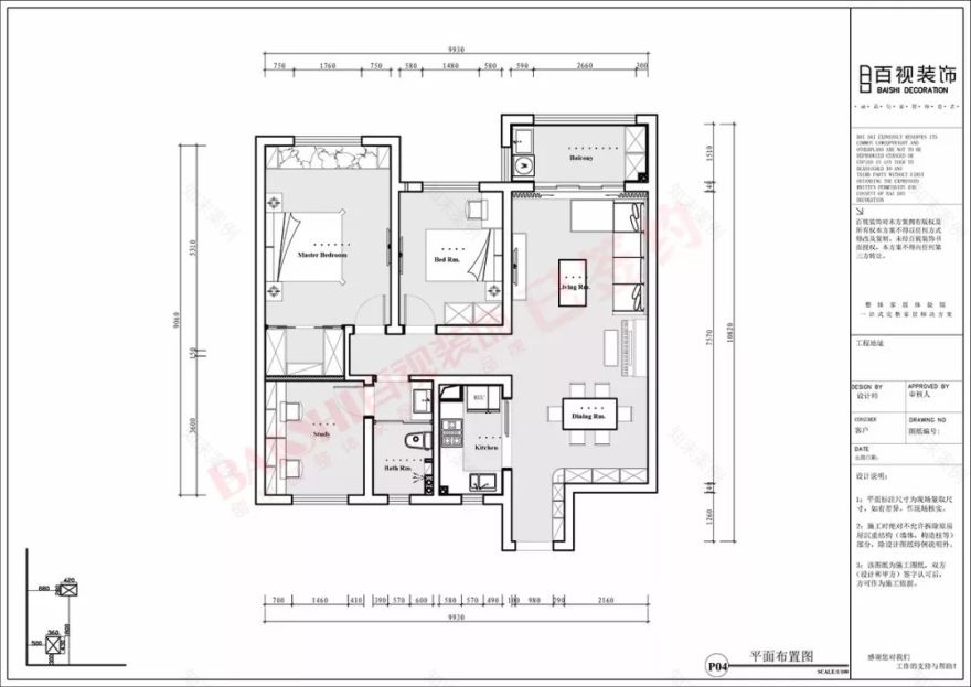
106平米
设 计 师
吴先军
▼ 原 始 户 型 图
▼ 平 面 布 置 图
▼ 客 餐 厅
▼ 卧 室
2
小 区
颐景湾畔
面 积
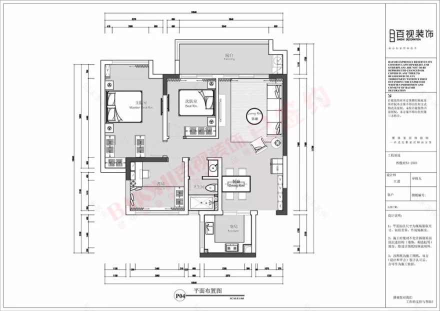
110平米
设 计 师
黄讯
▼ 原 始 户 型 图
▼ 平 面 布 置 图
▼ 入 户 玄 关
▼ 客 餐 厅
▼ 卧 室
3
小 区
熙悦府
面 积
112平米
设 计 师
江蕾
▼ 原 始 户 型 图
▼ 平 面 布 置 图
▼ 客 餐 厅
▼ 卧 室
4
小 区
赭山春秋
面 积
141平米
设 计 师
尚菲菲
▼ 原 始 户 型 图
▼ 平 面 布 置 图
▼ 入 户 玄 关
▼ 客 餐 厅
▼ 次 卧 室
5
小 区
赭麓公馆
面 积
143平米
设 计 师
刘瀚宇
▼ 原 始 户 型 图
▼ 平 面 布 置 图
▼ 客 餐 厅
▼ 卧 室
▼ 书 房
6
小 区
世茂滨江
面 积
155平米
设 计 师
陈熙
▼ 原 始 户 型 图
▼ 平 面 布 置 图
▼ 客 餐 厅
▼
卧 室
7
小 区
皖江壹号院
面 积
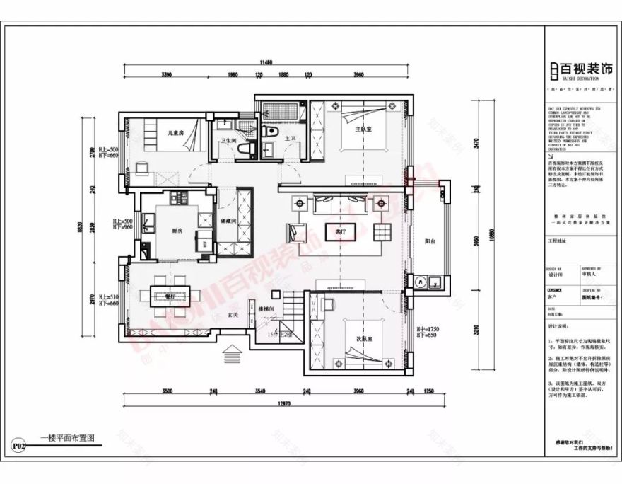
157平米
设 计 师
涂雪峰
▼ 一 楼 原 始 户 型 图
▼ 一 楼 平 面 布 置 图
▼ 二 楼 原 始 户 型 图
▼
二
楼 平 面 布 置 图
▼ 客 餐 厅
北欧风格的居家,淡的色彩、洁浄的情感,让居家空间得以彻底降温。
客厅空间的布置重点,在于家具的选购与色彩以及布品的搭配,协调、对称的技巧,让每一个细节的铺排,都呈现出令人感觉舒适的气氛。
谢 谢 翻 阅 │ 欢 迎 分 享
B A I S H I D E S I G N
查 看
更 多
案 例
│
预 约 设 计 师:
180-5530-6614
回复
“
贵
”
即可订阅您家同一户型案例、效果。
(针对有装修需求的您:我们会根据你提供的信息,安排做过您家楼盘的设计师,为您提供户型规划以及装修预算,帮您解决装修中所遇到的诸多问题)
安
徽百视装饰总部
地址:镜湖区黄山东路与弋江中路交口绿地新都会一期B栋LOFT商铺三楼306-318号。
百视装饰名家设计会所
地址:芜湖市新时代商业街7-63#(光大银行旁)。
百视七方
设计会所
地址:
伟星·快慢里商业中心S7-14号。
百视良本
设计会所
地址:芜湖县
未来城A11-102。
点击阅读原文预约设计师
客服
消息
收藏
下载
最近




























































