查看完整案例


收藏

下载
THE SECLUSION DESIGN
隐逸设计
VOL.1
序言_
沉淀温暖,追寻内心的平静与淡然,当人们身处在张弛有度的空间里,生活像是被一种特别的方式拥抱,缓慢的、惬意的、炽热的,一切看来简而有致,又氤氲着美的感受与遐想,就像傍晚的日落尤其温柔。
VOL.2
结构解析_
一楼原始平面图
二楼原始平面图
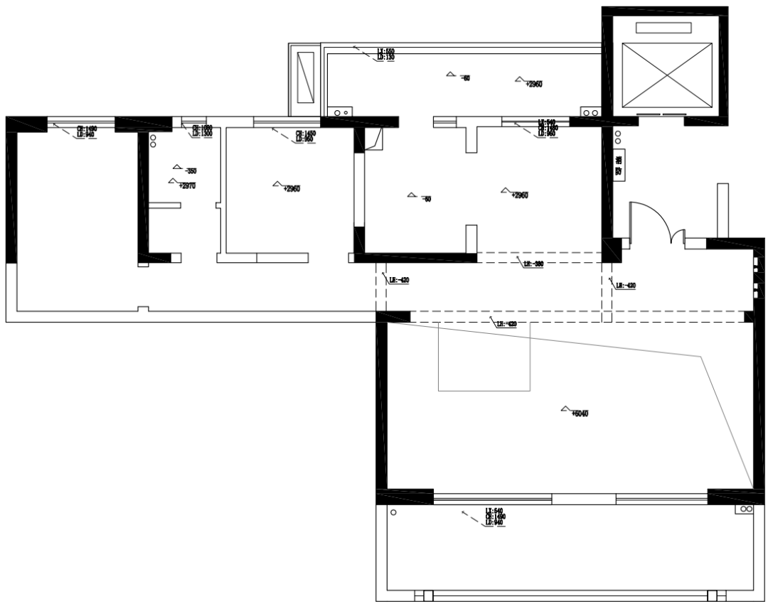
平面布局图
布局改造
1、将客厅阳台纳入客厅,两侧做收纳柜,满足储物需求的同时,多出一个休闲区域;
2、餐厅外移与客厅形成开放式布局,厨房调换至原来餐厅位置,让渡出来的空间做独立储物间;
3、利用客厅挑高层搭建二楼,布局建造出独立的主卧;
VOL.3
实景呈现_
| 一楼客厅
| A LIVING ROOM
步入客厅,就能感受到现代简约风格的干净通透。以长虹玻璃做玄关隔断,美观的同时保证私密性,让居家生活更有惬意的放松感。
以米白色为主的电视背景墙搭配黑色大理石地台,深浅对立,凸显出空间的视觉中心。客厅搭配米色皮质沙发,茶几金属光泽跳脱打破单调,木色边顶流淌着自然,以温润色彩与材质结合,弥漫出细腻与温度。
把阳台纳入客厅,放置上墨绿色的单人躺椅,灵动轻盈,形成一个通透、闲适的休闲区。| 一楼餐厅 | RESTAURANT
借用沙发自然分划出开放式餐厅,放上原木与大理石结合的岛台餐桌,为生活的乐趣带来了更多的可能性,无论是品尝美食还是小酌一杯,抑或是茶话家常,都可以尽享其中。餐厅一旁时尚感极强的楼梯间,用石材的搭配提升了整体空间的审美与情致,与餐厅、客厅相互呼应,功能与颜值双双在线。
过道用原木饰面顺延贯穿客厅、餐厅、厨房、卧室,用拱形长廊勾勒出不一样的生活内涵,在简约的空间交织出一抹独有的浪漫情怀。
| 一楼厨房
| KITCHEN
厨房时尚、简约,将有限的空间合理把控,偏实用功能为主的设计方便烹饪者的使用,生活变得干净便捷。
| 一楼次卧
| SECONDARY BEDROOM
次卧以柔和色彩为基调,通过减少设计元素,强调自然生活的深刻,让人们在空间中感受宁静。| 二楼主卧| MASTER BEDROOM
朴素的生活美学,对居者的感受有着最妥帖的生活观照,整个主卧空间充满着和平的气息,色彩、体块、线条相互穿插却互不干扰,巧妙的组合让淡雅的空间也有了丰富的层次。当清晨的阳光照进房间,时光闲适,让人心生愉悦,充满热爱。
项目出品_
THE SECLUSION DESIGN 隐逸设计
项目名称 Project Name : 傍晚的日落
项目地址 Project address : 丽雅江宸
项目面积 Area :142㎡
服务模式 Service Mode : 全案设计
空间风格 Space Style:现代极简
主案设计 Designer:龙波 廖凤鸣
竣工时间 Time for completion:2023.3
空间摄影 Space phorography : 舍南巷
隐逸设计
THE SECLUSION DESIGN
_
地址 / 宜宾.龙城蜜立方 3 栋 303.304.305
商务洽谈 / 13568566685
工作时间 /全年无休 9:00——18:00
客服
消息
收藏
下载
最近

























