查看完整案例


收藏

下载
△
书店改造后内景 摄影:赵奕龙
设计团队
UAO瑞拓设计
建成时间
2019.12-2020.1
建筑面积
一层室内面积402平米,夹层面积117平米
2019年3月,随州“最好的时光·城市书店”的创始人贝姐找到我,希望我们能改造她的书店。其实在这个项目之前,我们并没有书店设计的经验,唯一对书店的相关实践,局限于我们自己办公室设计的满满一面书墙,好在我自己是一个爱书的人,结合我对书店本质的思考,慢慢进入了状态。
△ UAO办公室改造设计 摄影:赵奕龙
书店的设计,这几年正是风口。全国各地都掀起了实体书店的开业浪潮,从小型独立书店、连锁书店到大型集合式书店,千方百计争奇斗艳,已然脱离读书的本质,追求一眼的惊艳。翻来覆去,也有些审美疲劳。
这也不怪书店本身,互联网彻底改变了书店的盈利模式,从诚品开始,书店只变成一个载体,相关的商业业态都可以装进去;书店更多的变成一个时尚标签,至于里面看不看书,反而成为次要的事情。
也许是我的固执,我还是觉得书店首先还是一个让人能安静读书的地方,书应该成为场地的主角,它不只是一个照相布景那么简单。其次,书店又不能只是书店,因为它是一个精神象征,它应该有一定的辨识度,这个辨识度是阅读的空间气质给予的,不能走向过于哗众取宠的一面;当然,书店本质上还是一个商业体,它必须要自己有造血能力,保证现金流的良性循环,从而把精神的象征延续下去。
我表达这个逻辑,只是把读书放在第一位,所有其他的功能必然围绕书籍来布置。这算是在潜意思里的第一步减法。
这个书店位于湖北省下面一个最年轻的地级市随州,随州是一个历史文化特别浓郁的城市:比如曾侯乙编钟的发掘地、炎帝神农的故乡。在这样一个安静的小城市,能有一家具有人文精神的实体书店,已属不易。贝姐提出“一家书店温暖一座城市“的理想口号,她和合伙人运营这家书店4年,已经成为当地的文化地标。
考察现场后,发现现有书店的功能很多,但是各项功能之间多有交叉,比如读绘本的小朋友会影响到其他正常读书希望安静的顾客,而谈业务的商务人士,又发现没有任何稍微独立的环境;同时,甲方希望有一个独立的大空间,来满足日常举办各种有关随州的线下沙龙活动的需求——这也是“一家书店温暖一座城市”的实际体现所在。但是,原有的吧台横亘在场地正中,把本来不大的场地分成了互不相连的两块,尤其厨房在对外的楼梯边,吧台和厨房却相距很远,餐食加工被分为两块,送餐流线加长,甚至还需要多配备人手来解决厨房和吧台不在一起带来的问题,这也增加了管理的难度。
△ 书店改造前 摄影:晏罗蒂
我们和甲方一起重新梳理了未来的业务板块和新的经营拓展计划:首先其核心还是书店和沙龙空间,配套有咖啡、茶室、儿童绘本馆、摄影工作室、花艺课堂、蓝染课堂、儿童课堂等多达7种复合功能,整体呈现一个“书店+”的状态;而更重要的是书店会经常举办一些100人以上的类似
沙龙
的活动,这些活动需要一个足够大的空间来承载。可是原来的书店空间被各种小情趣分割得过于零碎,已经不能满足这个主要功能的需求。
组合这些复杂的功能,成为设计首先要解决的问题。
最开始的方案,是把整栋楼1、2、3层做一个复合型的书店空间,一层满足咖啡和基本的图书阅读需求,尤其甲方要求不能变动原来吧台的位置,因为吧台已经成为一个招牌式的记忆符号;二层和三层,我们将楼板中间打开,形成了一个台阶式的沙龙空间,围绕这个沙龙空间设计茶室、蓝染课堂等;三层则围绕书籍做展览。
△ 原方案一层效果图
©
UAO瑞拓设计
△ 原方案二三层效果图
©
UAO瑞拓设计
这样的方案沟通从2019年5月断断续续持续到11月;直到11月23日,贝姐突然到武汉找到我,她希望所有这些功能都不发生变化,但是根据书店的实际投入,只能改造面积400平方米、层高4.7米的一层范围。随着造价和空间范围的压缩,设计和施工的时间也被压缩:甲方仍希望在2020年1月12日建成开业,选定那一天是因为腊月十八,归乡的人都回来了;这样的开业时间节点,导致设计+建造的时间一共只有50天的时间,这逼迫我思考如何在快速设计和建造的过程中,用较低的造价来保证品质。同时,更重要的是,我要思考如何解决这么多功能空间塞在这么小的面积里的可能。
空间功能的压缩带来的被动的减法。
所以我用一个最大公约式的空间,去涵盖这些功能,同时又把明确的独立功能给分割出来。
解决这个复杂功能,首先借鉴了“巴西利卡”这种教堂式布局模式:确定一个用四面书墙围合成大的“剧场“式的空间,四面书墙带来的书是第一主角的视觉直觉;同时,为了让每本书都可以拿到(也是让书可读,而不只是看),书架就不要太高,因而引入了夹层空间,这样上下每层书架都可以拿到书。考察现场,发现吊顶里很多管线;在拆除原有吊顶,并合理规划和迁移了空调、消防这两大”吃空高“的设备管线后,为了让原有4700层高的空间满足夹层的净高需求,将现有地面下挖了400;从而保证了夹层下部空间2400,上部空间最高处净空到2600,局部梁下2200的可能。
△ “巴西利卡“空间分析图
©
UAO瑞拓设计
△ 巴西利卡式大厅 摄影:赵奕龙
△ 书是第一主角
摄
影:
赵奕龙
△ 改造中对层高得复核 摄影:龙可成
围绕这个大的“剧场“式空间,将茶室、儿童绘本馆、摄影工作室、活动教室、厨房、收银台等配套功能空间组合在剧场空间的周围,通过夹层的走廊进行连接;收银吧台结合饮品台,设计到与厨房并列,其平面斜向的角度,刚好面向入口的前厅,方便来客第一眼看见;儿童绘本馆内自有楼梯,占据夹层上下空间;约读课堂和蓝染教室则分据夹层上下;夹层外廊这些多功能空间,空间感受有高有低,形态各异。“核心空间单一,周围空间丰富,周围空间环抱核心空间”这种组合方式,其实也是经营模式的多功能要求:大空间,平时是咖啡厅,周末变身为沙龙文化聚会空间;它同时拥有如同剧院楼座般的夹层回廊。
△ 爆炸分析图
©
UAO瑞拓设计
△ 儿童绘本馆 摄影:赵奕龙
△ 儿童绘本馆一层室内 摄影:赵奕龙
△ 摄影课堂看儿童绘本馆 摄影:赵奕龙
“巴西利卡”式的教堂空间,解决了
“
书店+
”
的多功能要求,从而把原有三层的功能需求压缩至一层空间里解决。
空间压缩解决的同时,还有一个实施时间的压缩:这也是本项目最大难点——设计+施工+软装+清洁+摆场 ——只有50天的时间(前期设计占去几天时间,真正的施工时间只有40天,最后一周是各个阶段的大杂烩)。那么,设计提交给施工的成果,就需要降低难度系数,具有容错性。夹层结构使用钢结构,便于工厂加工和现场焊接,避免混凝土结构的凝固和保养期;书架交给当地的成品定制厂家,便于安装和现场组装,甚至考虑到后期加工尺寸如与现场不符,由当地整改的可能——要知道一般的定制厂家绝不允许这么做,正规的流程必然是等所有结构洞口尺寸定形后复尺,再出加工图,再确认下料加工——但这个项目没有时间去按正规流程来做,那就要考虑书架尺寸的容错,我们的解决办法是书架上部的吊顶当作调整尺寸的冗余。
△ 螺旋楼梯施工过程 摄影:晏罗蒂
整体书店的白色系,一方面是我和甲方都有把握的颜色(也正来源于我们办公室的白色系),
另一方面,也是出于“减法”的初心,把这么多功能,最后都克制到一个极致的白色里去,方便甲方在开工的第一天就可以做家具的采购,白色家具的表达,比“木色”家具的表达要准确易控制多了。
40天的工期,又赶上春节前最后一个月,工厂和物流如果晚个十天,估计都不能达成1月12日开业的目标。
而且,白色基调定下来后,贝姐又调动当地做标识系统的设计和厂家,按这个原则出具设计图,也保证在开业前一天安装到位。
△ UAO办公室的白色系 摄影:赵奕龙
△ 收银台和廊桥 摄影:赵奕龙
△ 入口 摄影:赵奕龙
△ 夹层空间 摄影:赵奕龙
△ 钢结构施工中 摄影:贝姐
在具体施工阶段,这是一个妥妥的边设计边施工的过程,进展紧张而顺利。在基本概念和平面布局确认后,就提交平面给施工方做拆除的工作,并下挖地面和改造水电管线,浇筑地面和预埋钢构的基础;拆除工作进行中,钢结构施工图交付去工厂订购;等钢结构现场安装刚一成型,书柜定制厂家就来复尺,我们要求他预留出钢结构后期现浇水泥的尺寸;书柜的定制设计开始时,现场同步泥工、木工和水电等工种;最后的一周,各种工种交叉施工。当然,我们的驻场建筑师晏工发挥了很大的作用,现场根据施工的进行,调整尺寸,完善细节,保证了效率和最后的完成度。
△ “巴西利卡“式大厅 摄影:赵奕龙
2020年1月12日,在贝姐找到我确定了只改造一层的想法的2019年11月23日后刚好50天,书店开业,开业当天举办了读者回馈沙龙活动;开业后,又举办了一系列沙龙;贝姐和合伙人她们谨慎选择活动的主题,使其符合
“
构筑本地精神文化生活
”
的书店核心述求,达到“一家书店温暖一座城市”的目标。
后记
这个项目完工开业使用10天后,湖北即遭遇新冠疫情导致的封省;截至现在,已过去三个月;即使随州已经解封,但疫后的实际情况,导致书店等服务类业态的持续经营困境,已经濒临崩溃的边缘。书店老板贝姐开始将书店搬到了网上,推出了一系列“盲选”
“
推书”等线上众筹活动,我当即转发,也随即下单,最后寄到的书里有一本1985年出版的加西亚·马尔克斯的《霍乱时期的爱情》。我在里面看到了一段文字,遂记在下面:“船长看了看弗洛伦蒂诺·阿里萨,看到的是他那不可战胜的决心和勇敢无畏的爱……原来是生命,而非死亡,才是没有止境的。”
最后,我真心希望所有的实体书店都能坚守下去,度过寒冬,不为别的,只为“一家书店温暖一座城市”。
——李涛 于2020年4月8日武汉解封之际
设计图纸 ▽
△ 改造前平面
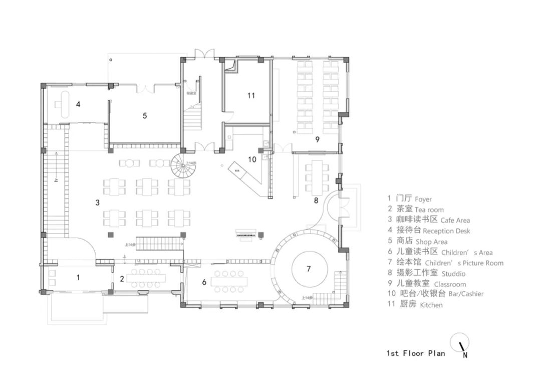
△ 改造后一层平面
©
UAO瑞拓设计
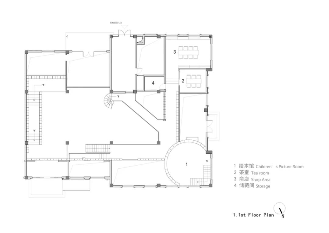
△ 改造后夹层平面
©
UAO瑞拓设计
项目基本信息
项目名称:最好的时光·城市书店
设计时间:2019.11
建成时间:2019.12-2020.1
建筑面积:一层室内面积402平米,夹层面积117平米
设计团队:UAO瑞拓设计
主持建筑师:李涛
参与设计师:晏罗蒂、王纤惠、孔繁一、张杰铭、龙可成
驻场建筑师:晏罗蒂
中文:李涛;英文:韦丰
摄影:赵奕龙
视觉
/ 李茜雅
校对
/ 原源
本文由
UAO瑞拓设计
客服
消息
收藏
下载
最近



























