查看完整案例


收藏

下载
△ 建筑全貌 ©H
ighlit
e Images
设计单位
Atelier Alter Architects 时境建筑
项目地点
北京市石景山
建筑面积
2880平方米
建成时间
2018年
△ 五里春秋泛文化艺术中心
五里春秋泛文化艺术中心体验区坐落于北京周边的石景山五里坨区域,临近壮观的西山,是西山脚下兼具文化中心功能的售楼体验区。
这个项目借鉴了西山的遗产和灵感,并为当代中国大都市的家的体验场所提出了新的定义。
△ 建筑全貌
©Atelier Alter Architects 时境建筑
△ 建筑全貌
©
H
ighlit
e Images
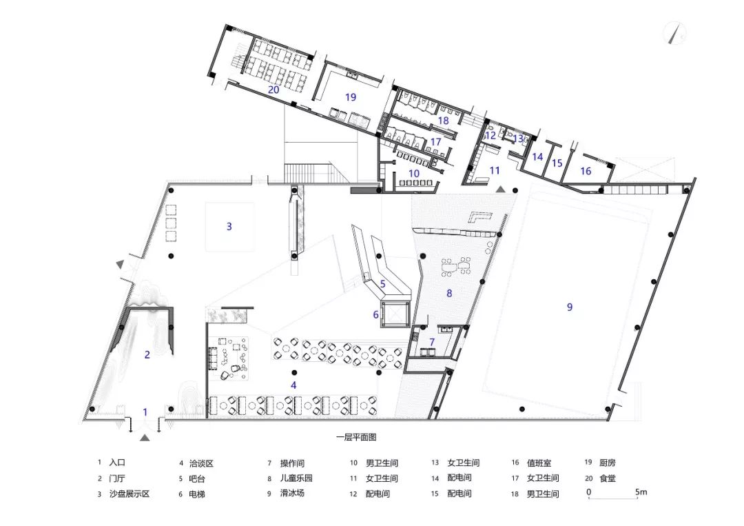
该项目建设有1500平方米的环抱式的体验中心和400平方米的社区溜冰场,体验中心包括规划展示区、文化茶吧、吧台、VIP室、儿童室和滑冰场。
△ 功能分析图
©Atelier Alter Architects 时境建筑
维特鲁威(Vitruvian)对原始家的两个基本要素——最初的家——是火源和庇护所,
在庇护所下围绕着火源走动是生活中的日常仪式。
同样的仪式也存在于宗教建筑中,建筑会有一个围绕着的中心或尊崇一定的朝圣路径。
信仰和仪式对于一家来说是必不可少的。
对于家的表达,该项目把宗教中的建筑氛围和发展的环绕路径的概念结合在一起,让游客以一种新的方式游历西山,使景观围绕建筑不断变化,几乎重新定义了生活的化身。
△ 流线分析图
©
Atelier Alter Architects 时境建筑
由于场地的几何形状是三角形的,项目将曲线的墙层层叠加,以交叉的方式来创建通向建筑物的庭院或中间空间层的道路,因此一些空间的分界线是漂浮在空气中的水平墙。
为了与附近的长城风光进行对话,并保持北京四合院住宅的传统,项目着重通过建筑和景观中严谨的比例墙塑造意境,在统一色调的同时创造了一个庄重的、具有历史感的项目。
△ 庭院
©
Atelier Alter Architects 时境建筑
在狭长的地段上设计师设置了两个轴线,一个指向八大处,一个指向香山。这两个轴线非常接近,展开了建筑的景观和沿街立面,而垂直于这两个轴线的方向即是北京的石景山城区。
沿着轴线行进的方向,设计师在建筑内依次安排了规划展示区、文化茶吧、吧台、儿童室和滑冰场,
其中文化茶吧区是一段围绕吧台的坡道。跨过儿童室和通向溜冰场的前台和更衣间,盘旋上升到达二层的VIP室和样板间体验室。
在这里,流线的扭转成90度与建筑主轴线的方向,在坡道上和通往VIP的通道上的行进过程中都可以俯瞰冰场的活动,这里的空间是贯通的。
从VIP室出室外,可以继续盘旋上升到达项目的最上层屋顶露台,饱览北京的西山壮观景色,其中的“峡谷”廊道直指北京香山的山峰。
△ 景观分析图
©
Atelier Alter Architects 时境建筑
△ 庭院 ©Highlite Images
△ 屋顶露台 ©Atelier Alter Architects 时境建筑
这些盘旋的坡道深刻地影响了室内的空间和光线的变化,大量空间的穿插在这些楼板的变化中得以实现。
摆荡的楼板变化最终以一种“倒置的西山”的形态在室内表达出来,斑驳的暖色木质天花板垂片暗示了西山秋天的红叶盛景。从入口到冰场,颜色从暖色到白色,以满足冰场的真冰地面的需要和混响的控制要求。
△ 木质天花板垂片
©Highlite Images
室内的地板、墙材材质与室外一致,都是混凝土材质,室内的坡道也延伸到室外。
这样,这个建筑是没有区分空间的大型流动的场所,自由的流线上下摆荡,人从室内一眼就可以看见全景的西山壮观景色。
△ 建筑
入口 ©
Atelier Alter Architects 时境建筑
△ 建筑
入口 ©
H
ighlite Images
△ 休息区
©
H
ighlite Images
△ 休息区
©
Atelier Alter Architects 时境建筑
△
VIP室
©
H
ighlite Images
△ VIP室
©
Atelier Alter Architects 时境建筑
△
滑
冰场
©Atelier Alter Architects 时境建筑
△ 滑
冰场 ©Highlite Images
设计图纸 ▽
△ 总平面图
©
Atelier Alter Architects 时境建筑
△ 一层平面图
©
Atelier Alter Architects 时境建筑
△ 一层夹层平面图
©
Atelier Alter Architects 时境建筑
△ 二层平面图
©
Atelier Alter Architects 时境建筑
△ 屋顶平面图
©
Atelier Alter Architects 时境建筑
△ 屋面平面图
©
Atelier Alter Architects 时境建筑
△ 剖面图
©
Atelier Alter Architects 时境建筑
完整项目信息
业主:
远洋地产
建筑及室内设计:
Atelier Alter Architects 时境建筑
主持建筑师:
张继元、卜骁骏
设计团队:
张继元、卜骁骏、蒋萍、黄玮、李振伟、颜然、郑来荣、王珏、马磊磊、黄博、秦川、刘连华、曹纯彪、吴疆、林唯聪
结构设计:
北京萨蒂尼工程顾问有限公司—左晴、王多民、马彬、余粤
机电设计:
成工、李振伟
景观设计:
LANDAU朗道国际设计
软装设计:
Design Republic设计共和
灯光设计:
Puri Light北京光湖普瑞照明设计有限公司
工程施工总承包:
远洋建筑工程有限公司
室内施工总承包:
深圳市深装总装饰股份有限公司
幕墙施工:
远洋建筑工程有限公司
景观施工:
顺景园林
造价:
4000万
建筑面积:
2880平方米
项目地点:
北京市石景山
建成时间:
2018年
照片版权:
Atelier Alter Architects 时境建筑
、Highlite Images
编辑
/ 魏璇
视觉
/ 李茜雅
校对
/ 原源
本文由
Atelier Alter Architects
时境建筑
客服
消息
收藏
下载
最近











































