查看完整案例


收藏

下载
△
走廊看向水院
项目地点
河北省沧州市南大港,碧桂园凤凰生态城
建筑设计
丘建筑设计事务所
建筑面积
600平方米
施工周期
2018年4月—2018年6月
撰文
于岛
△
项目视频
容纳禅修馆的社区毗邻一片珍贵的湿地自然保护区,而禅修馆的选址,则位于社区内部的一条商业街上,面向一片园区中的人造景观。
△
社区旁的湿地
△
改造后的商业街外景
商业街连续的单层商铺体量,为后侧的二层住户提供了开敞的屋顶露台,由于露台排水的要求,使得屋顶向中间找坡。在六间打通的商铺里,柱梁线性排列开来,屋顶向中轴倾斜,落水管贴柱而下。如此,便是禅修馆改造前的一副骨骼。
△
改造前内部空间
矛盾产生于立项之初的几个基本条件。
首先,在使用上带有强烈内向属性的观想空间,被安置在一条园区内的主要商业流线上。
其次,经与业主粗略地沟通商业策划后,需要将禅修馆在单一空间现状的基础上,改造成可同时容纳多种观想行为的场所,在保证不同行为私密性体验的同时,还要兼顾举办不同规模活动的适应性。
更抽象的命题是,如何把禅修馆从仅仅作为室内装饰的项目思路中解放出来,通过不倚仗视觉感官的方式,在社区内部一处不大的室内空间和外部广袤的自然湿地之间,嫁接起一道感知的桥梁。
这几对立项之初的内在矛盾,需要通过空间的手段调和,这也是禅修馆设计的起点。
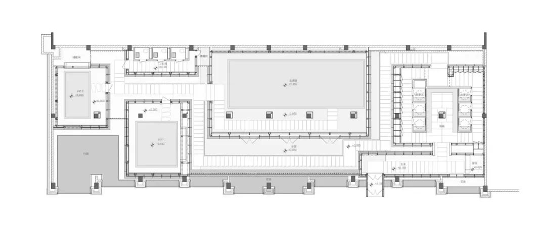
平面
在平面的组织上,我们将容纳不同观想行为的房间,作为分割空间的基本单元。弥散分布的体量,将空间划分成不感知原结构的,连续但迂回的“外部”公共空间(走廊,水院),以及暴露原结构的,独立而静态的“内部”观想空间(课室)。
△
改造后平面图
每个房间根据各自不同的尺度和性格,分别对应玄关,等候室和更衣间,主课室和小课室,以及洗手间等基本使用功能。抵达课室前迂回的线性路途,是经由身体至心理的前奏铺垫。
△
开门时的Logo
穿过隧道般的入口,体验线性展开。青石板铺设的步道串联起终点被侧光提亮的玄关,围绕一组柱梁布置的等候室,以及向两侧分别进入的男女更衣间,再经由几次身体的转向,来到豁然明亮的水院。
△
隧道般的入口
△
玄关
△
围绕柱梁布置的等候室
△
走出更衣室后回望
△
进入水院前的走廊
由明亮嘈杂的商业街进入室内起,直至到达水院再次感知到柔和的自然光源,眼睛已经过光线由明至暗再提亮的梯度调试,配合水院两侧界面的语言调动,身体在感官上进入了一处被内化的“室外”空间。
△
进水院前转折
△
进水院前转折
主课室外墙打开的门扇,低垂的吊灯和致密的格栅,通过构件的重复,拉长了行走体验中的时间感。门扇背侧暖红色的木饰面,提示着某种外翻开来的内部“温度”。行进中,自然光源经由磨砂玻璃和百叶被柔和地过滤,向光望去,外界嘈杂的信息被屏蔽,只见竹影婆娑在光明处。
△
水院
△
水院回望
△
水院回望
围绕“内外”展开的基本空间形制,得以通过平面的组织建立,而剖面的动作,意在配合平面的意图,进一步刻画“内外”空间性格的差异。同时,试图将更大范围的场地信息内化进来。
△
主课室剖面草图
围合课室空间的墙壁,是由轻质木构建造的双层腔体。腔体内侧倾斜,外侧直立,内外界面通过水平檐口构件,收束在飘离地面的高度。腔体内侧水平向的木百叶层层悬挂下来,在建造上消化了内墙的倾斜,配合房间中立柱“支撑”和横梁“出挑”的姿态,整个课室仿若屋顶阁楼,被粗壮的柱梁“撑起”,一层层“挂下”,飘离于地面。
△
主课室
在倾斜的梁间,做水平的吊顶,让梁在视觉上的收分进一步强化“出挑”的姿态。在梁的末端垂挂下吊灯的高度,与抬高的基座一起邀请身体坐下。柱梁的架构配合围护的垂挂,让课室在感官上成为内向的 “容器”,包裹着观想的身体。
△
高台,吊灯,背屏,“人像”
△
高台,吊灯,背屏,“人像”
一片贯穿“内外”的水景,将水院的光线经由水平缝隙反射进来。课室中,四根混凝土立柱从水中升起,轻质的木构容器浮于水面,整个禅修馆,是一处关于湿地上考古遗址的类比,营造出一片观想中的“湿地”景观。
△
主课室
当主课室通过结构与围护关系的调动,唤起对“大殿”的想象和类比,就不得不面临一个原型的问题:传统的大殿,通过墙体与架构体系的语言,经过适配、变形,限定出佛像与人的空间等级。而对禅修馆,在一个没有字面意义的佛像的课室里,如何进一步解构原型?
在主课室空间领域的限定上,经过多次调试,最终决定让四根柱子落在课室中偏心的位置,切分出通向高台的步道,和高台之上的观想空间。柱列与高台作为定义空间的要素,使得打坐中的“人像”与行进中的人,在空间上产生了等级。
△
柱列后行进的人
在进入主课室后,行进在步道上的人,视线穿过柱跨,瞥见高台上的观想者如剪影般安坐于一面被光线渲染渐亮的“背屏”前,高耸层叠的墙面只在身体的高度被打亮,和一盏盏从暗处悬挂下来的吊灯序列一起,在凝视中烘托出一种仪式感。行进间,看到背屏前与柱跨轴向对位的吊灯剪影,观想中的身体被刻画出了一种正面性。观想中的人,仿若“人像”。
△
高台上的 “人像”
高台上的“人像”被庇护于整个空间的内核里,与容器“内部”中的行人,和“外部”的空间拉开了距离。同时,经由百叶水平向的缝隙和水面反射进来的光线,让观想的领域与“外部”空间依然产生着由光线编织出的联系。
水院中的步道经由剖面中精确的视线控制被隐藏,向光望去,只见模糊的身形剪影于水面静谧的倒映中行进,在柱子的轮廓间忽明忽暗,若隐若现,像是微妙地扰动着“内部”的涟漪与音符。
△
“人像”看向光明
经由课室中语言的调动,原本中性存在的柱梁客体,在视觉上被整合为整体语言系统中不可分割的“必要性”构件。
在围护结构的包裹下,原本中性的柱梁结构在容器中获得了物体般的存在。而每个容器与柱梁位置关系的不同,也赋予房间不同的性格,适配相应发生的观想行为:在可以容纳多人的主课室里,四组柱梁序列赋予空间“大殿”般的性格;而小课室里的单组柱梁,成为观想者独处时身体的陪伴。
△
小课室南
△
小课室南
△
小课室西
△
小课室西看向主课室
△
主课室看向小课室
通过分割的手法,带来结构本体的空间性阅读,将原本物理性的结构整合进意义的讨论,是筱原一男留给后代的遗产。
在日本研习期间,我得以跟随老师奥山信一对筱原一男的作品进行系统性的梳理,白之家围绕那根杉木柱,通过平面上一堵让圆柱在感知上偏心的隔墙,和剖面上隐藏部分结构的吊顶,让空间在片段化的体验中被重新整合、认知,同时营造出带有文化性的空间经验。单纯的结构本体配合两次分割的手法,调动起全新的空间阅读和认知——白之家的原型,在我脑海里挥之不去。
△
白之家平面图
△
白之家剖面图
禅修馆的给定条件,注定不能像白之家那样在新建建筑的语境下,自由主动地调动结构与围护来提炼空间的意义,但这也恰恰是站在那排线性排布开来的柱梁前,强烈地意识到需要通过一定的手法,来完成对已有结构要素解构再整合的理由。
在一定的给定条件下,恰如其分地调动视觉,通过物理的手法提示出对更大层级的关照并叠加意义,是建筑师永恒的话题。而所谓空间的意义,根植于对那些必要性构件的形式控制里。
短短两个月的工期里,禅修馆的建造有很多遗憾。业主内部的调整,使得我们需要在总体时间已经十分紧张的情况下,完成追加的施工图设计。任务书的变动和工期的不变要求,导致部分施工图纸不得不在现场边做边画。驻场近一个半月,早上工地需要的图纸,往往需要在日出前赶出来。
而最为震惊的是有一天,当我和项目负责人叶力舟在清晨来到工地时眼前的景象:一夜之间,原方案的木结构体系,在没有经过业主和我们允许的情况下,被私自置换为钢结构。经多方商议后,最终落成的禅修馆,在木构皮肤的背后是钢构的骨骼。
△
原方案 - 木结构轴测图
△
原方案 - 木结构效果图
构造语言的调整必须在工地上完成。我们坚持不可以在构造语言不变的情况下,简单地完成结构体系的置换。原方案的木结构系统,由角钢体系从倾斜的屋顶下挂,在找平后转换为木结构,最后通过柱础钢件落地。课室角部连续的角钢构件,也消除了因出挑而作用于木材截面上过大的弯矩。
通过主课室外墙打开的门扇,整合双层腔体的构造语言得以被视看,变成水院里一道隐喻的“风景”。
在转换为钢结构后,我们试图通过局部饰面语言的控制,让两套体系在建造的自我表达上调和,既不完全抹去钢结构建造的信息,也避免两套体系冷冰冰相撞的对立。
△
水院看向门扇中的双层腔体
暴露出的金属龙骨,经由部分木材覆层的修饰,仅在向光处露出T型金属截面。在暖红色门扇背板的烘托下,T型金属在腔体中的暗部里成为水院均质光线中一抹提亮的高光。略带陌生感的T型轮廓,在门框的裁剪下异化为一种结构的表征。
钢构的骨骼勾勒出空间的基本廓形,包裹身体的覆层由木材完成,通过覆层构造语言的适配,完成不同空间界面的控制和气氛调动。
木材与黄铜
配合弥散分布的体量,房间外墙的界面由统一的木饰面覆盖,定义出交叠连续的空间。在木板分缝处嵌入的黄铜压条,与木饰面色温近似,但通过材料对光线敏感程度的异质,划分出体量均质表面上对比例的阅读。
外墙竖向比例的划分,让界面趋向更“坚硬”“完整”的感知,通过与课室内部横向垂挂的构造带来的“柔软”“亲密”形成反差,提示出空间的“外部性”。
△
主课室原方案立面图
暗空间中铜条表面的高光,在吊顶与墙壁脱开的黑色缝隙里继续延伸上去,配合飘离地面的水平檐口,仿若一座座体量被“吊挂”起来,通过重力感的唤起,强化着对体量漂浮的阅读。
△
木饰面与黄铜分割
檐口
在不同体量围
合出的线性迂回的空间中,水平延展的檐口构件,进一步强化空间的向性,引导流线,
同时在被体量切分出的多个“外部”空间里,提示着连续穿行的地平面。
△
节点 - 檐口
△
檐口提示转向
从主课室推门走出向水院看去,檐口和地面、檐口和檐口、檐口和吊顶以及吊顶和墙面的脱开,在空间的界面上产生了一道道阴影,给静态的空间带来一种结构性的透气感。
△
构件间的阴影
水院里的格栅,通过上下檐口与天花和地面的脱开,从界面中勾勒出可以被视看的独立的立面,弱化了完整界面带来的室内感,让水院的体验更接近一个室外空间。利用上部檐口与吊顶脱开的距离,安置十六个连续的圆形风口,分别对应维系水院气候所需的4部空调室外机。在刷黑的缝隙里,金属微弱的高光反射形成的微表情,在阴翳中提示着空间的深度。
△
立面图 - 水院格栅及风口
△
原方案节点 - 水院檐口及风口
△
阴翳中的圆形风口
百叶
课室内部层层挂下的水平向木百叶,通过“非结构”的表达,调动着柱梁语言“支撑”的姿态。百叶尺度的收分,由截面高度200—425毫米的四个梯度完成,上疏下密的分布,在视觉上唤起下挂的重力感,微妙地刻画着一座被柱梁撑起的漂浮着的容器。
△
节点 - 主课室木百叶
在主课室里,百叶间的缝隙成为了空间中的自然光源,而百叶本身也是渲染人工光源的物质媒介。同一层界面上,人工光的暖光源在木材温暖的色温上叠加,与缝隙中间隔透入的自然光冷光源相互反衬,使得内向的空间拥有了呼吸感。
△
百叶作为光的媒介
在刻画光线性格的同时,百叶的界面也整合了设备。在吊顶上盘旋而下的空调和新风设备的管道,经过双层腔体后,最终由风口将空气通过百叶的缝隙送至课室里。
窗套
禅修馆形象在商业街上的呈现,是一个内化世界与外部世界的交界面,如何处理内外两个世界的关联,是立面改造设计的切入点。
信息需要选择性地提炼才有机会整合,腔体的过滤策略在立面改造上被再次使用。我们拿掉老的门窗,在原结构的柱跨间,置入一套用不锈钢建造的金属窗套。窗套整合了容纳空调室外机的凹槽,以及面向商业街的种植池。
△
外景 - 窗套
黑色带来的消隐和界面景观化的处理,让建筑人工的一面退后,提示行人在对面的邻水平台上做片刻停留。而背景处的禅修馆,与原有建筑主体的框架脱离开来,在一片舒朗的竹影里若隐若现。
禅修,即内观。观想中的身体,需要借助空间的沉浸,让精神趋向静谧。
在从外部商业街到内部观想空间的连续剖面上,由外至内的空间层级经过多个梯度的递进,借助界面语言的控制,产生了反转“内外”空间经验的水院,在过滤掉外部嘈杂信息的同时,重塑了一个内化世界中的“外部”空间,得以有机会重新组织一个独立成立的内部世界。
在连续剖面上的每一个空间里,其相应的“外部”信息都会被空间界面提炼、转换,以有意义的方式内化进更加趋向内核的世界。从外立面整合景观池的窗套、水院的磨砂玻璃和百叶,到主课室的双层腔体、连续的柱列以及背屏前的吊灯,信息经由这些界面的提炼,一层层被内化进来,最终抵达位于观想者经由层层身体经验带动至精神的冥思里。
△
剖面图
于岛
2019年1月18日于深圳
胶片里的时间 ▿
△
玄关圆窗特写
△
水院前走廊 - 向玄关
△
水院出风口
△
水院 - 向百叶
△
水院 - 向百叶
△
走廊 - 向水院竹影
△
主课室 - 向吊灯
△
主课室门开 - 向走廊
△
小课室西 - 向窗
△
小课室西 - 向通风口
完整项目信息
项目地点:河北省沧州南大港,碧桂园凤凰生态城
业主:碧桂园凤凰生态城
建筑设计:丘建筑设计事务所
主持建筑师:于岛、程博、李博
项目负责人:叶力舟
驻场建筑师:于岛、叶力舟
项目成员:叶力舟、李然、李张君
施工图绘制:叶力舟、于岛
照明顾问:庞磊
服装设计:孙涵
摄影及视频:朱思宇、程博、孙中维、李博、叶力舟、于岛、王丹暘
结构:钢结构
材料:木饰面、黄铜、不锈钢、硅藻泥、砂砾
设计周期:2017年12月—2018年3月
施工周期:2018年4月—2018年6月
视觉
/ 李茜雅
校对
/ 原源
客服
消息
收藏
下载
最近




































































