查看完整案例


收藏

下载
△
建成鸟瞰 摄影:姚力
项目地点
江苏省靖江市
设计单位
江苏中锐华东建筑设计研究院有限公司
总建筑面积
4468平方米
建成时间
2018
项目基地是一块位于江苏省靖江市十圩港边宽80米、长390米的狭长用地。靖江市南临长江,属于典型的长江下游冲积平原。十圩港就是一条连通长江的水系。由于水利部门的蓝线控制要求,场地内实际可建宽度仅为60米。初到基地的感觉就是平坦,甚至感觉十圩港里的水面都是和基地齐平的,有种水往基地里灌的错觉;而场地内大量原生的芦苇,则是另一个让人印象深刻的特征。
△
基地 ©江苏中锐华东建筑设计研究院
项目由三个部分构成:博物馆、展示馆和茶室。政府希望通过这几个项目,为十圩港边的带状公共绿地提供一个有活力的停留点。超低的容积率让建筑与环境之间的主客体关系发生了转变。毫无疑问,建筑要成为环境的一部分,但过于低的密度也使建筑过于松散而失去彼此之间的关系,这与业主的初衷显然是不吻合的。而仅60米的可建宽度也存在着新建筑介入后把基地分割的危险。线性的基地强烈保留下了城市发展的人工痕迹,自然已不存在,完全恢复是不可能也不现实的。设计的意义就是通过建筑重塑一种关系——抽象地重现自然。园林也好,村落也好,最有价值的地方在于最终的状态表达出的,是顺应一个简单原则的松散关系。设计的核心在于如何挖掘出这块基地的原本属性,并赋予它新的意义。
△
原始肌理 ©江苏中锐华东建筑设计研究院
周边的建筑是典型的城市住区,在采光权的支配下形成了城市新的肌理,而原有自然河道和此肌理有一个明显的扭转。在某种意义上,这两者的关系也就是现在和过去、人工和自然的关系。在靖江靠江边的大地肌理上,可以清晰看出长江、灌溉和村庄的关系,这是一个具有极高效率和适用性的传统,而城市的发展显然把这有趣的系统让位给了采光权。城市发展的残留痕迹沉淀在了这块条状基地上,在这种残留面前人体会到的是面对时代变化的无奈。这种扭转被自然地引进了设计中:一方面让建筑和周边城市发生关系,同时也弱化了这种冲突,产生了多灭点的游走方式,让建筑和环境之间有了更有趣的关系。这背后更重要的是建筑连接了城市的过去和现在,尽管这个力量是很微弱的。
扭转让设计的逻辑变得非常清晰。在体统结构层面,整个项目分成了若干个图层,这也让设计变得更加可控。基地南侧和东侧是道路,西侧是河道,从南到北分别是博物馆、展示馆和茶室。
△
博物馆、展示馆、茶座一层平面 ©江苏中锐华东建筑设计研究院
△
设计图层 ©江苏中锐华东建筑设计研究院
△
水池向西看博物馆 摄影:姚力
博物馆是基地内最大的一幢建筑,和道路以正交方式布置。目的是迎着主要人流方向给人一个明确的界定,但并不是一览无余的暴露。设计通过一个L型的混凝土墙将建筑含蓄地包裹在基地内,在外侧只能看到博物馆的二层实体。靠马路一侧斜向的草坡限定了来访者进入基地的方式,也增加了建筑的神秘性和对其的期待感。
△
博物馆东侧日景 摄影:姚力
△
博物馆竹模外墙 摄影:荣朝晖
博物馆建筑由一个L型空间和一个正方大厅构成,两者之间是一个L型的庭院,在L型空间的两翼布置了直上二楼的大楼梯。整个博物馆空间是以45°角对称的方式设计的,给来访者带来了有趣的空间体验。尽管是正交的结构体系,但对角对称让空间产生了游离的状态,来访者体验到了方向的不确定性或者说迷惑性。大楼梯以并置的方式插入到两侧的光庭内,天光被楼梯间自然切分,形成了上下层空间的焦点。
△
博物馆角对称空间 ©江苏中锐华东建筑设计研究院
△
楼梯间对光的切分 摄影:姚力
△
博物馆室内 摄影:姚力
正方大厅外围的公共空间以一层空砌的砖作为表皮,镂空砖让阳光斑驳地洒进室内,创造了一种有趣的意境。
△
博物馆室内 摄影:姚力
L型空间东西两侧面向城市,建筑以一个二层高的实体竹膜混凝土墙为界面。大实面只在入口处留出门洞,给建筑带来了宁静、简洁、有力的表情。竹膜混凝土墙面刻意在建筑的底部和顶部使用了500毫米高的光模板作收头处理。从而让建筑显得典雅稳定。定制透空砖延用了我们上一个项目的做法,用穿筋的方式编织了一层半透的薄纱砖皮,轻轻的透明感和砖自身的厚重产生了有趣对比。
△
博物馆看水池 摄影:姚力
△
博物馆外墙细节 摄影:姚力
水池把博物馆和外部的河道联系在了一起,无边界的处理让人产生了与外部水面连成整体的错觉。水池中种植了基地内原本就有的芦苇,希望还原出场地原有的特征。入秋,莺飞草长,芦苇随风而动;入夜,建筑倒映水中,犹如一个发光的灯笼。砖的编织肌理也暗示着靖江传统的编篾工艺,其和竹木混凝土的搭配让建筑体现出了时间的永恒,一种抵抗变化的力量。
△
从北侧看博物馆 摄影:姚力
△
从西北向看博物馆 摄影:姚力
△
北侧绿地看展示馆 摄影:姚力
展示馆隔水池和博物馆对望,外墙由竹模混凝土的底层和碳化竹幕墙的二层构成。两个体块相互扭转,使得场地的空间在此转折。这让线性的室外空间表现出了多维的灭点,从而打破了来访者心中内在的网格系统,形成游走关系,让室外空间和建筑之间的关系呈现出了园林般的趣味。
△
从展示馆看博物馆 摄影:姚力
△
南侧看展示馆 摄影:姚力
△
北侧绿地看展示馆 摄影:姚力
上下两层的体块并不是直接相连的,而是通过空间的高差处理,在两层之间的立面上形成了一条脱开的缝隙,从而产生了二层悬浮的错觉。竹模和真竹形成了阴阳、真假、凸凹的对比,让竹子的质感呈现出了丰富的表情。上部体块的扭转使展示馆立面以一个更加积极的姿态面向城市和场地内的坡地广场。一个玻璃盒子冲破碳化竹幕墙挑出二层,凌空在水池上;而水池边一棵树努力把枝伸向水面,似乎要和玻璃盒子对话一般。
△
从博物馆看展示馆 摄影:姚力
△
树和建筑关系 摄影:荣朝晖
△
茶室南侧 摄影:姚力
展示馆北侧是一个公共的开放绿地,茶室就掩映其中。
茶室是三个建筑中结构最线性但空间却最松散的一个,这是由它的功能决定的。在若干休息品茶处外,茶室包含还有一个公共厕所。沿河线性设计是为了景观的最大化利用,而一条穿越绕行建筑到屋顶的线路则让建筑体现出了山林般的攀爬乐趣。两棵树冲破屋顶指向天空,模糊了建筑地面层的存在。
△
茶室的游走关系 ©江苏中锐华东建筑设计研究院
△
茶室东侧 摄影:姚力
△
茶室看展示馆 摄影:姚力
设计图纸 ▿
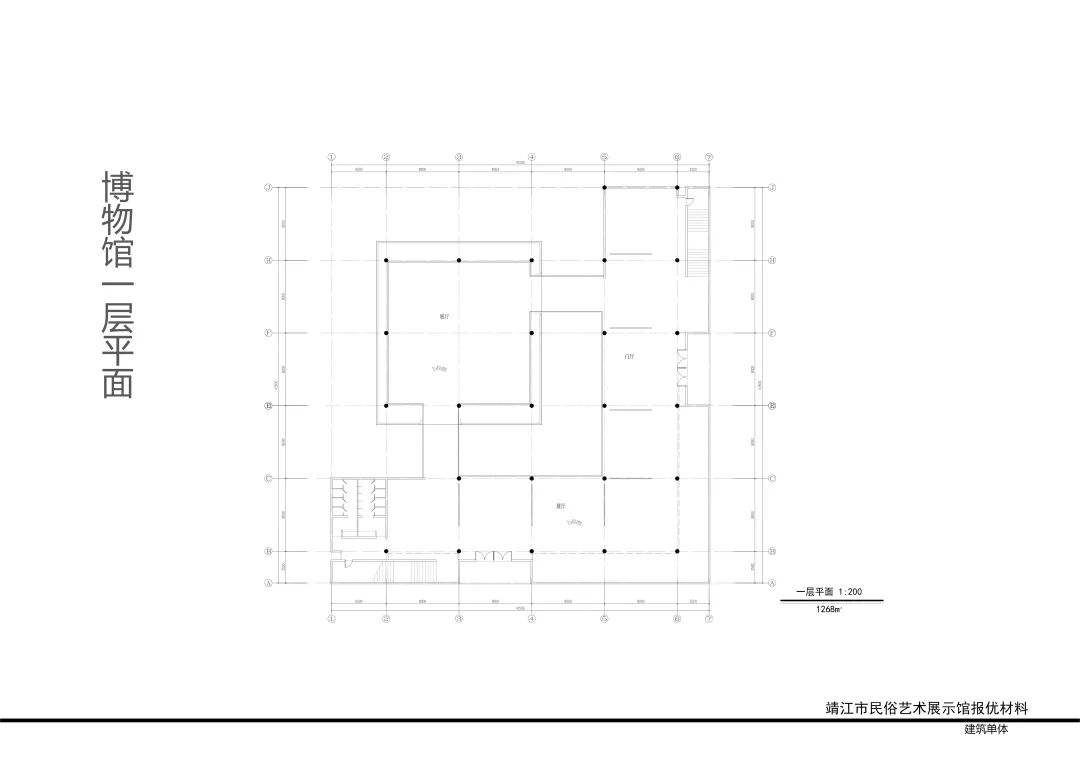
△
博物馆一层平面 ©江苏中锐华东建筑设计研究院
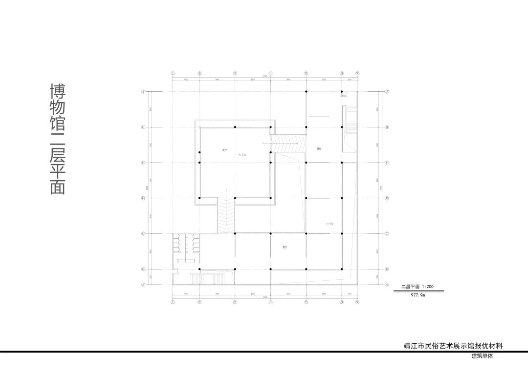
△
博物馆二层平面 ©江苏中锐华东建筑设计研究院
△
博物馆东、南立面 ©江苏中锐华东建筑设计研究院
△
博物馆西、北立面 ©江苏中锐华东建筑设计研究院
△
博物馆剖面 ©江苏中锐华东建筑设计研究院
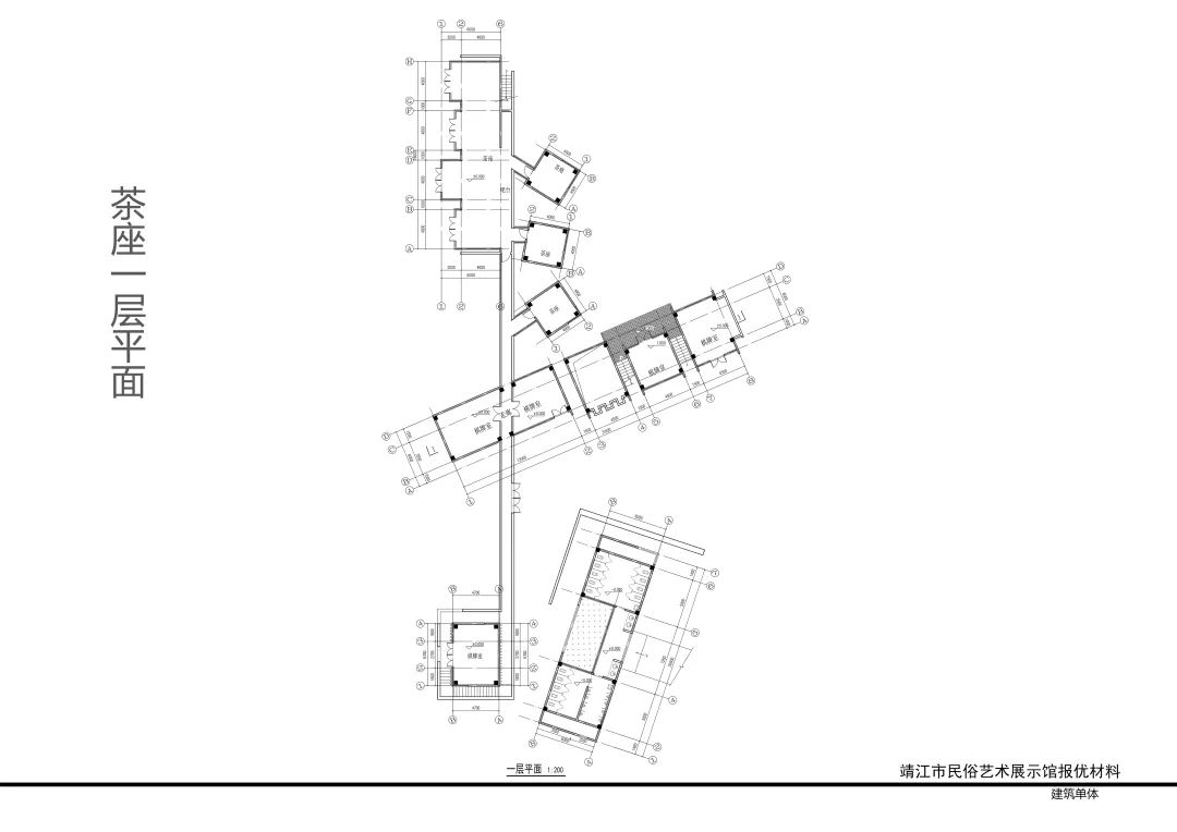
△
茶座一层平面 ©江苏中锐华东建筑设计研究院
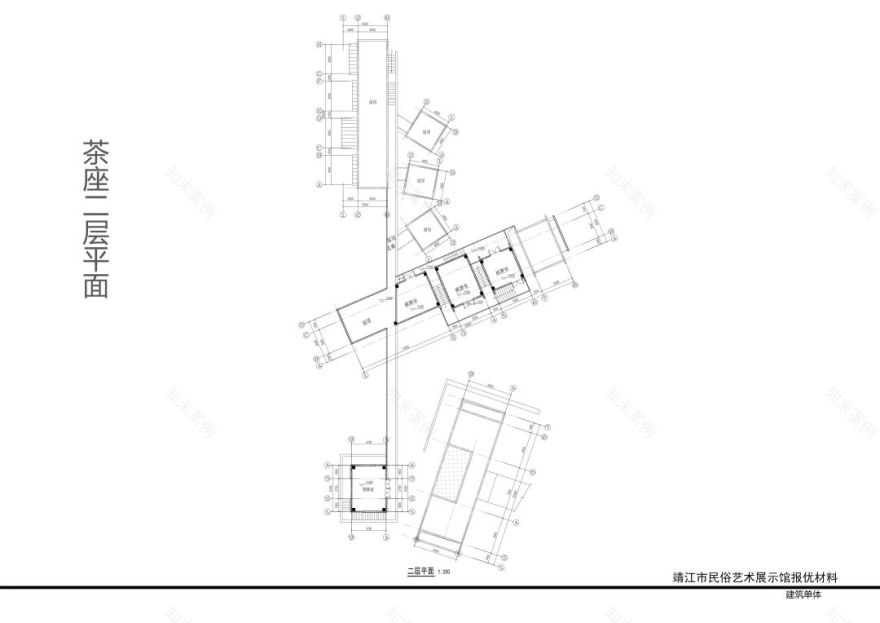
△
茶座二层平面 ©江苏中锐华东建筑设计研究院
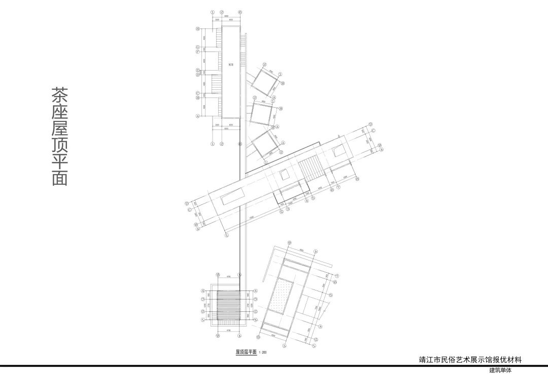
△
茶座顶层平面 ©江苏中锐华东建筑设计研究院
△
茶座东、北立面 ©江苏中锐华东建筑设计研究院
△
茶座南、西立面剖面 ©江苏中锐华东建筑设计研究院
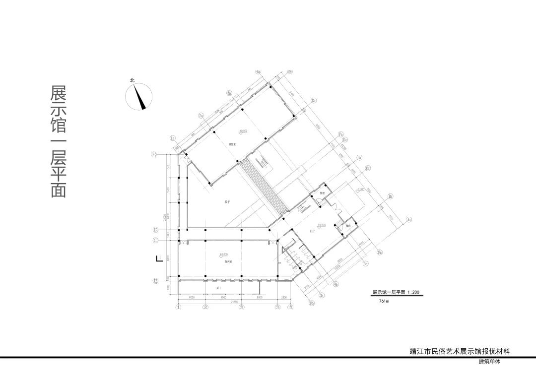
△
展示馆一层平面 ©江苏中锐华东建筑设计研究院
△
展示馆二层平面 ©江苏中锐华东建筑设计研究院
△
展示馆东、北立面 ©江苏中锐华东建筑设计研究院
△
展示馆西立面 ©江苏中锐华东建筑设计研究院
△
展示馆正南立面、剖面 ©江苏中锐华东建筑设计研究院
完整项目信息
项目地点:江苏省靖江市
项目业主:靖江市滨江新城投资公司
设计单位:江苏中锐华东建筑设计研究院有限公司
总建筑面积:4468平方米
用地面积:313150平方米
建筑高度:10.5米
容积率:0.14
设计时间:2015
建成时间:2018
设计团队:荣朝晖 顾爱天 刘虎 杨来光 聂礼鹏 王宗强 林晨 任燕军 刘江军 钱威
摄影:姚力、荣朝晖
获奖:2017-2018中国建筑设计创作奖银奖
视觉
/ 李茜雅
校对
/ 原源
本文由
江苏中锐华东建筑设计研究院有限公司
授权发布。
客服
消息
收藏
下载
最近



























































