查看完整案例


收藏

下载
洛阳罗曼罗兰文化传播旗下媒体:洛阳《建筑装饰》杂志、AD 建筑装饰微平台
关于房子
这是一套 280 平的顶楼复式洋房,整体户型方正,四室两厅三卫的布局,楼顶送有露台。承接室内外相连的空间,不仅可以打造成一个独立的天然氧吧,还可以装修成一个舒适的私人空间,这包含了休闲、娱乐为一体的场所,使生活变得更加多彩。
关于业主,业主是一位在自媒体拥有百万粉丝网红女主播,长期在美国定居,性格开朗可爱,有一个 14 岁身高 1.8 米帅气阳光男孩。
客厅
客厅设计为简约格调,干净利落线条、错落有致的结构凸显出客厅大空间的层次感。入户拆掉一个卧室变成工作区,以圆润的弧角处理入户玄关,当业主回到家里可以方便把行李等放入储藏间。
走廊切入圆形玄关,在工学尺寸的控制下,从房中入屋,顺势切出三大板块:客厅、长桌区、正餐区、开放书房为直播工作区,圆润的旋转楼梯如美女一样婀娜,从上至下,空间交互自然成型,空间秩序与场景交融并生。户型布局做了圆切,空间立马改头换面。
卧室
卧室没有过多装饰品,清爽布局让空间显得干净利落。低饱和度的色彩构建空间温柔细腻的主色调,于静谧中晕染出了极具现代感的生活美学。
私人会客厅
二楼利用原有建筑结构顶面部分,成一个舒适的私人会客空间,这一包含休闲、娱乐、休息为一体的场所。露台承接了室内外相连的空间,大尺度窗户放入明亮丰沛的光线,开阔明朗,使生活变得更加多彩。
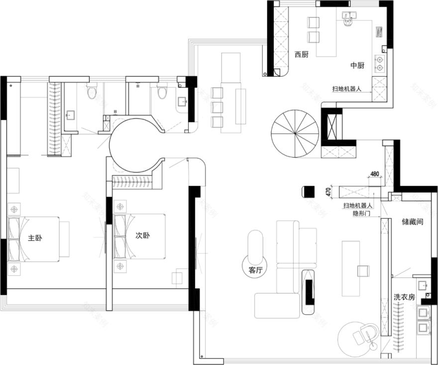
- 平面布局 -
∆原始平面
∆ 改造后
设计单位︳晟宁装饰工程有限公司
项目地址︳洛阳 国宝红瞰
项目面积︳280㎡
设计时间︳2023-3
项目呈现︳3DMAX
-THE END-
SUNNY DECORATION/晟宁装饰
何雪茹、谢宠举/创始人、主理人
洛阳市晟宁装饰工程有限公司是一家以集室内设计、软装设计、工程施工等一体化综合性专业装饰公司,团队组建于 2009 年,主要从事商业空间、高端楼盘样板间、售楼部、高档别墅、医疗保健等项目装饰设计工程。
公司拥有资深专业的设计和施工服务团队,团队协作能力强,能为客户提供细致入微的服务。几年来服务了泉舜、寰晟、银隆、天基、仁爱医院、贝瑞佳、普惠体检、欢乐教育等项目,并打造出了系列精品工程项目,获得了多个国内外奖项和合作企业的一致好评。
公司荣誉:
- 中国家装设计百强品牌
- 可持续发展设计优胜奖
- 金堂奖 2022 年度城市十佳
- SDA 石尚设计大奖明星设计师
- CBDA 金铅笔人居空间大赛三等奖
- 洛阳市室内设计大赛铜奖
- WYDF 大中华区 100 大杰出设计青年
- 德国高仪中国住宅设计精英榜优秀奖
- WYDF 青年设计师论坛大中华区四十二青年设计名士
- 日本东京 IDPA 国际先锋设计--top100 国际影响力创新设计师
- 年青岛国际设计周“宏图奖”
- 中国住宅设计效果图大赛优秀奖
< 向下滑动查看更多 >
公司地址:洛阳市洛龙区金城寨街与关林路交叉口向北 100 米路东(走慢车道)
往期作品回顾
▽碧桂园·玖玺台
▽钰泷府
▽青山结庐
▽佰丽医美
往期回顾
回顾 | 京东设计家设计私享会洛阳站
作品 | 鼎合设计新作:南泥湾
奖讯 | 京东设计家住宅大奖赛开启网投
客服
消息
收藏
下载
最近

























