查看完整案例


收藏

下载
洛阳罗曼罗兰文化传播旗下媒体:
《建筑装饰》杂志、AD 建筑装饰微平台
关键词:功能 精致 艺术 摩登 情调 知性女人
每个女孩心中都曾有一个公主梦,梦中有王子、有城堡、有鲜花,随着时光的推移,心智的成熟、阅历的增加,很多人都把心中这个公主梦藏起,让它沉睡在心灵的深处。
然而总有这样一群纯真、执着的女孩,她们始终心怀公主梦:就算外面的世界再纷乱复杂,家永远是我的公主城堡。
项目信息
设计单位:里舍 · 全案空间设计事务所
项目地址:孟津 · 亚威金尊
项目面积:120㎡
竣工时间:2021.1
主案设计:刘孟、贾晨
执行设计:裴玉歌、刘欢
软装设计:冯尚
项目摄影:邵格摄影
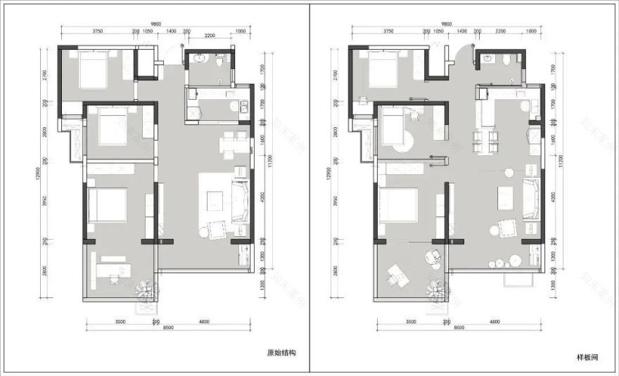
原来格局公共区域采光较差,我们把厨房的实体墙打掉,变成透明玻璃,厨房便有了很好的采光。充分利用原结构的优点,改掉缺点。
完成功能的同时,想要让这个家有足够的精致感,充满艺术的氛围,还要有情调,暧昧的女人气息。远远的看过去,就像是一个优雅知性的女人,端庄且有趣。
实景照片
客厅 |Living Room
用一抹红色,如女人精致的红唇,美而不妖。
餐厅 | Dining Room
卧室 |Bed Room
柔软精致的色调,让我们卸下一天的疲惫,安心入梦
阳台 |balcony
超大的落地窗采光极佳
捧一本书,品一口茶,任时光流逝,静静的,感受生活的美好
客卧 | Guest Room
色彩感强烈的软装给卧室增加了艺术的氛围
女孩房 | Children Room
给自己的宝贝打造一个专属公主城堡,让她延续着我们儿时的公主梦。
效果方案:
客厅 |Living Room
卧室 | Bedroom
客房 | guestroom
女孩房 | Children Room
卫生间 | toilet
施工照片
初测
初次勘测,现场主体还未完工,像钢筋森林一样的现场
量尺寸要随时注意安全,和随时弯腰。
施工中
工期时间比较赶,工人安排十分充足
随拍
装软摆场日
软装摆场时,主体还未完工,可以看到封窗户的两套就是样板房
一车的软装等待进场,大件家具已经提前进场
就是这个黄色的塔吊把软装和材料吊上去的。
手机随拍
结语
设计的结果有多性感,那么设计实现的过程就多不性感。我们以实景的展现来体现设计的价值,那就要求前后所有的过程都是需要设计师严格的把控,每一个单品的选择都是需要设计师在考虑整体的氛围中精挑细选的。正是这些对细节的严格要求才能达到超出客户期待的作品。
最终特别感谢甲方的信任,这是保证我们方案落地的根本,正是因为这种信任,我们也将以百分百的专业和耐心给予回报。
里舍丨全案空间设计
是一个专注于设计的设计师品牌
不做同质化的设计
追求设计的创新与艺术性
主案:刘孟 / 贾晨
获奖情况
2019 中国住宅设计精英榜河南榜优秀奖
2019 40UNDER40-中国(河南)设计杰出青年
2019 金住奖-中国(洛阳)十大空间居住设计师
2019 金堂奖-中国室内设计年度杰出作品
2020 洛阳室内设计七悦府杯大奖赛 金奖
2020 40UNDER40-中国(河南)设计杰出青年
2020 CIID 中国室内设计大奖赛工程类 优秀奖
2020 红棉中国室内设计奖
2020 金堂奖-中国室内设计年度入围作品
2021 40 UNDER 40 中国·洛阳设计杰出青年
2021 金住奖-中国(洛阳)十大空间居住设计师
2021 亚洲软装风尚大奖优胜奖·住宅空间
2021G+AWARDS 全国设计精英大赛中国·洛阳 TOP10
2021 芒果奖 TOP100 住宅/公寓空间类
公司详情
设计收费:工装 150/㎡ 家装 200 元/㎡
工作时间:周一至周六 9:00-18:00
公司新址:洛阳市正大国际 CPL 中心西区 1008 室
往期回顾
请点击(图片)
里舍设计 | 样板间山水之间
里舍设计丨私宅
我生本无乡 心安是归处
里舍设计丨样板间 闲庭·月下
里舍设计丨样板间桃夭
里舍设计作品丨送给现代主义的诗
里舍设计作品丨coco 小姐的家
里舍设计作品丨蒹葭
里舍设计作品丨口腔诊所·折面
里舍设计丨 银龙科技办公
往期推荐
首发 | 大象空间设计新作:鮨·盐燒日料餐厅
选材研究所|以一扇窗,开启舒适低碳生活
金堂奖 2021 年度(洛阳)城市十佳荣耀发布
报奖|
40 设计杰出青年
金住奖
锋建筑节
中国设计星
中意设计奖
设计中国
视频号:@建筑装饰杂志
AD 建筑装饰
客服
消息
收藏
下载
最近






























































