查看完整案例


收藏

下载
本案设计师与业主合影▲
- 阳光城市花园 · 老房改造 -
项目地址/阳光城市花园
面积风格/130m² 现代简约
设计主创/锦华改造家 彭芃
本案是一套城中老房,业主考虑儿子定居北京平常回来的时间不多的因素,决定通过改动将现有的格局达到最美观实用的效果。原户型的房屋构造存在许多空间上的浪费,客厅是朝东面,两个卧室朝南,设计师遵照业主的简洁大气,在房子的结构上进行了改动,而改造的意义就是让这个未来的家以全新的面貌贴合业主的生活,让阳光洗礼家的每个角落。
Video1
本案例直播讲解视频▲
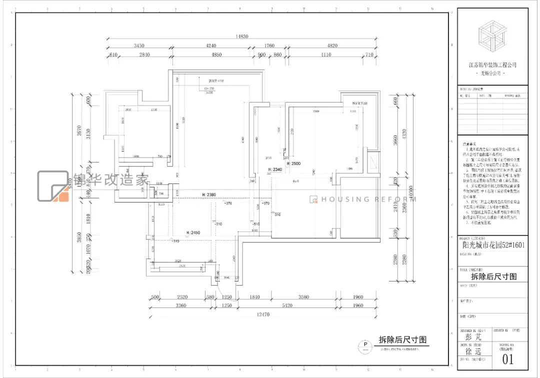
原始结构图
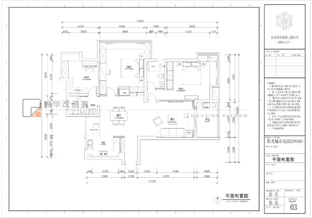
平面户型图
效果图
Video2
本案例实景视频▲
关于改造
1、原先朝南的一个次卧室改成了客厅,使客厅连贯阳台增加了自然光的摄入。
2、将厨房的部分储藏室敲通,使原本拥挤的厨房视觉效果立显开阔,同时增强餐厨区域的整体性与紧密性。
3、餐厅顶上原先有一个很突出笨重的承重大梁,后期通过木饰面和客厅顶上的大梁与墙面做了木饰面的装饰,让顶和墙面有了呼应的装饰视觉效果。
4、原户型储物收纳空间较少,后期进行全屋定制柜,将空间利用达到最大化,增加更多实用性。
▽ Lobby
▽ Living Room
改造后的客厅敞亮通透,雀跃的心情随阳光一并照射进心底。沙发背景以灰色的硅藻泥装饰,结合浅灰色的橡木三层地板共同展现,深邃而不显压抑。造型简约的电视背景墙则是以浅色渲染,与沙发背景形成明暗关系呼应,是设计上的巧思。
深色皮质的沙发组合,墨绿与深棕的碰撞,是空间高品质格调的彰显。沉稳的气质里,自然地流露出只属于家的安全感。
宁静的高级灰空间,局部的器皿、花艺,沙发上个性的靠垫、橙色的沙发毯,高饱和色的亮色最为点缀,似是画龙点睛,为整个空间注入灵魂的艺术感。
从不同角度看,生活化且艺术感。
▽ Dining Room & Kitchen
将原先进深 1 米的储藏间敲通扩给厨房,鉴于业主的需求,设计开放式的大厨房,内含蒸烤箱、洗碗机,休闲的小吧台让男业主坐在窗边纵享诗意人生。
餐厅顶上和客厅过道顶上用胡桃木饰面对原先突出笨重的承重大梁进行处理,利用视觉的误差,使房间变高。木饰面吊顶的修饰掩盖了大梁的突兀,丰富顶面的造型。
采用爵士白的墙地砖搭配深灰色的橱柜,色彩分明确又相互融合,整个空间非常的敞亮又实用。
▽ Bedroom1
设计师利用墙体的拆改,增加主卧的储物区域,还原卧室整洁有序的空间画面。床头背景以灯带的柔光点缀,层次感的造型将生活的情调自然描绘。
▽ Bedroom2
▽ Bakcony
▽ Toilet
▽ 开工仪式
▽施工过程
写在最后
一个项目的完成,是设计师与居住者共情的结果。
设计不仅是房屋的结构重组,更是对未来生活场景的描绘,用材质表达质感,用情感赋予物品意义,当功能与颜值都达到和谐状态时,家才能舒适自在。
你喜欢本套实景案例吗?针对未来家的设想,你有哪些具体的规划?欢迎咨询本案设计师为您解答~
最后,愿大家都能在忙碌的城市里,找到悠然舒适的生活。
本案设计师 彭芃
查看更多老房翻新案例&预约设计师
▼15557020656
↓
点击图文,阅读彭芃更多实景案例
↓
记得转发一下哦!
客服
消息
收藏
下载
最近












































