查看完整案例


收藏

下载
晚年唯好静,万事不关心
自顾无长策,空知返旧林
王维40岁那年写下这首诗,道尽了归隐山林之意。父母的养老房,不外乎如此,闲时观山饮茶,这种恬静诗意的生活,才是属于父母的晚年之好。
而本案就是一对夫妇的养老房,男业主是国企单位的干部,女业主是一位退休教师。两个人对生活都有着高品质的追求。且两人因为工作的原因,都对新中式情有独钟,在找装修公司之前,就早早买好了红木家具,让设计师根据家具来进行整体空间设计。
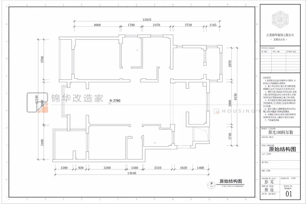
项目面积 | 160㎡四室两厅
项目风格 | 现代简约
项目地址 | 阳光100阿尔勒
设计主创 | 彭芃
业主说
常住两人
整体风格为新中式
女业主想要书房和衣帽间
空间整体需要强大的收纳功能
设计师说
1.户型开间尺度宽敞南北通风,采光明亮
2.入户门厅太小,
缺少
收纳鞋柜
3.主卧室的和书房品茶区动线不合理
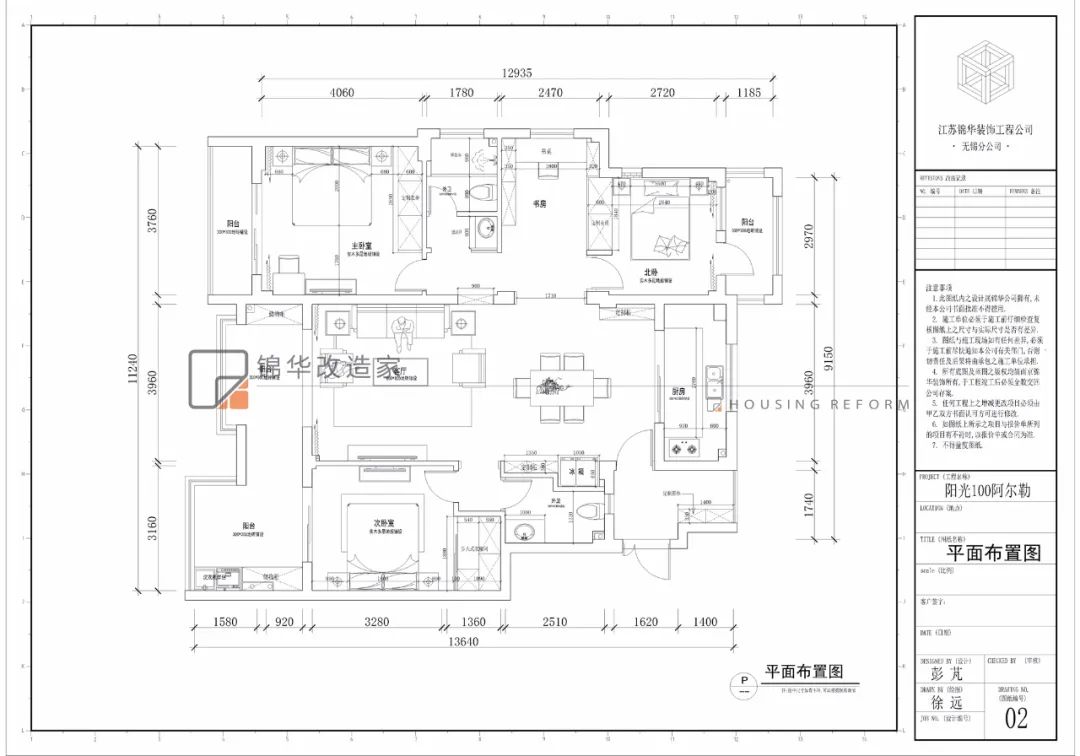
解决方案:
1.将原先的外卫一部分改造成步入式衣帽间,增加收纳空间。
2.
把原入户后面镂空的部分现浇起来拓大了门厅解决鞋柜的收纳空间
3.把房子里可利用的空间都合理的设计做了很多柜子解决了客户的收纳问题
4.改动了主卧和书房的墙体结构,把品茶区做了纯开放式与客餐厅有互动感让空间看上去更宽敞舒适
01 客厅
往后余生,从心而行。设计的本意便在于此,从心而行,这恰恰契合了中老年人养老的初衷。在客厅设计上,设计师不再以堆砌为烘托,反而反其道而行,在适当的地方,加入适当的中式元素,一壶茶,一青瓷,都是绝美。
客厅的吊顶特地采用回纹设计,和阳台推拉门相呼应,从细节上展现生活气息和传统审美。
从红木沙发、红木茶几,再到水墨背景墙,以色彩的深浅对比带来层次变化。一物一隅,都有着时间沉淀后的独特气质。
设计师与业主合影
02 餐厨区
用美食交流情感,用圆桌呼应团圆。大面积沉稳内敛的木色调中暗藏着细密精致的纹理,随生活动线,传递着惬意与舒爽。
餐桌两侧定制酒柜,除了展示和储物功能外,还带着传统中式的韵味,并且在造型上结合嵌入式冰箱,更加实用美观。
在新中式素雅的外表下,厨房外观变得如此洁净。但加入纵向柜体能使空间得到合理的运用,再把微波炉、烤箱都归拢到旁边,就可以尽情施展厨艺啦。
03 茶室
一室淡淡茶香,一脉东方底蕴
伴着袅袅茶香,对生活的憧憬在心底暖暖漾开,现代中式的雅宅带你遇见诗中的遐想。现代的形制中糅杂绵绵古韵,清风入室,辉光漫洒,宁静的不止是空间,更是心境。
04 卧室
窗外喧嚣繁华,窗内自成一境
简单是一种微妙的艺术,灰白棕的简约空间里,外在轮廓的雅致线条,软装床品的柔软质感,共同打造起一场被阳光叫醒的酣睡。
细节之处,最能彰显品味。古典精致的花纹,颇具阳春白雪之雅士易趣,与简洁的花艺摆件相得益彰,更显高雅品质。
05 卫生间
卫生间采用干湿分离,把使用频率最高的洗脸盆设计在外面,确保家庭使用率的最大化。同时隔绝水渍,更加注重安全性。
—
设计师/彭芃
More+
查看更多案例&预约设计师
▼
18751580003
客服
消息
收藏
下载
最近






























