查看完整案例


收藏

下载
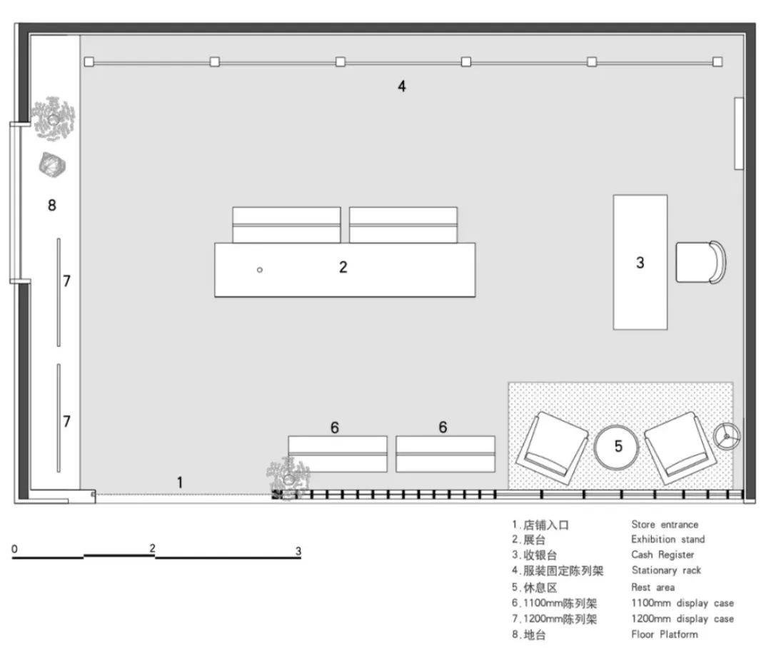
空间中心采用不锈钢和天然石材制作的矩形展示台,两种不同材质从碰撞到融合,自然艺术得以充分体现。
石头的天然肌理,粗犷斑驳,朴质原始的自然元素增加了空间的叙事性,为过去与现在建立联系,为消费者与空间之间搭建无界的对话。
项目信息
━
项目名称:
项目地址:
中国·广东·深圳
项目类型:
商业空间
项目面积:
70㎡
完工时间:
2021.7
设计公司:
LubanEra·Design鲁班时代建筑装饰设计
创意总监:
陈洪波
主创设计:
邱文娣
设计团队:
麦勤彩,杨明月
空间摄影:
聂晓聪
客服
消息
收藏
下载
最近























