知末
知末
创作上传
VIP
收藏下载
登录 | 注册有礼

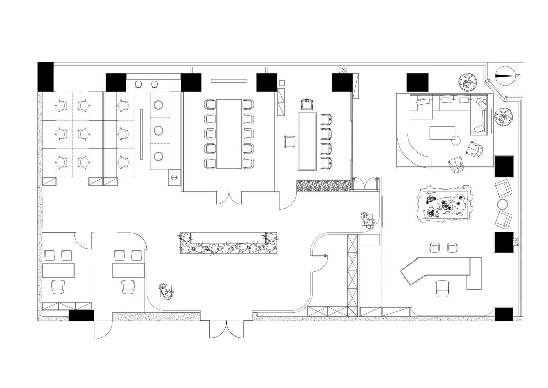
北京 CBD 办公空间丨中国北京丨AYZ STUDI O

2021/06/12 16:16:58
查看完整案例
微信扫一扫
收藏
下载
位于北京国贸CBD的高层写字楼中,AYZ STUDI O为一家年轻的咨询公司完成了新办公室的建造。与传统办公项目不同,材料的创造力与愉悦睿智的当代文人生活被整合进空间,使其拥有了强烈的表达力与感染力。在视野绝佳的落地窗前,CBD棱角分明的城市轮廓线与办公空间形成了张弛有度的拼贴连接。
北京 CBD 办公空间丨中国北京丨AYZ STUDI O-1
北京 CBD 办公空间丨中国北京丨AYZ STUDI O-2
北京 CBD 办公空间丨中国北京丨AYZ STUDI O-3
北京 CBD 办公空间丨中国北京丨AYZ STUDI O-4
北京 CBD 办公空间丨中国北京丨AYZ STUDI O-5
北京 CBD 办公空间丨中国北京丨AYZ STUDI O-6
北京 CBD 办公空间丨中国北京丨AYZ STUDI O-7
北京 CBD 办公空间丨中国北京丨AYZ STUDI O-8
北京 CBD 办公空间丨中国北京丨AYZ STUDI O-9
北京 CBD 办公空间丨中国北京丨AYZ STUDI O-10
北京 CBD 办公空间丨中国北京丨AYZ STUDI O-11
北京 CBD 办公空间丨中国北京丨AYZ STUDI O-12
北京 CBD 办公空间丨中国北京丨AYZ STUDI O-13
北京 CBD 办公空间丨中国北京丨AYZ STUDI O-14
北京 CBD 办公空间丨中国北京丨AYZ STUDI O-15
北京 CBD 办公空间丨中国北京丨AYZ STUDI O-16
北京 CBD 办公空间丨中国北京丨AYZ STUDI O-17
北京 CBD 办公空间丨中国北京丨AYZ STUDI O-18
北京 CBD 办公空间丨中国北京丨AYZ STUDI O-19
北京 CBD 办公空间丨中国北京丨AYZ STUDI O-20
北京 CBD 办公空间丨中国北京丨AYZ STUDI O-21
北京 CBD 办公空间丨中国北京丨AYZ STUDI O-22
·END·
亚太公装
优秀案例、行业知识分享
南京喵熊网络科技有限公司 苏ICP备18050492号-4知末 © 2018—2020 . All photos and trademark graphics are copyrighted by their owners.增值电信业务经营许可证(ICP)苏B2-20201444苏公网安备 32011302321234号
客服
消息
收藏
下载
最近