查看完整案例


收藏

下载
▲入口大门
竹斋眠听雨,
梦里长青苔。
门寂山相对,
身闲鸟不猜。
——方岳《听雨》
中文之美,寥寥数言便将夜半听雨的闲适遐思娓娓道来。
枕雨而眠,梦中仿佛看到青苔在生长,远山寂寂,绿影绰约。
南安东南濒海,春夏多雨。
深圳简爱空间设计团队以“天青色等烟雨”为主题,融古贯今,于南安美的智慧城打造了一方雅致、古典的东方净土。
▲入户大门
本案立足于传统,又施之以创新,经过不断的提炼和丰富后自成一派,呈现出极为浓郁的东方情调。
古典风格与现代元素的柔情交错,衍生了无数格调高雅、简约大气的新中式空间。
/素胚/
▲客厅
客厅用色整体素雅和谐。
横平竖直的空间线条里,写意纹理如水墨般晕染开来,麻布、不锈钢、玻璃、实木等材质亦悄然置入,东方情韵与现代骨骼大胆融合,相得益彰。
仿佛窥见雨过天青后,这一座深宅殷切却澄澈的期盼,盼君归来。
▲餐厅
餐厨区域以现代工艺巧设古典场景,无处不显露国风雅致,又无处不蕴藏现代踪影。
简约空间辅以精心筹措的细节,以繁制简;沉静素雅的松石绿点缀其间,丝丝入扣。
/釉色/
▲主卧
主卧室以白、灰、亚麻、自然绿等淡色为主,较之公共区域更添几分清新自然。
主灯造型呈山峦起伏之态,首尾相接,连绵不绝;日光透过层层窗帷,自在穿梭间,照见一室典雅,写意风流。
▲儿童房
儿童房以蓝灰和纯净白打造,洁净明亮,令人联想起雨过天晴后的喜悦心情;木质地铺辅以藤编陈设,淳朴自然,凸显人性化的设计细节;不失童真的玩具、摆件,为空间注入欢快因子,趣味盎然。
▲长辈房
长辈房沿袭现代东方典雅特质,用色略有加深,沉稳大气。
▲茶室
茶室,素、雅、宁静致远。
木料随时间渐生光泽,厚重纯粹,以此为茶室主材,国风雅韵油然而生;几处盆景摆件自在生长的姿态,更显随性悠然。
选一个碧空如洗的日子,铜壶煮水慢烹茶,静候一场未知的朦胧烟雨......
▲书房
书房采用开放式布局,经典现代的金属、大理石材质和写意古典的陈设造型,于书香中巧妙糅合,如同一个无声邀请,引人入胜。
/帘外/
▲庭院
露天的庭院花园,绿墙依偎,宁静素雅,如置身现代都市的一处世外桃源。
若恰逢春夏,“帘外芭蕉惹骤雨”,更显几分悠闲诗意,回味绵长。
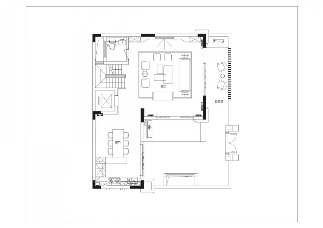
▲1F平面图
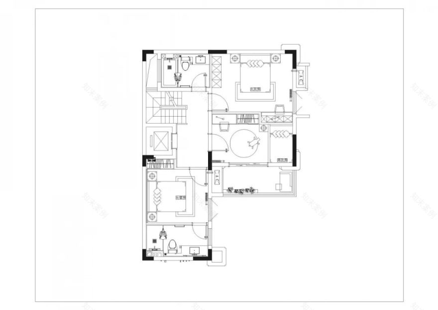
▲2F平面图
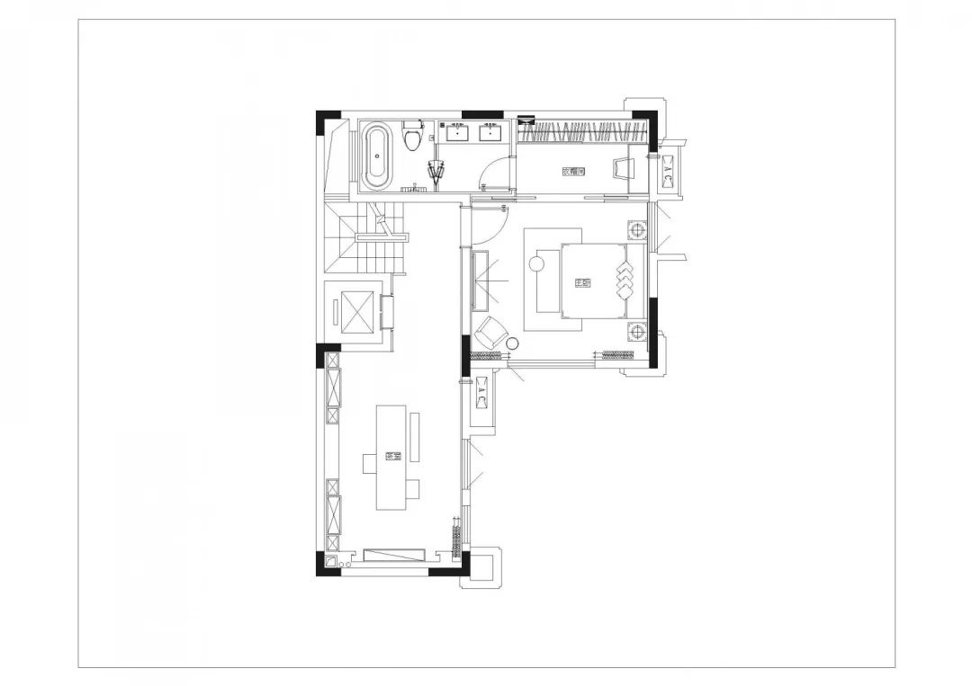
▲3F平面图
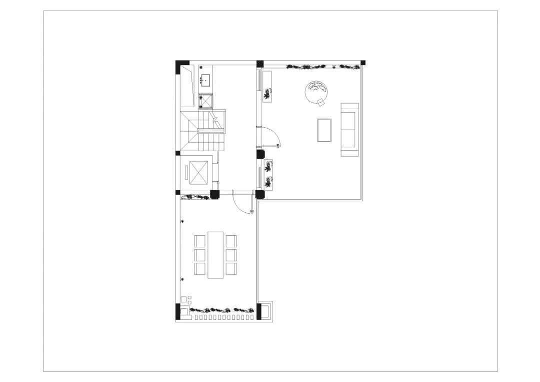
▲4F平面图
▲-1F平面图
项目信息
项目名称:
南安.美的智慧城别墅样板间
项目地点:
福建 南安
室内面积:
410㎡
室内设计:
黄锋森/黄廉才
软装设计:
深圳简爱空间软装设计有限公司
软装陈设:
深圳简爱空间软装设计有限公司
甲方设计管理团队:
王霄 邓鹏 任婷 黎达栋
摄影:
麒文摄影
·END·
亚太公装
优秀案例、行业知识分享
客服
消息
收藏
下载
最近































