查看完整案例


收藏

下载
世间色彩绚丽繁多,但仍不及黑白灰至雅、至静、至深、至远。
INFORMATION
项目信息
—
项目名称:俊峰香格里拉
Project Name:Junfeng Xianggelila
户型/面积:跃层/120㎡
Unit Type / Covered Area:Dual Level / 120㎡
设计风格:现代极简
Design Style:Modern minimalist
设计师:张娜
Designer:Zhang Na
施工单位:美的家装饰工程中心
Construction Unit: Midea Home Decoration Engineering Center
—
项目背景
—
单身男性,对生活品质有一定要求,喜欢简约的设计风格。
因此,在设计时以简洁明快的黑白灰为主调,原木系为辅穿插整个空间,体现出了业主对生活品质的追求,既满足业主生活的需求,想要的现代简约之感,又创造一个温馨舒适的家庭环境。
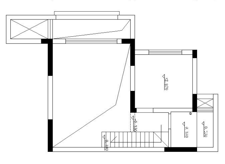
DESCRIPTION OF HOUSE TYPE DESIGN——户型改造设计说明
滑动查看一层/二层 平面/原始图
优劣势分析:
优点:户型方正,客厅卧室采光通透,可变空间比较大。
缺点:原始结构厨房采光不太理想,自然光基本无,入户对厨房门,厨房操作台面不够。
户型结构改造说明:
将阳台纳入客厅,增加客厅的利用率,使客餐厅空间更通透开阔;设计开放式厨房,既满足烹饪乐趣,又能与客餐厅互动,让家人安全感满满。
PORCH RESTAURANT
—
玄关 / 餐厅
—
鞋柜充当入户玄关设计,化解入户就能看到厨房的尴尬。
入户之后,便是餐厅区域,白色的台面与玄关柜互为呼应;爱马仕橙作为空间唯一的亮色,为黑白灰的空间注入了些许活泼明快的气息,原木地板与餐桌餐椅,以及原木楼梯,为高冷的室内增添了温馨。
KITCHEN—厨房—
开放式厨房,让厨房采光通透;结合台阶式吧台设计,延伸了梯步感,让梯步视觉效果变宽,也让吧台有展示空间之感。并且,利用楼梯与台阶吧台下方设计收纳柜,放置杂物,不浪费一丝一毫空间。
LIVING ROOM—客厅—
没有多余的色彩,高雅又耐看。黑白灰的空间基调,原木贯穿其中,冷暖相互映衬,优雅而静谧。浅灰色略有斑驳的墙壁设计,提升了空间的整体质感,利落轮廓的电视柜与茶几,搭配柔软舒适的三人沙发,综合空间的硬冷,给人以自由闲适的感觉。
BEDROOM—卧室—
始终坚信,越简单,越耐看。卧室延续整个空间的黑白灰,黑色半高栅格配上灰色墙壁、灰系床与床品,尽显现代极简风格;哑光橙的窗帘、原木地板营造卧室特有的温馨,大面的落地窗引进充足的自然光线,也能使屋主欣赏到窗外宜人的风景。
STUDY—书房—
TOILET—卫生间—
/THE END/
DESIGN OF HONOR
全国住宅装饰装修“百强企业”
全国青年艺术人才(重庆)室内设计奖
SF 设计大赛十大青年设计师
APIDA 亚太区室内设计大奖
艾特国际空间设计大奖
中国住宅设计大奖
中国建筑装饰设计艺术设计大奖
IFI 中国室内设计大奖
M+中国高端室内设计大奖
金瓦年度住宅空间设计大奖
IDS 国际设计先锋
全国第四届美标设计大奖
亚太室内设计大奖
德意杯中国室内设计明星
卡萨帝艺术生活设计创意空间设计大奖
创意中国·第四届全国室内设计大奖
2020「营造家奖」西南赛区年度设计 TOP100
客服
消息
收藏
下载
最近






























