查看完整案例


收藏

下载
斯是陋室,惟吾德馨。
INFORMATION
项目信息
r
项目名称:高科江澜
Project Name:Gaoke Jianglan
户型/面积:叠拼/ 298㎡
Unit Type /Covered Area:Stacked villas /298㎡
设计风格:新中式
Design Style:New Chinese style
设计师:陈小晖 李雨璇
Designer:Chenxiaohui Liyuxuan
施工单位:美的家装饰工程中心
Construction Unit: Midea Home Decoration Engineering Center
IDESIGN DESCRIPTION
设计说明
本案设计融合现代主义的简约与传统东方的独特韵味,令空间沾染着雅韵、沉静的气质。营造一个宁静、温馨的家居氛围。
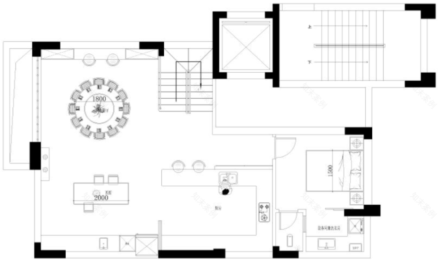
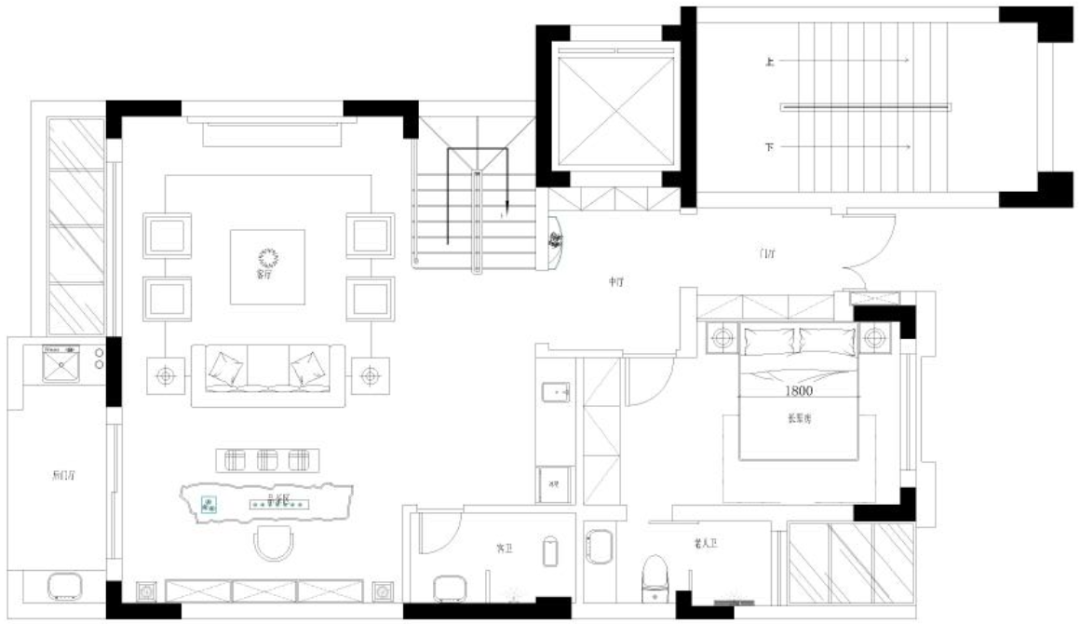
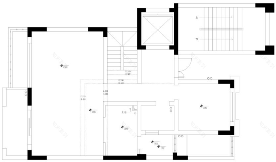
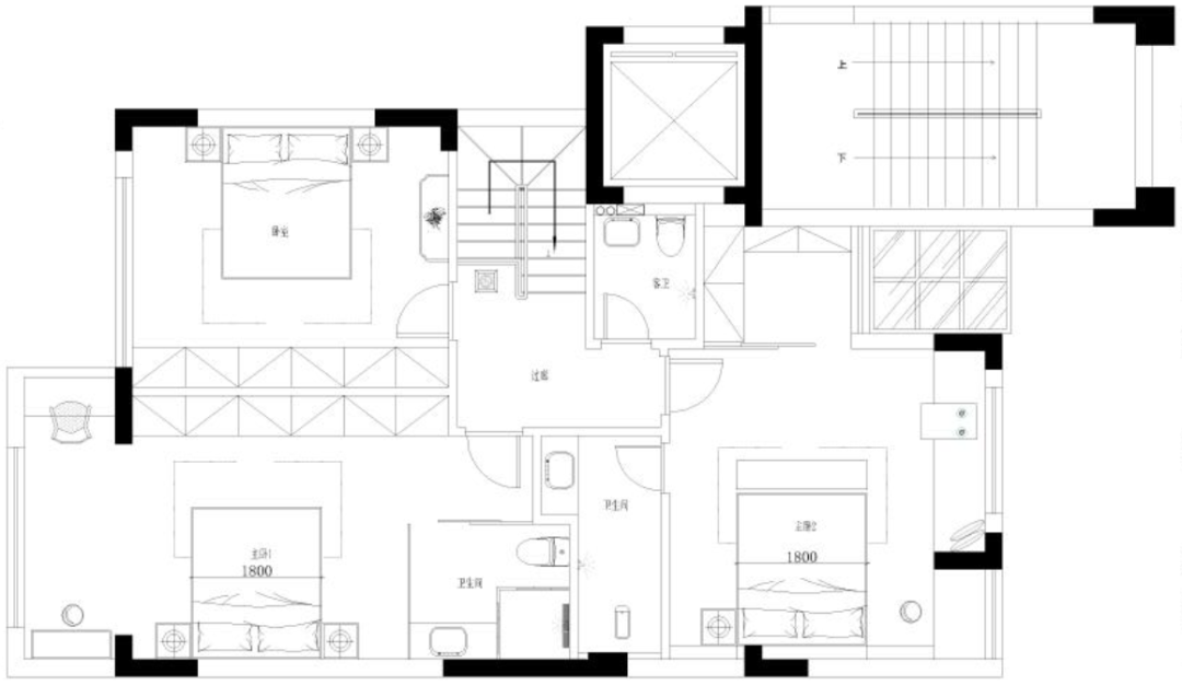
负二楼是娱乐为主,影音室,麻将桌,酒窖;负一楼是用餐区域,中西厨、岛台加大餐厅,可以日常家庭用餐,也能满足聚会时的多人用餐;一楼是会客区,客厅联动茶区,在这里,以茶会友,品味生活中的闲时情趣;二楼为起居区,卧室基本都在这层。
滑动查看负一层/一层/二层平面和原始图
HALLWAY
玄 关
非常讲究空间的层次感。中式门厅玄关柜,展现出中式家居的层次之美。
LIVING ROOM 会客厅
现代简约的空间里,暖灰作基调,加入传统文化元素让会客厅古朴宁静。工整、利落的线条有着与生俱来的秩序感,圆形装饰画点缀其中,营造出几何艺术感,粗旷的画质面带着写意的山水脉理,不经意间传达出东方大宅的意境之美。大面积运用深色的木质家具,让整个空间透着一股淡淡的木香。
温润的木质,每一处都深藏着迷人的细节,有种耐得住时光打磨的魅力,干净纯粹,温润自然,方寸之间,一切都如此从容优雅。
大气古雅的正统桌椅、品味不凡的考究茶具,辅以绿竹盆景,于沉稳与典雅之间,铺设出其间的清雅与灵逸;在这里感受一茶一世界,一壶一人生东方优雅生活的高贵细腻。
DINING AND KITCHEN SPACE
餐厨空间
摒除餐厨间隔,以一体化设计,加入采光天井,打造空间舒适感受;同时摒弃繁杂的传统装饰,选取温润的原木材质搭配高级大理石,点缀着中式陶瓷花瓶摆件,将温润而真实的东方烟火情境缓缓勾勒。
作为餐厨空间的点睛之笔,餐厅区域凹位底层硬包与两侧的装饰柜相得益彰,陈设条案,呼应圆屏山水画、古风花瓶摆件成为一处小景。西厨区大面积深原木柜体与同色系同材质的岛台腿和谐统一,青花瓷花瓶加一抹绿意,诠释了独特的东方情韵。
半开放厨房设计,敞开时整个空间通透开阔,关上完美隔绝油烟。
BASTER BADROOM 主卧
阅尽繁华,复归淡然。
鸟语花香非常富有诗意的床头背景墙,把卧室烘托的不焦不躁,显得格外静谧,配色古香古色的家具,东方独有的清幽、风雅弥漫一室。
光与影,明与暗,虚与实。长虹玻璃自带美颜滤镜,透光不透影,将睡眠区与洗漱区分离又统一,整个室内空间通透而开阔;搭配古香古色的床品与家具,将中式的氤氲气韵表达得淋漓尽致。
SON ROOM
儿子房
卧室套茶区,在这里可以享受平静自在的状态,舒适而安稳,仿佛我们的感知也变得沉静,柔软。素雅的色彩、自然的材质、质朴的肌理,将温润而真实的东方情境缓缓勾勒。
温润的木色让空间更为沉稳安逸,阳光洒下自然的光线,幸福感在空间中蔓延。
SECOND BEDROOM 次卧
回归东方的人文情怀,传统的胡桃木家具赋予空间优雅的韵律,让传统的余韵浸透现代生活。
/ END/
荣誉设计
DESIGN OF HONOR —
全国住宅装饰装修“百强企业”
全国青年艺术人才(重庆)室内设计奖
SF 设计大赛十大青年设计师
APIDA 亚太区室内设计大奖
艾特国际空间设计大奖
中国住宅设计大奖
中国建筑装饰设计艺术设计大奖
IFI 中国室内设计大奖
M+中国高端室内设计大奖
金瓦年度住宅空间设计大奖
IDS 国际设计先锋
全国第四届美标设计大奖
亚太室内设计大奖
德意杯中国室内设计明星
卡萨帝艺术生活设计创意空间设计大奖
创意中国·第四届全国室内设计大奖
2020「营造家奖」西南赛区年度设计 TOP100
客服
消息
收藏
下载
最近


















































