查看完整案例


收藏

下载
对于家,每个人都会有自己想要的感觉,而这种感觉来源于生活的积累与丰富的阅历。
INFORMATION
项目信息
—
项目名称:渝开发星河湾
Project Name:Yukaifaxinghewan
户型/面积:叠下/ 230㎡
Unit Type /Covered Area:Stacked apartment /230㎡
设计风格:现代
Design Style:Modern
设计师:廖俊豪
Designer:Liaojunhao
施工单位:美的家装饰工程中心
Construction Unit: Midea Home Decoration Engineering Center
BACKGROUND
项目背景
—
业主一对年轻夫妇,男主经商,平时家里聚会较多,女主喜欢下厨,园艺打理。
RETROFIT DESIGN
户型改造设计说明
—
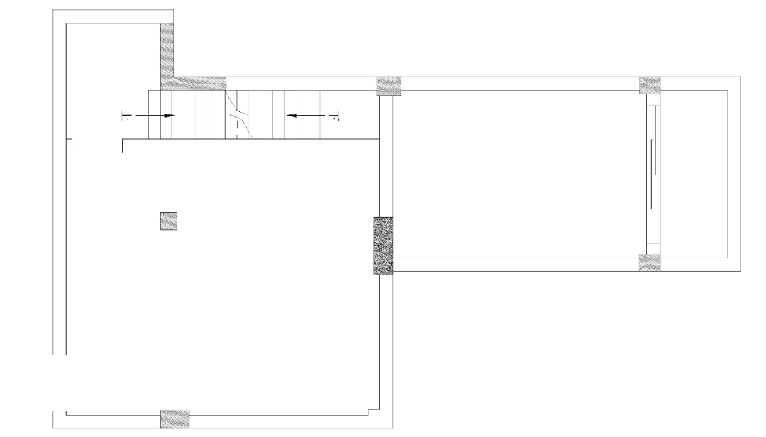
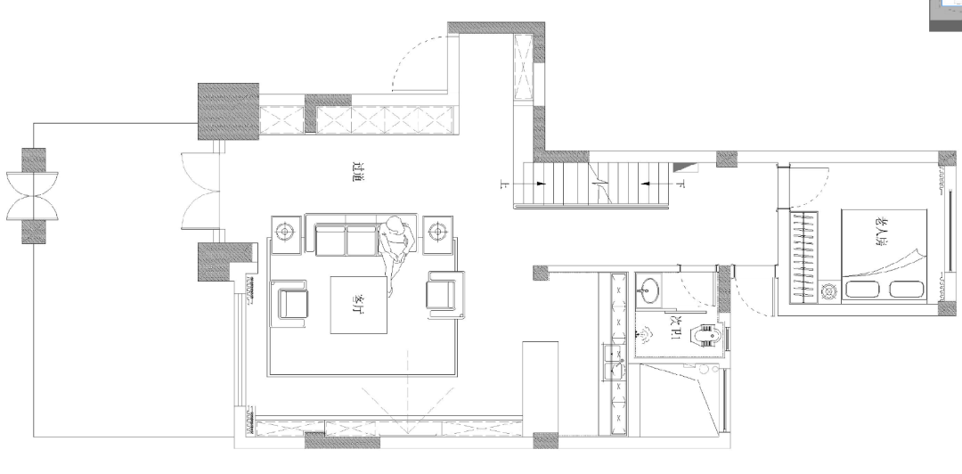
左右滑动查看负一层/一层平面/原始图。
前后拥有花园,通风采光好,户型方正,结构合理,空间高,是一套不可多得的经典户型。
在设计上,突出了结构需求家庭的特点,设计中西分离的厨房,独立的餐厅和前后功能分明的花园布局,用白色搭配浅木纹色的整体色调,表达业主的温馨典雅。
LIVING ROOM
— 客厅 —
现代极简风格,简洁明朗的线条,搭配温馨舒适的木纹和高档石材的纹理,既不过分张扬,又恰到好处地把雍容华贵之气渗透到每个角落,既突出户型本身的自然优势,又适当彰显业主的个人品味。
客厅与吧台区域处于一种横向的连贯中,充分体现了空间设计的流动性。大理石+原木的高低组合式吧台,让家居氛围充满情调。繁忙的工作,回到家给自己小酌一杯的时间,让心平静下来,享受一下闲暇时光。
RESTAUNANT— 餐厅 —
洁白简约的空间里,轻盈的层次和灰度,搭配室内天井造型设计,自然安静,形成餐厅所独有的布景点。
KITCHEN
— 厨房 —
U 型厨房,根据生活所需定制最适合自己的布局与细节。
MASTER BEDROOM—主卧—
简洁舒适的色调让人沉醉于休憩时光,顿消疲累。闲看花开花落,静观云卷云舒。不管外界如何喧嚣嘈杂,只愿在这方寸之间感受世界潮起潮落,静静等待绚丽绽放。
SECOND BEDROOM— 次卧 —
次卧延续了主卧的宁静雅致,没有繁复华丽的花样与纹饰,为室内创造出一种自然简约的风范。
SONROOM—儿子房—
纯白的墙面、木质的温润从地面延续到部分墙面,搭配黑色软皮靠背、蓝色床品,整个卧室空间舒适而静雅。
/END/
DESIGN OF HONOR
全国住宅装饰装修“百强企业”
全国青年艺术人才(重庆)室内设计奖
SF 设计大赛十大青年设计师
APIDA 亚太区室内设计大奖
艾特国际空间设计大奖
中国住宅设计大奖
中国建筑装饰设计艺术设计大奖
IFI 中国室内设计大奖
M+中国高端室内设计大奖
金瓦年度住宅空间设计大奖
IDS 国际设计先锋
全国第四届美标设计大奖
亚太室内设计大奖
德意杯中国室内设计明星
卡萨帝艺术生活设计创意空间设计大奖
创意中国·第四届全国室内设计大奖
2020「营造家奖」西南赛区年度设计 TOP100
客服
消息
收藏
下载
最近
































