查看完整案例


收藏

下载
理想中的家该是什么样子?
前/后有院子,有天有地的房子!
而我要布置一间:
王子、公主心中的宫殿,
有你所想,一切都精致考究。
业主
OWMER
业主是一位比较讲究细节的人,在初次接触的过程中,针对设计师所提出的设计方案,罗列出了满满一张A4纸的个人意见,包括插座的位置与数量、装饰画的摆放,灯光如何铺设等等,都有自己对精致的坚持。
女主人是一位平面设计师,因此在审美方面,有很高的追求。
✦软装色彩搭配
设计说明
DESIGN DESCRIPTION
本案设计师精心控制不同明暗度的色彩,整个空间中的一饰一物都没有过分的奢华与浮夸,而是通过材质与造型使空间更赋高级与精致感,在低调中体现时尚、有品位的生活格调。
客餐厅
LIVING ROOM & RESTAURANT
天然纹理的电视背景墙,木饰面护墙板,奠定了空间的沉稳力量。
布艺沙发、灰白花纹地毯、木作的边几等材质属性,构筑了客厅低调沉稳的空间氛围。
空间里的软装搭配根据不同角度的审美,挑选的装饰品讲究造型的搭配,其间穿插多种元素,展现出空间的质感。
餐厅的搭配设计亦延展客厅氛围。
两侧的墙柜,陈列着各种器具与装饰品;空间中大理石、布艺及木饰面相撞的高级感,不露声色的在空间流转,撩动着我们的身心与视觉。
二楼梯间
SECOND STAIRWELL
将
二楼梯间
打造成一个
练琴室
。
半透明的夹丝玻璃墙,摆脱传统墙壁的呆板,黑白钢琴靠窗而置,百叶窗设计,在保证私密性的同时,增加了空间的使用感受。
主卧
MASTER BEDROOM
主卧是体现一家之主的形象、品质
以及仪式感,亦是现代舒适家居生活的最高表达。
主卧延续整体空间氛围,在材质上以原始质朴的原木为主,展现出最直接的质感。
原木配衬黑白灰系的床品,营造悠然宁静的居室氛围。
父母房
PARENTS ROOM
父母房跟随主基调,
使得空间调性具有连贯感与简洁美。
软包背景墙设计,搭配以灰系现代床品点缀,简约中透露出柔和悠远的意蕴,并且为房间注入温馨舒适
的感觉。
女儿房
DAUGHTER ROOM
浅灰+粉色为主调
。
软装配饰上选用绒与布艺材质,使女儿房更柔和与舒适感。大大半圆背景墙设计,嵌入灯带,成为了女儿房的视觉焦点。
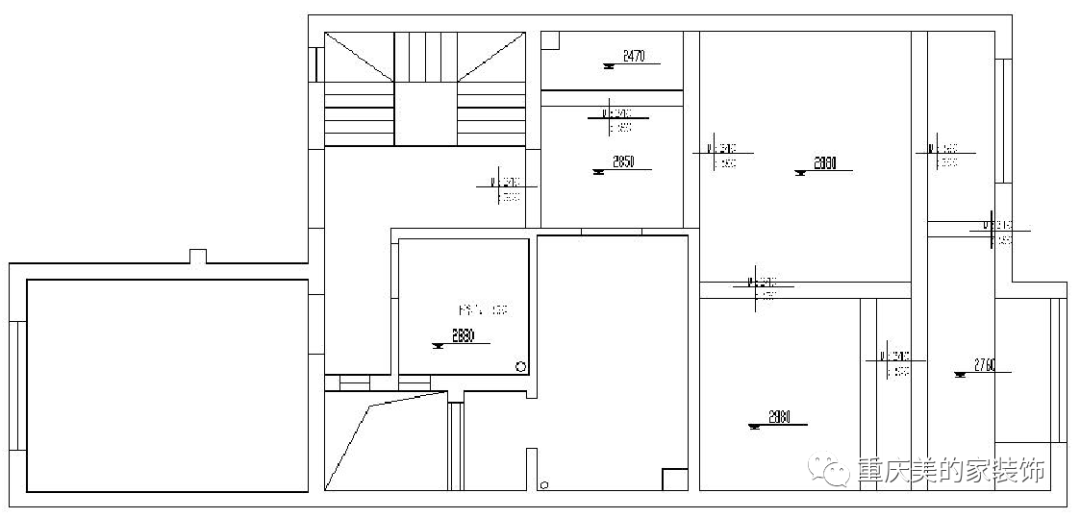
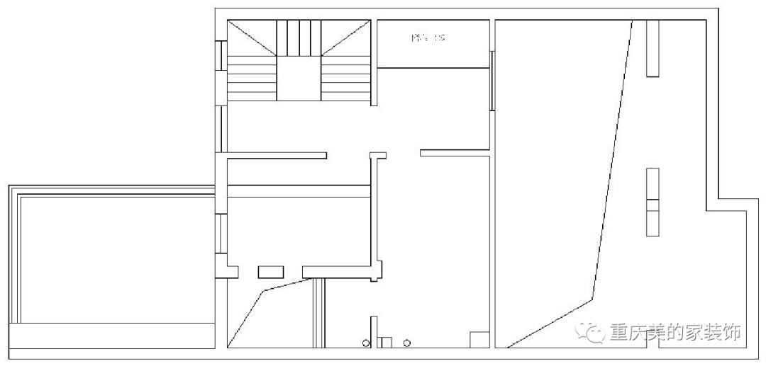
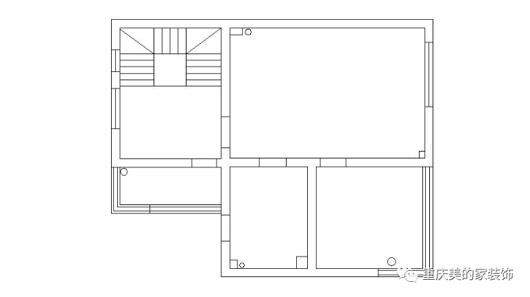
户型图
左右滑动查看 平面 / 原始 结构图
项目档案
项目地址/Project address:中央美地
面积/Square Meters:328㎡
风格/Style:现代
户型/Apartment:叠上
设计师/Designer:黄健雄
-E
ND-
近/期
/热/文
Recent posts
一半原木,一半自然
高级灰+爱马仕橙,现代摩登时尚家
珠江城丨现代潮流时尚大宅
日式原木 ,清新·淡雅
栖居·东方
工装设计丨重庆FFC超高颜值办公设计
美的家为精英定制生活
客服
消息
收藏
下载
最近






















































