查看完整案例


收藏

下载
金堂奖.中国室内设计年度评选
2019全国杰出作品展播
关于设计师丨
伊藤贵之
日本一级建筑师
高级主创建筑师
KKS国际有限公司(香港)副董事长
伊藤先生从事文旅、酒店、康养、会议类项目的规划设计已超过25年。多次获得国际建筑设计奖项,其中包括2012年亚洲酒店论坛年度最佳酒店设计师奖、纽约《HOSPITALITY DESIGN》 杂志2014年度设计大奖、2002年亚洲APIDA设计铜奖、 2003 年中国十佳高尔夫球场会所奖、2007年的昆山阳澄湖费尔蒙酒店国际设计竞赛大奖等诸多奖项 。
伊藤先生的设计思想和理念多次在专业期刊上发表,也曾多 次担任国际、国内设计竞赛的评委,是一位对行业发展有影 响力的酒店规划设计专家。
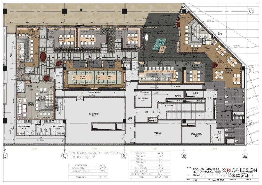
作品赏析 | 广东佛山罗浮宫索菲特酒店“松宫”日本餐厅
项目类别|餐饮空间
项目地点:广东省佛山市
完成时间:
2018年9月
项目面积:
850㎡
设计单位:
深圳米窦设计顾问有限公司
“松宫”日本餐厅,隶属于佛山罗浮宫索菲特大酒店的一件特色餐厅。“松宫”依仗于索菲特酒店对品质的一贯高标准要求,打造出一间在佛山地区拥有绝对高规格的日本餐厅。
“松宫”日本餐厅以寿司刺生为主打经营,并辅以铁板烧与天妇罗。全店以包房经营为主,共设有8个包房,满足了不同层次客户对私密商榷的需求。“松宫”以传统日本风格为设计的核心灵魂,并用以现代装饰手法来提炼与展现。
“松宫”以传统日本风格为设计的核心灵魂,并用以现代装饰手法来提炼与展现。在公共区域的设计中借用了日本庭院的气质与精神,乡间预后小道那泛着光的石板路、小石子和藏在草丛间的石灯笼,让日式庭院风得到了很好地体现。
无论是硬装上的设计元素符号,还是软装上的直接隐喻,将东瀛的空灵与禅意通过不同的方式进行了多元化的体现,让消费者在此既能够享受于“静”中食,亦能够品尝到“禅”中味。
“松宫”的布局仍然是以日本乡村邻里相间的形式来开展的。日本乡间村镇户与户之间相隔却又相亲的有机组合,给予了我们对这间日本料理餐厅平面布局的有趣的想像。
这种布局的设计当通过意境的烘托,而后形成为立体空间之后,就非常像京都小街巷的感觉。而各个包房与包房之间又并不是独立的,他们通过石板路的相接相连,相互之间产生了对话,使得整体空间有了邻里弄巷的味道。
本项目的选材也完全遵照东方精神中崇尚自然的概念,多以实木、天然石材、水性涂料等无污染的天然材料为主,尽可能实现低碳以及未来的可再利用性。
设计用心,细节考虑周到,处处体现人性化。整体色调温暖舒适,灯光格调精致高雅,打造出了高端餐饮应有的风范。
浓郁的日本庭院和风与日本邻里相间的感觉,让这间餐厅具备了东方的活性。
平面图
注:
版权归参评设计机构及设计者所有
经金堂奖整理发布
欢迎分享!
- END -
2020
年度战略合作企业
往期精彩回顾
6月相约深圳|往届深圳时尚家居设计周&金堂奖精彩回顾⑧
6月相约深圳|往届深圳时尚家居设计周&金堂奖精彩回顾①
6月相约深圳|往届深圳时尚家居设计周&金堂奖精彩回顾⑥
6月相约深圳|往届深圳时尚家居设计周&金堂奖精彩回顾③
客服
消息
收藏
下载
最近



































