查看完整案例


收藏

下载
设计师:潘昌建
设计职称:高级设计师
从业年限:9 年
设计理念:生活是设计的来源,而设计服务于生活。设计改变的不是生活,而是生活方式
服务的客户:园林家园复式楼,城市嘉园,红星嘉园,怡园别墅,苏建阳光新城,新城新苑等
擅长的风格:新中式、现代简约、现代轻奢、北欧风格等
个人作品鉴赏:
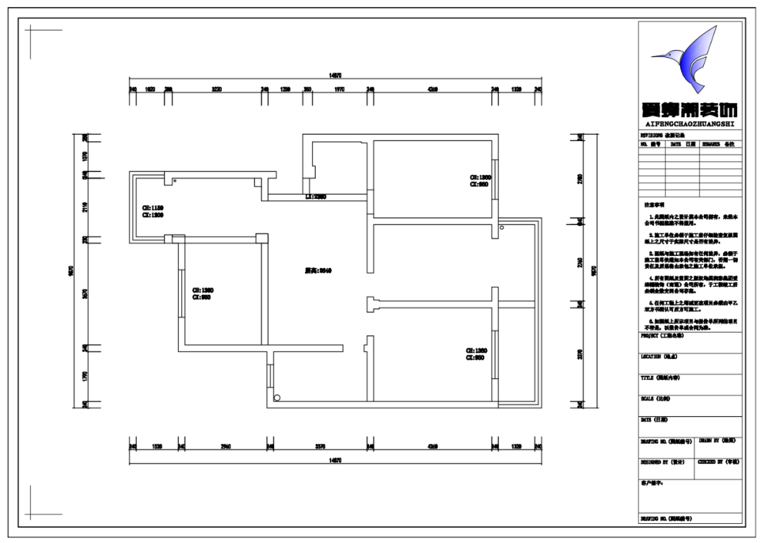
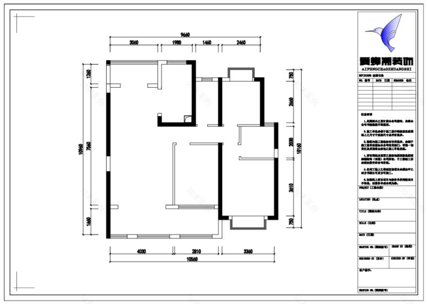
▷原始结构图
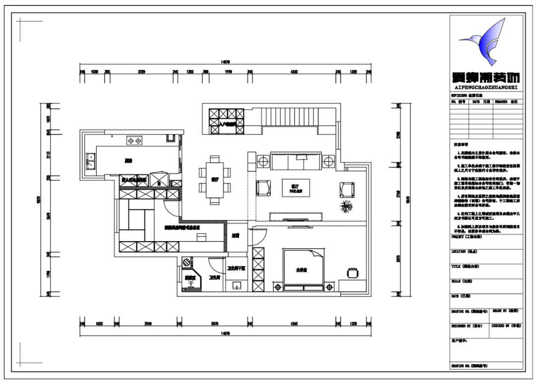
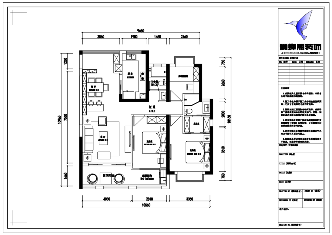
▷平面布置图
设计说明
简约不等于简单,它是经过深思熟虑后经过创新得出的设计和思路的延展,不是简单的“堆砌”和平淡的“摆放”。家庭的简约不只是说装修,还反映在家居配饰上的简约。
▷ 一楼客餐厅
在家具配置上,皮质系列家具,独特的光泽使家具倍感时尚,具有舒适与美观并存的享受。在配饰上,延续了黑白灰的主色调,以简洁的造型、完美的细节,营造出时尚前卫的感觉。
▷ 一楼客厅
装修的简约一定要从务实出发,切忌盲目跟风而不考虑其他的因素。简约的背后也体现一种现代“消费观”,即注重生活品位、注重健康时尚、注重合理节约科学消费。
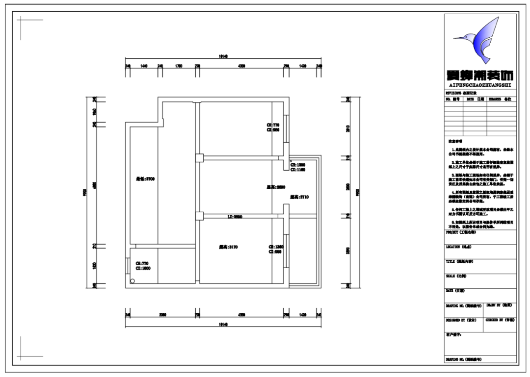
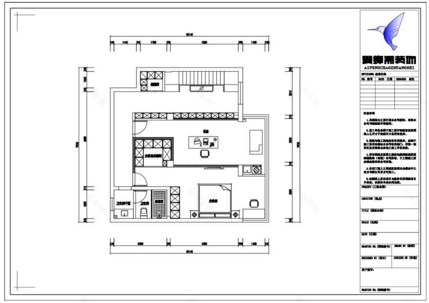
▷ 二楼
项目名称:新城新苑
所在区域:崇川区
装修风格:现代简约
建筑面积:复式
施工单位:爱蜂潮装饰工程南通有限公司
其他代表作 1:
▷原始结构与平面布置图
设计说明
本方案为三室两厅的居室设计,业主为一对年轻夫妇,妻子是音乐教师,丈夫是工程设计师,还有一个十三来岁的女儿。针对上班族的业主,设计师采用简约明朗的线条,将空间进行了合理的分隔。面对扰嚷的都市生活,一处能让心灵沉淀的生活空间,是本房业主心中的一份渴望,也是本设计在该方案中所体现的主要思想。因此,开放式的大厅设计给人以通透之感,避免视觉给人带来的压迫感,可缓解业主工作一天的疲惫。
没有夸张,不显浮华,通过干干净净的设计手法,将业主的工作空间巧妙地融入到生活空间中,符合实际的工作需求,使男主人可以在家中随时随地捕捉设计灵感,并将其附注于纸上。
项目名称:华强城
所在区域:港闸区
装修风格:新中式
建筑面积:127 m²
施工单位:爱蜂潮装饰工程南通有限公司
其他代表作 2:
设计说明
本方案是围绕现代轻奢为主题,适合于 30 岁左右的四口之家居住,再加上现代时尚的设计元素在里面。相互结合,相交融。以简洁明快的设计风格为主调,简洁和实用是现代简约风格的基本特点。
轻奢风格已经大行其道几年了,仍然保持很猛的势头,这是因为人们装修时总希望在经济、实用、舒适的同时,体现一定的文化品味。而轻奢风格不仅注重居室的实用性,而且还体现出了现代社会生活的精致与个性,符合现代人的生活品位。
项目名称:苏建阳光新城
所在区域:港闸区
装修风格:现代轻奢
建筑面积:140m²
施工单位:爱蜂潮装饰工程南通有限公司
●
●
●
爱蜂潮装饰,11 年品牌铸造,省心省力的品质家装
南通市崇川区锦安花园附 8 幢
客服
消息
收藏
下载
最近

















