查看完整案例


收藏

下载
喧闹都市中寻一处净土,筑一座属于“生活”的空间。重庆万科·锦绣滨江,位于核心生活圈,坐拥优质的城市界面和山水文脉,恰是这座城市一面繁华、一面静谧的临界点。在这里,GNU 金秋设计基于对现代生活的再创造,营造出一个生态、艺术、设计、美学相结合的人居空间。
01 风卷云舒吟山城烟火 SINGMOUNTAINCITYFIREWORKS
素有“一半市井,一半摩登”的重庆,承载着山城的动与静,古有巴蜀,亦是文化的融汇之地,自然与人文的脉络,不断演进,保存了自古至今的精致温和。其兼容、乐观、宁静的基因,几经沉淀,在当代中西方文化的浸润之下,如同将涓涓细流般的认同感汇入文化自信的源流之中,形成独特的重庆生活美学,并给设计师带来创作新趣。
艺术为空间注入灵魂,在于人在空间静态中感受它的温度。在玄关处,设计师精心挑选的云裳,“云想衣裳花想容,春风拂槛露华浓。”传说仙子以云为衣,故有《云裳》之说。海子有诗以梦为马,《云裳》尽物态之美,亦是梦想和自由的化身。
古人将山水与人文藏在古诗词中,宋代诗人汪元量曾以“林间麋鹿遥相望”来形容对重庆的印象。《重庆府》一诗中,何明礼则赞美地更为明显:“江流自古书巴字,山色今朝画巨然。烟火参差家百万,波涛上下浪三千。”
灰、黑、米色、木质、大理石壁布多材质体块的变化,穿插交互,用柔和的方式呈现材质与色彩的对比关系,内敛稳重。抽象雕塑、涂鸦、艺术画彰显当代审美的传达,这种建构方式承载着空间多元而丰富的体验。
艺术品是空间的眼,交错布局的摆件还原东西美学元素,以差异化重构人文精神,超越想象的极限,衍生出极具国际化的格调,成就山城人居的精致与美好。
内敛的色彩语言,简约的装饰手法,根植于东方文化的手法是空间设计中贯穿始终的立意。当代艺术的表达手法,流行元素成为独具个性的传递,中意西写,在严谨之中寻求一种多元、玩趣的态度。
02 柠月如风诗酒趁年华 POETRYANDWINEINTIME 一半是归素底色,一半是隐逸奢华。烟火气的加入,完成了对人文生活的完整讲述,空间延续了完全开放与分区而定的起承转合,急促与舒缓,平铺与直叙,集空间气韵调节人对空间的感受,余烟氤氲,把酒当歌。
不同的功能区创造不同的对话语境,设计与音律在空间悄然转化,“精神”、“场景”与“时空”从此定格,弹奏人们最原始的心灵感受,自由的灵魂,内心的向往,情绪的激荡娓娓道来。
03和光同尘揽清风入梦
ENJOY THE BREEZE AND DREAM
木色与白作为卧室的主色调,纯净中潜藏无限生机,正是东方美学强调的平衡意境。木材质碰撞对话,轻重冷暖之间,悉心提炼别具一格的人文底蕴。
横平竖直的线条,是西班牙艺术家 Eduardo Chillida 的装饰首选,既融合了中国传统文化的韵味,又与现代风格相融,沉浸其中,细细品味,激发出城市肌理与空间的联想。
| 主卧
次卧以相对均衡、简洁的结构语汇,实现从意象感知到意境氛围的绵延递进,让家的每一个角落都变得美好有趣。
| 次卧 空间不仅承载着功能意义,也是传达艺术美学与生活方式的所在。或许,唯有文化和美学可以帮我们寻求内心深处。正如林清玄所说:“真正的生活品质,是回到自我,清楚的衡量自己,而后追求最好的事物与生活。”构筑独属于居住者本身的精神世界,在光阴里诠释岁月静好。
| 儿童房
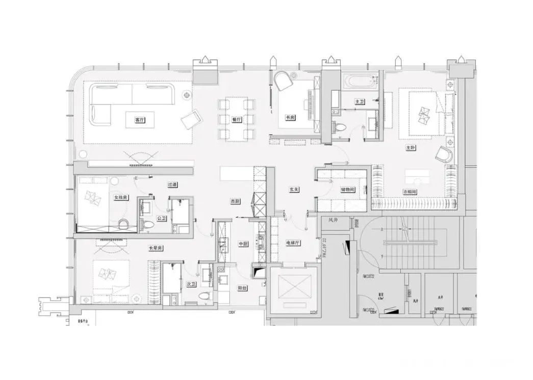
平面布置图
项目名称|重庆万科·锦绣滨江 C 户型
项目地点|重庆渝中区
项目面积|240㎡
完成时间|2020 年 12 月
业主单位|万科(重庆)企业有限公司
设计总监|龙海玲
创意总监|余秋兵
软装设计|东莞市金秋装饰设计有限公司
硬装设计|广州燕语堂空间艺术设计有限公司
东莞市金秋装饰设计有限公司(GNU)自有设计产业园区 10000 多平方米,集设计办公、物料仓储、设计衍生产品研发车间于一体。怀揣“让所见更美”的职业使命,我们放眼国际视野,认真感知时代审美潮流,倾力于作品迭代创新。GNU 严明欢愉的企业文化,吸引了众多资深设计人才、欧洲海归人才的加盟,开明开放的股权激励机制打造出一支富有成效的工作团队。
GNU 完成的 1000 多个工程案例遍布全国 30 多个城市。凭借多年紧密服务国内一线房地产开发商积累的丰富设计经验,与志同道合的行业精英集结一道,GNU 正实践着从软装设计服务商到空间设计全案服务商的延伸。目前楼盘售楼处、样板房、会所、星级酒店等室内空间的软装设计与实现是我们引以为傲的优势领域,客户的肯定与认同为我们带来良好声誉。
GNU 金秋设计近期案例
西宁万科·公园里售楼处
西宁万科·时代都会样板间
贵阳万科·观湖样板间
东莞众筑·滨海中央售楼处
客服
消息
收藏
下载
最近










































