查看完整案例


收藏

下载
隐蘆安住
/
餐饮茶道文化之旅。
隐蘆安住定制餐厅坐落于昆明北的世博园内。原址是“99年世界园艺博览会”的一栋一层半的办公楼,改造后成为隐蘆系列餐厅的旗舰店——“隐蘆安住”。
为使建筑更加融于环境,建筑内外墙面均使用同一种质感强烈的麻质灰色涂料,其与大面积的木质材料形成对比与统一,安静而有质感,人们可以在这里安静而惬意地享受美食与美景。
外立面
景观步道
屋顶花园
庭院景观
楷素设计在原有的建筑上设计了“庭院-内厅-廊道-屋顶花园平台-庭院”的环形路线,分隔出不同的体验空间。各独立空间与室外借景呼应,紧扣内外融合的概念,每个空间又注重私秘性需求的距离。打造一个整体而别有洞天的空间氛围。
KES Design Office designed a circular route of "courtyard-innerhall-corridor-roof garden platform-courtyard" on the original building, so as to separate different experience spaces. Each independent space echoes with the outdoor scenery, paying close attention to the concept of internal and external integration, and each space pays attention to the distance of private needs. It created a whole and unique space atmosphere.
功能上除了主营定制米线外还有定制私房菜以及供客人DIY的自助厨房包间。除此之外客人还可以享受到云南的普洱茶,之余更可以体验独特的SPA服务。在世博园优美的环境里体验最独特的餐饮茶道文化之旅。
In addition to the main custom rice noodles, there are customized private dishes and self-service kitchen rooms for guests' DIY. In addition, guests can also enjoy the Pu'er tea from Yunnan, you can also experience unique SPA services.You can experience the most unique cultural journey of catering and tea ceremony in the beautiful environment of the Expo Park.
中厅
走道
❮❮❮ 向左滑动,浏览更多图片
❯❯❯
从世博园本身园艺展示的历史脉络中汲取灵感,设计师将东方庭院与现代建筑空间相结合,营造一个简约富有意境的体验空间,避免审美疲劳。楼梯的处理在原有结构的基础上将其体块化,结合直射进来的自然光使空间建筑化,从而获得更有分量感的上下转折空间氛围。
Drawing inspiration from the historical context of the horticultural display of the Expo Park, the designer combines the oriental courtyard with the modern architectural space to create a simple and artistic experience space to avoid aesthetic fatigue. The treatment of the staircase will block it on the basis ofthe original structure, combined with the direct natural light to make the space architectural, so as to obtain a more component sense of the upper and lower turning space atmosphere.
立面细节
每个独立空间秉承一间一景的概念,在保证私秘性的同时为每个空间引入不同的室外景观。
Each independent space adheres to the concept of one room and one view, which not only ensures privacy, but also introduces a different outdoor landscape for each space.
就餐区
茶室
二层的私宴厅通过木头的使用让空间更加接近家的氛围,温馨而自然,结合了书房、茶室和开放式厨房,满足不同的接待需求。
The private banquet hall on the second floor makes the space closer to the atmosphere of home through the use of wood, warm and natural, combining the study, tea room and open kitchen to meet different reception needs.
清酒区
作为建筑中最“空灵”的场所,一楼长厅引入了“水塘”,内部池底用到了园林建筑中常用的材料——以瓦片铺设。凿开的天花板引入自然光线,在视觉上联通了天与地,打破空间较低矮的压抑感,让人在室内也可以感受光影与四季的变化。
楼梯细节
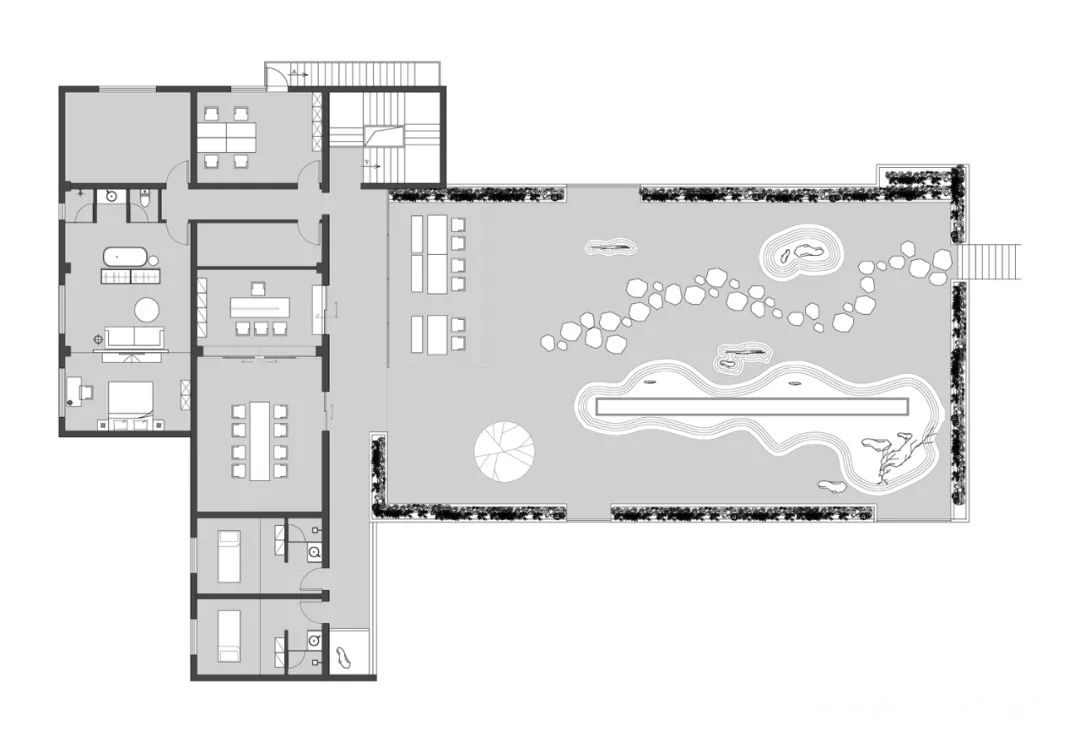
一层平面布置图
二层平面布置图
项目名称
|
隐蘆安住餐厅
项目地址
|
昆明
项目面积
|
1500㎡
设计公司
|
楷素设计(KES Design Office)
主创设计
|
黄华君
设计团队
|
赵健、黄凡、徐晓梵、黄发军、林祖朝
完工时间
|
2020年5月
楷素设计创办人&设计总监 / 黄华君
楷素设计(KES Design
Office)是一家专业设计公司。提供建筑、室内、产品及平面设计服务。坚持以研究的方式实践设计,坚持探寻项目背后的故事,坚持做真实的设计,坚持做有态度的设计。
【
获得
荣誉
】
2020 A
D100 YOUNG
2
019-2020意大利A' Design Award
2018美国Architizer A+ Awards
2017-2018意大利A' Design Award
2016APIDA香港亚太室内设计大奖
2
007-2017云南室内设计十年精英设计师
2017华鼎奖
2016上海金外滩奖
客服
消息
收藏
下载
最近
































