查看完整案例


收藏

下载
如何定义个人与
外部的边界?
How to define the boundary between individual and external?
是已知还是未知?
Is it known or unknown?
亦或是各种认知的延伸?
Or is it the stretch of all sorts of cognition?
工厂革命,源自于新生代流的意识觉醒。
Thefactory revolution was born of the consciousness of the young generation.
革命
Revolution
革命的目的不是定义最终的结果,而是让质问与改变成为通向结果的道路。
The purpose of a revolution is not to define the end result but to make questioning and change become the path reach to the result.
YISEN办公室位于东莞万江,工厂招聘难已然成为阻碍工厂发展的重要因素之一,年轻一代对于工作选择除了发展前景也会非常注重工作环境,办公环境或者是办公空间的人性化与趣味性都能给企业带来招聘竞争力;工厂革命,要改变的首先就要颠覆认知重新定义工厂办公空间形式;
YISEN office is located in Wanjiang, Dongguan. Obviously, the difficulty in factory recruitment has become one of the important factors hampering the development of the factory.Not only development prospect but also working environment is important to the young generation in their choice of work. Working environment, or office space in a humanized and entertaining way can bring the recruitment competitiveness to the enterprise. In factory revolution, the first step is to overturn the cognition and redefine the form of factory office space.
革命是认知而不是形式,意味着要颠覆传统,重新定义工厂办公空间,让新旧在对抗冲突中找到平衡。
Revolution is a kind of cognition rather than a form. It means reversing tradition, redefine factory office space and find out the balance in the antagonism and conflict between old and new.
蓝色交汇着红色光影, 一切在缓缓的时间流动中充满了凝聚的力量,印证着在同一享受的空间里原本就没有真正异己之物的存在。所有可透视的表象明见性,使存在本身变得不由分说,空间也由此相互独立、融合,从而创造有趣生动。
Blue mingled with red light and shadow, and everything was full of condensed power in the slow flow of time, which proved that there was no truly alien thing in the same space of enjoyment.All the transparent representation make the existence itself to allow no explanation, and the space is thus independent and integrated with each other, thus creating interest and vividness.
有人说“哲学在用不同的方式解释世界”,设计就是在用不同的概念释放空间。每个概念的背后,随着色彩过渡、结构方程式都会使其产生质疑。光,也会引导人去自我求知另一层境界,这种“进行质疑”本身就是“与他人的相遇”。
It is said that "philosophy explains the world in different ways", and design is to release space with different concepts. Behind each concept, color transition and structural equation will make it questioned. Light also leads people to another level of self-cognition, and this "questioning" itself is "meeting others".
空间礼仪
Space Etiquette
进入总经理办公室的空间过渡,从一个空间到另一个空间用深色墙面暗示完成状态的过渡;
In the office of the general manager, use dark walls to indicate the finish of transition from one space to another.
再塑
Reshape
推翻、打破、重塑
建筑的本质开始在这个过程中反映
包含着自我意志的活跃
The essence of architecture begins to be reflected in the process of overturn, break and reshape. Including the activity of self-will.
在规则内、线条里、
在方框之中
不受束缚、乐玩工作、自由畅想
To break free in the rules, lines and boxes.
Feel fun to work and free to think.
时间印迹
Time mark
寻找建筑最原始的印迹转换成空间诗意;
Looking for the most original imprinting of the building and change it into poetic space.
爆炸图
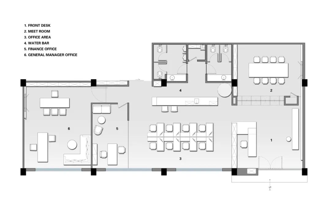
平面布置图
项目名称 |
YISEN OFFICE
项目地点 |
东莞万江
项目面积 |
200㎡
项目业主 |
YISEN益森弹簧
完成时间 |
2020年6月
室内设计 |
壹席设计事务所
主案设计 |
胡涛Huson
设计团队 |
周严杰、尹咏娴、林武源、叶柏辉
艺术装置 |
Studio V3︱Jemmo、Apink
项目物料 |
瓷砖、木地板、novacolor涂料、镜面不锈钢
项目摄影 |
陈铭
视频制作 |
山外视觉
胡涛 Huson / 壹席设计创始人、设计总监
壹席设计事务所(OD.O)服务于办公空间、商业空间、地产空间、酒店空间,提供室内全案设计及设计顾问。
ONE DESIGN OFFICE provides full solutions and consultations for a variety of interior design projects such as boutique hotels, property sales centers, model spaces and offices. With brand vision and awareness, creativity and spirit of persistence, we have always been keeping abreast of the times and making forward-looking innovations in the industry.
壹席认为城市生活才是空间意义的真正来源,壹席关注建筑、空间和城市生活之间的共生共融。在重视与尊重空间使命与存在的同时也在不断寻找、研究建筑、空间和城市生活中“间”的平衡关系。
Believing that the space has a unique sense of mission and existence, we work to endow spaces with aesthetic value whilst studying on the coexistence between people and space, space and environment, environment and value relations.
壹 席 设 计 推 荐 案 例
BEIMU DG
WZ CLUB
XQG HOTEL
BEIMU SZ
DINZ 近 期 热 文
Esrawe Studio / 独到的日式匠心之作
Formafatal / 超越想象的度假天堂
Studio XM / 极简静谧的“私密庇护所”
OMA / 度假酒店变身社区文化空间
客服
消息
收藏
下载
最近

































































