查看完整案例


收藏

下载
东方的融合美学,润物细无声的融在山谷。
在杭州西郊的幽静的山间,两层的中式合院,牧云谷分享着生活哲学。
天使小镇坐落在离杭州不远的山间,山川秀丽,草木清佳,是难得闹中取静的世外桃源。
山间环绕皆是绿色,沿着山谷,走入其中,弥漫着清新的泥土馨香,阳光顺着落地窗倾洒而入。
美是品味,是对生活的理解……
设计师对空间的处理,有安静的留白,有减法,也有游刃有余。
客厅的沙发和座椅构成一个围合区域,通过改变家居布局增进起居室内人与人的沟通。
中式窗雕楞次分明地装点着窗户,暖黄色灯笼零星点缀着。
窗景怡人,茶几上的绿枝将室外绿意引入室内。
空间上室内外相呼应。
传统中式的花器搭配上绿树,古朴、典雅、别有一番风味。
墨色山水画为空间又添了几分平和宁静。
餐厅以圆为核心概念,充分体现“和”的意境。
绿色抽象画和餐桌上的绿植在颜色和空间上延续绿意,也延续着一份自然与清新。
六人座的圆形餐桌搭配圆形的餐布圆盘,金属餐巾扣点睛。
筷架是山的模样,静静地托着筷子,沉稳、泰然、安和。
灰色丝缎窗帘与木色柜面为主卧奠定了素雅清新的基调。
中式风格的床头柜,颇具风格。
古朴温润的原木家具,不知不觉中抚平浮躁的心绪。
淡淡的梅花香,听古老的吊灯讲述一段历史。
大面积的落地窗设计,引入室外的景色与阳光,从视觉到心里,品味自然与生活之美。
男孩的房间则以大海的蓝色为主色,宁静辽远。
床头几何抽象艺术作品,从颜色到形状激发着小朋友的想象力。
置物架顶端引人注目的克莱因蓝KAWS手办,艺术与兴趣同行。
女孩房采用了粉白色调,整体明亮鲜艳。
抽象装饰画肆意挥洒的笔触,一如孩童的天真烂漫。
丝绒的材质凸显珍贵,粉色调恰到好处地平衡了厚重感。
软糯的触感为小朋友提供了一份安全与柔软。
精致的玩偶摆件在房间内错落地摆放着,守护可爱的少女心。
深色勾勒的中式窗框设计,以线条装点窗外景色。
每一处院中景置于窗内即是一副浑然天成的风景画作。
设计师从自然中取色,用不同层次的大地色系装点着老人房。
将自然语言抽象运用到室内空间,听蝉鸣鸟叫,赏春红秋落。
沿着灯光走向地下室。
设计师在这里打造了一个集阅读攀岩等为一体的娱乐空间。
鲜亮的黄绿撞色,充满了视觉冲击又童趣十足。
角落里的巨型玩偶,圆润白胖的模样疗愈人心。
黄色的装置球高低错落地悬挂着,星星点点,像灯火般燃起了整片空间。
绿色绒毯上各式蒲团随意堆叠,可以随时坐下小憩,喝茶阅读亦或是静静地陪伴着小朋友玩耍。
所谓天伦之乐不过如此。
这是一片伊甸园,一个隔绝所有纷扰的秘密基地。
水滴状的吊灯贯穿着三层空间,装点了楼梯,也温暖了整个空间。
水滴吊灯,来自日本宗师级艺术家——荒川尚也的玻璃艺术品,纯碎而又充满想象力,共同诠释着独特的极简优雅美学。
云卷云舒,大隐于市,天使小镇。
项目名称丨
蓝城牧云谷天使小镇185DS
项目地址丨
浙江湖州
项目面积丨
300平方
完成时间丨
2019年6月
室内设计丨
W J设计
软装设计丨
之恩设计
主创设计丨
沈恩密 李善洲
设计团队丨
郭珍丽 刁进尽 陈斌
项目摄影丨
黄明德
ZN DESIGN
蓝城 · 牧云谷天使小镇185DS
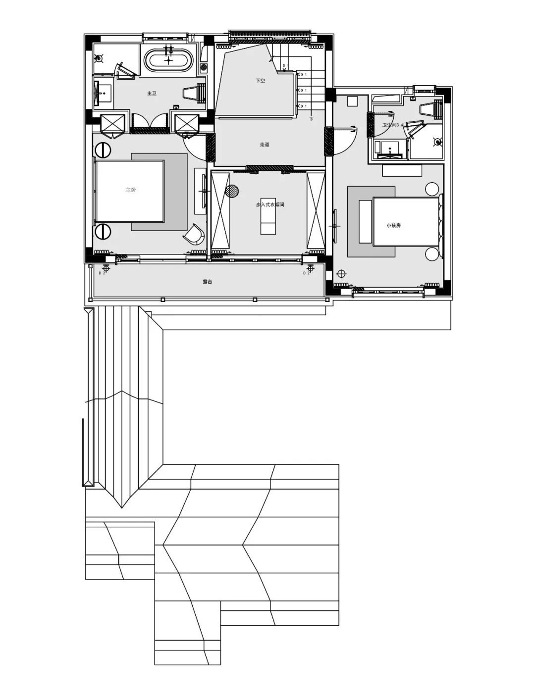
图纸呈现
一层平面图
二层平面图
地下室平面图
ZN DESIGN
蓝城 · 牧云谷天使小镇
公司介绍
之恩设计创始人 /
沈恩密 Amy Shen
之恩设计事务所(ZN DESIGN),是一家具有国际设计视野的设计机构,ZN始创于2015年,旗下拥有【ZN
DESIGN】专业服务品牌。
ZN拥有国际化的管理体系,多元化的创意团队、规范的运营管理、专业的生产基地、高速的仓储系统,这一切都为客户实现多元化专业设计服务提供的强大支持,涵盖艺术、室内、产品及设计管理的综合设计机构。
之 恩 设 计 推 荐 案 例
之恩设计事务所
东港壹号售楼处
供稿 /
之恩设计事务所
DINZ 品 牌 设 计 案 例
DINZ德网传媒旗下的品牌设计机构
Gooobrand
DINZ德国室内设计网
品牌设计
客服
消息
收藏
下载
最近






































