查看完整案例


收藏

下载
:
For my boys
超强收纳之「二孩之家」
-My mother always said...If you don't like where you are…just picture where you wanna be.
城市尋屋記100期-|5
改造主题为
:
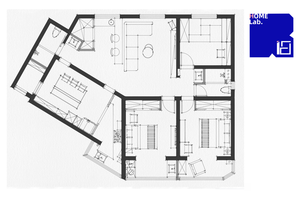
业主的房子属于二手房异型空间改造,受原始户型和结 构限制在不能大面积拆除的基础情况下,去合理优化家居动线这点还是有点难度的。
俩个男孩儿子比较皮实,平时玩具什么也很多。家得要抗造,其次对收纳空间的要求就比较高。再者就是要注重空间的舒适度,夫妻二人生活跟娃们的快乐童年都得兼顾到.
(文末附户型图拆改说明.)
保留原始三房结构,以收纳功能、家居动线为主
||.
改造主题为:亲子设计&宠物生活设计,房屋改造整体设计风格为:
现代原木极简,让我们一起来看 看Cherry新家的 Room Tour吧!
Before改造前布局问题:
原户型属于异形结构,不规则布局导致空间缺陷很多,且主要又以混泥土墙体为主,能拆除地方较少,优化起来相对棘手。主要针对以下几点布局进行改造:
🔍➊异形空间利用率低,将死角区域利用提升空间可使用面积;
🔍➋涉及原始结构拆除问题,在保留原始结构的情况下进行合理动线优化;
🔍➌动区:
玄关、餐厅、卫生间采光&收纳空间不足;
🔍➍公共互动区域:客厅+厨房区域面积充裕,但利用不合理导致空间浪费;
BeforeBeforeBeforeBeforeBeforeBeforeBeforeBeforeBeforeBeforeBefore.
After改造后布局调整:保留原始三房结构,主要以功能、动线为导向为屋主打造更具个性化的家居布局;
📌①打通玄关与厨房间非承重墙体,使餐厨一体化,节省空间动线,满足屋主中西厨需求;
📌② 将北阳台纳入厨房并缩减原始厨房面积,利用水槽+操作台优化鸡肋厨房空间;
📌③保留原始公卫布局,将洗漱区外移,提升舒适度实现真正意义上的干湿分离;
📌④原始客餐厅设计独立储物间、休闲吧、客厅等功能,提升空间利用率,解决女主零食储物问题;
After
After
After
After
After
After
After
After
After
After
After
After
After
After.
客服
消息
收藏
下载
最近



















