查看完整案例


收藏

下载
自然毛坯风
有审美会呼吸的设计
不刷乳胶漆、不贴壁纸、不吊顶,只糊一层水泥…….近两年,住这样的“毛坯房”,已经不是什么新鲜事,相反,已经形成了一种全新的装修风格。
“毛坯风”的装修,最常见的一般有三类,一类是“假毛坯真豪宅”的侘寂风,另一类是真没钱装修的毛坯风。
还有一类比较特别,也更容易被大众接受,我愿称之为“自然毛坯风”。
“自然毛坯风”,墙面是毛坯,软装设计简洁,以绿植为主要装饰,整个家充满了呼吸感、自然风,看起来清新舒适。
今天分享三个自然毛坯风的家,屋主都有点子审美在身上,非常适合想装“毛坯风”的普通人借鉴!
01
给诗意之人住的毛坯房
如果水泥会作诗,那么一定是这套房子的样子。
这套房子被命名为“给诗意的人住的公寓”,比起一般的公寓设计,这套公寓乍一看甚至有些简陋。
水泥的天花板、朴素的白墙、浅灰色环氧地坪,室内简单摆放着几件家具,沙发、扶手椅、长桌、书架,几盆绿植生机勃勃~
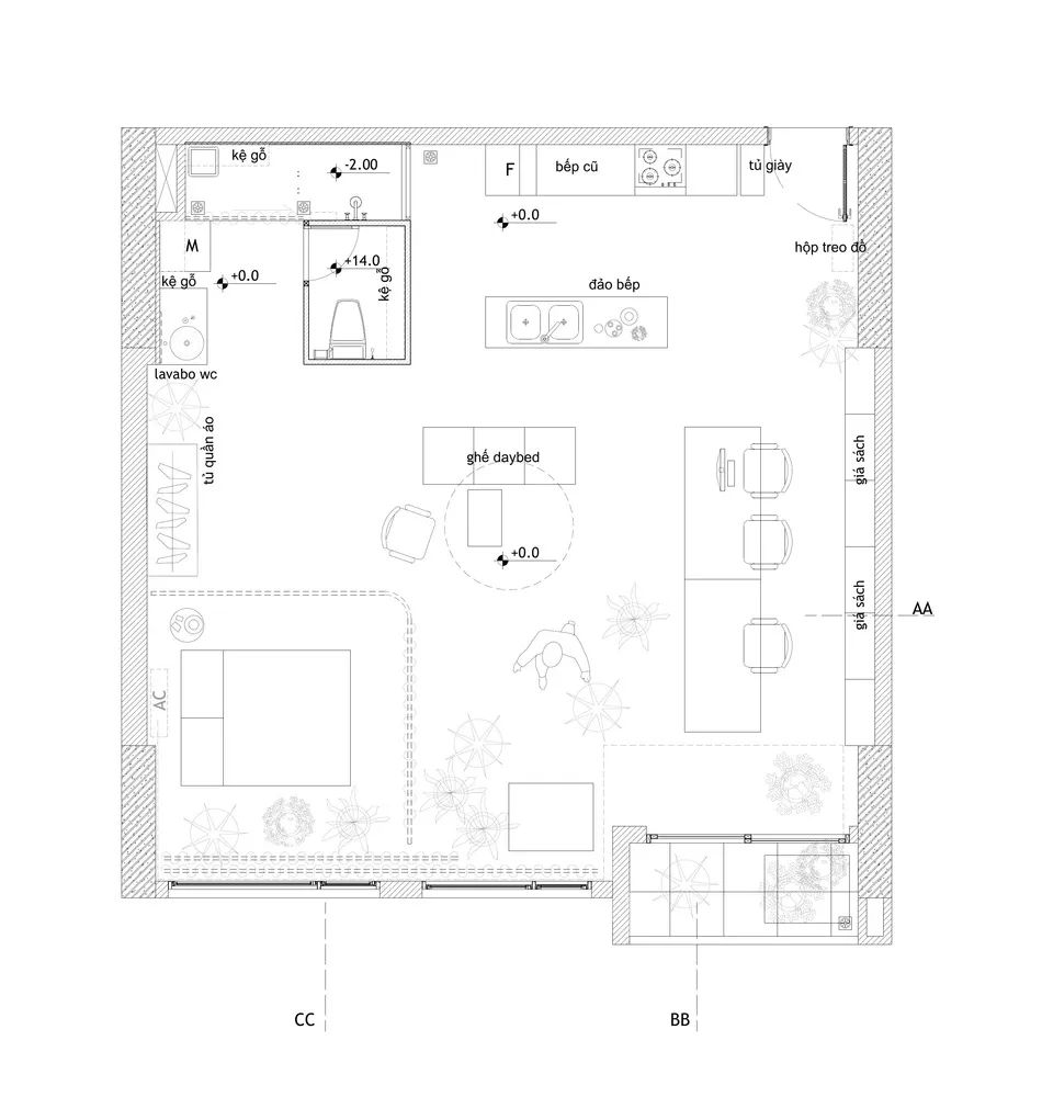
这间公寓位于越南胡志明市,室内面积75㎡,户型方正,完全敞开的格局,没有隔断。
屋主喜欢读书和植物,拥有大量的藏书,他希望自己家是一个简洁、舒适的诗意住宅,于是就有了现在的样子。
房子的格局没有一丝变动,保持着敞开的设计,以家具来区分空间,整个家都是流动、开放的。
室内一共划分成5个主要的空间,中间核心区是客厅,厨房、书房、卫生间、卧室分布在四周。
一进门,右手边是厨房,橱柜采用了不锈钢材质,简单利落,银灰色的金属质感与室内天花板的毛坯、地坪相呼应。
入户门正对着的是一整面墙的书架和一张长桌,这里既是书房,也是用餐区。干净流畅的书架和书桌,很有图书馆的安静氛围~
书桌正前方就是客厅区,客厅没有设置任何娱乐设施,而是布置了一个植物角,家中的大部分绿植都放在此处,像一个小小植物园~
同时,植物也起到了软隔断的效果,穿过“植物园”便是卧室。
卧室简单的只放了一张床、一个床头柜,用透明的帘子与公区隔开~
卧室旁边就是卫生间和洗衣房,空间够大,设计从简。
比起一般的毛坯房,这间公寓要有设计感得多;比起一般的精装修,又显得十分简单。但不得不承认,屋主是有点子审美在身上的。
02
日式自然毛坯风
在日本,许多年轻人也会选择简单装修入住毛坯,但他们设计的“毛坯房”还保留着日式家居的特点。
这间“毛坯房”的设计就来自日本神奈川,相比其他毛坯风,这间毛坯房的设计用到了大量的原木材质,整体气质很接近muji风~
这是一间有房龄40多年的老房子,户型可以说是令人匪夷所思 户型不规则,家中遍布着许多转角;层高较低,横梁较多;但同时,这个家又拥有超大环形阳台。
拆除原有的设计后,房子裸露出了粗糙的混凝土骨架,在设计时,便任由墙面保持着原始粗糙的状态。
为了充分利用转角房间的开放环境,并尽可能的保证室内采光,室内的隔断大部分都采用了原木材质,每个空间之间保持一定的开放和流动性。
家中位于两头的转角空间,设计成了卧室,创造更好的私密性和独立性。
两间卧室的设计风格一致,以原木材质作为隔断,同材质的地台,一张床,一盆绿植,简简单单又舒适。
中间较大的空间是公区,客餐厅和厨房。
客餐厅也是一个不规则的空间,深灰色的布艺沙发靠着落地窗摆放,阳光柔柔的射入,沙发旁一棵鸭脚木自在舒展。
餐厅的桌椅也十分质朴,原木色、线条简单分明,背后是一组餐边柜,同时也是餐厅与厨房的隔断。
家中几乎每一个空间都摆放着绿植,虽然数量不多,但起到了画龙点睛的作用,让略显朴素单调空间瞬间都有了生机。
阳台上也种了绿植,每个空间都能看到阳台迎风摇曳的绿植,内外部空间呼应,整个家充满了呼吸感。
03
热带度假毛坯风
这个案例位于巴厘岛,是一个独栋的别墅,比起前两个案例,造价高了许多~普通人可能没法造一间这样的毛坯风别墅,但室内的设计也有许多可以借鉴的地方。
整个建筑以混凝土和木材作为主要材料,室内硬装是混凝土,家具、软装也以实木为主。
客厅挑高设计,一个悬垂的混凝土板材悬挂在客厅前方,沟通了下层的餐厨区与客厅。
一棵高大的棕榈树和量天尺相呼应,一张吊床漫不经心的挂着,海岛度假风情扑面而来。
侧面用双层玻璃及落地窗代替墙面,让户外的阳光、微风、植物都能钻入室内。
餐厨区是完全开放的设计,厚重的木质橱柜、餐桌凳,搭配石材,充满了野兽派的美感。
从家中的任何一个角度,你都能看到满眼的绿色,或许是一盆随意垂挂的绿植,或许是窗外蔓延的绿,绿植的存在柔化了坚硬的混凝土结构,给家带来不一样的度假氛围。
混凝土作骨,植物为魂,让“毛坯风”从一种无奈的自嘲之举,变成一种可以有审美追求的新的设计风格。
看完这三个“自然毛坯风”,你喜欢上这种设计了吗?
客服
消息
收藏
下载
最近




























