查看完整案例


收藏

下载
Shared Office Space Design
日本共享办公空间设计
“共享办公空间”虽不是新名词。比起传统的写字楼,越来越多的人开始喜欢上共享办公空间的氛围。而日本的共享办公更是他们自身的特色。
下面精选了日本的 8 个共享办公空间设计,彰显个性化和灵活,让你体验不一样的办公氛围感!
01WORK x ation Site 軽井沢
餐厅改造共享办公
这是一个翻新的办公空间,以前曾是一处餐厅。由于项目建筑的周围交通便利,并且绿化面积较大,建筑的总建筑面积约为 274㎡,正适合作为共享办公空间的改造。
▵
建筑平面图
▵
项目实景图
一楼是宽敞的办公空间,整个空间被包裹在树木之中。
建筑的两侧是绿地,所以设计师选择了开阔的落地窗设计,并且用白色的窗帘营造一种温馨开阔的氛围感,把花园里的景色引入到室内。设计师在室内设计了多个休闲的吊椅,方便工作劳累的时候放松休闲。
二楼的改造,设计师尽量减少拆除,保留传统日式房间的横梁,这样的横梁方便安装灯具和走电线,还有很好的稳定和防震功能。
庭院里,设计师设计了一种由六个不同角度表面组成的休闲亭,屋顶、屋檐和墙壁都由板块组成,板块的倾斜角度还考虑了阳光角度和雨水,最后形成一个坡状。
02BASE POINT
纱帘做办公隔断
这是一个位于东京西新宿的共享办公室的改建。建筑周围都是高楼林立,设计师在传统办公空间的基础上进行改造,2 楼主要提供多人的会议室,用白色的隔板,营造一种半开放的办公氛围。
也有适合多人的办公空间选择▽
整个项目的一大亮点在于 3 楼的办公空间改造,这里设计了多个适合个人的小空间办公。
红色的纱帘很有视觉冲击感,保护了私密性的同时,也让整个“格子”空间不那么沉闷。
每个“格子间”就是一个单独的办公空间,可以供租赁。
03KAGU House
木结构预制共享办公
KAGU House 位于北海道的东川町,这里远离城市,周围是一个拥有 8000 人的小镇。
茂密的森林是天然的木材来源,设计师就地取材,在这里造了一个用木材打造的共享办公空间,整个项目包含了厨房,厕所,生活空间以及会议室。
建筑共有两层,除却成本考虑,比起传统办公空间,设计上更加考虑工作者的需求,设计一个自由且轻松,更加便于交流和增加创造力的空间。
进入内部,建筑几乎是木制的空间,减少化学和其他人工材料的使用。
04Digital Nomads
数字社区共享办公
项目位于东京涩谷全新的综合大楼内,这是一个极具未来感和科技感的空间。
杉木制作的家具飘散着自然木材香,蜿蜒绵长的线条,营造一种流动的氛围。屋顶由 534 个灯泡组合而成,在天花板上描绘出优美曲线。
05 Mol.t 联合办公
厂房改造共享办公
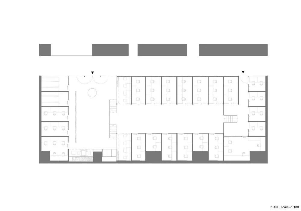
联合办公空间 Mol.t 位于日本福冈,办公室位于一个工业厂房的大楼内,由于场地限制,整个项目被设计成一个适合小型办公空间的氛围。
▵项目平面图
▵
项目改造前
整个项目的原址中,拥有多根承重横梁,设计师将两个、三个和六个人的工作区被安排在一个盒子状的结构中。
还搭建了楼梯,将办公空间分隔成上下两层。
每个工作区的地板下提供了 1400 毫米高的存储空间,尽可能收纳好多余物件,保持环境的干净整洁。
06 Share M-10 咖啡馆式共享办公
这是一个自由而柔软的空间,设计师想要创建一个像“森林”一样的共享办公室。外围的办公空间是传统的圆桌和椅子,设计师将外部庭院的花盆设计大胆运用到室内来。
花盆的材质是木色的,拥有流畅的曲线设计,茂盛的绿植打造出一种森林的自由氧气感觉。
07Uzumasa Tokiwa-so
仓库改造共享办公
Uzumasa Tokiwa-so 是京都市的一家联合办公设施,由 Masaru Takahashi Architectural Design Office 设计的现有仓库改造而成。设计师尽量不改变原本的建筑结构,增加舒适度,运用当地的木材进行空间改造。
设计师拆掉了一些不必要的隔墙和天花板,让整个空间更加开阔,保留了一些传统的木制横梁设计。
办公空间内的桌子、书架、吧台、简易厨房也充分运用当地的木材进行制作,整个空间环境呈现一种温馨的木制氛围。
08武蔵新城のコワーキングスペース
街区式共享办公
项目位于川崎市中原区 JR 南武线武藏新城站北侧,这里曾经是有名的种植村庄,有着悠久的种植历史。后来发展为繁荣的城市,办公楼的周边分散着许多商铺和住户。
设计师在原有的办公氛围上进行了改造,首先考虑在首位的是内部光线问题。
这层楼的窗户几乎全部面向正西方,光靠自然光的话上午很暗。
设计师的目标是通过制造不均匀的明暗,在确保工作面照度的同时,对其他地方的暗度和亮度进行了浓淡处理。
天花板与屋檐水平相匹配,使内外连续可见。那个天花板用一种反光材料全面涂抹,街道的气息反射着被拉入室内;虽然在二楼,但能感受到商业街上的人的移动,又产生了室内颜色渗出的效果。
一些小隔间被设计成了休闲区域,增加了大吊灯,让整个空间不那么昏暗。
卫生间设计
▽
09 SHIBUYA QWS 办公楼内共享办公
SHIBUYA QWS 共享办公空间位于涩谷最繁华的 Scramble 广场 15 层。
这里实行会员制,整个办公空间大约 2600 平方米,包含了公共空间、联合办公区、沙龙、活动空间等区域,还有配套的咖啡厅、厨房、画廊等等。
中部公共空间,联通了各个区域,这里是一个自由活动区域,陈列了一些圆桌椅、矮凳等,尽量营造一种开放的氛围。
与这个公共区域配套的是 CAFE HInT 咖啡馆,主要运用玻璃纤维壁板装饰,在灯光的映衬下呈现柔和质感。公共厨房与咖啡馆的色彩相互呼应,运用灰色防火帘装饰。
向联合办公空间过渡的是一个简约质感的公共接待区域,这里摆放了一些可移动的家具,圆柱形状的流动接待台。
联合办公区域很宽敞,类似传统的办公区域设计。这里是开阔的落地玻璃窗,运用多个长桌形成一个聚集的办公空间。
岩棉吸音板墙壁接缝处可以挂一些小物件。
储藏室门口也是一个灵活办公区域,这里的一大特色是运用了一些可改变宽度或长度的折叠桌,能根据办公需要调整。
沙龙区域的氛围比较豪华,以复古的红木加黑色饰面为主材,营造一个温馨的复古交流空间。
造型简洁的吊灯搭配布艺沙发,有着独特的立体感和清雅格调。
活动大厅可容纳约 200 人,这里配有三个投影屏幕、演讲台及观众席位,可用于多人会议厅以及大型活动使用。
客服
消息
收藏
下载
最近












































































