查看完整案例


收藏

下载
| 成都小姐姐的幸福独居生活!
我要告诉全世界,我会对你负责的。
——十六月工作室
今天故事主角是一位小姐姐,职业是某宝的服装店主,和她一起生活的还有一猫一狗。
屋主有非常棒的审美和品位,最终落地的新家也很契合她的气质,优雅又带点酷酷的感觉,在家中任何角落拍照都很好看。
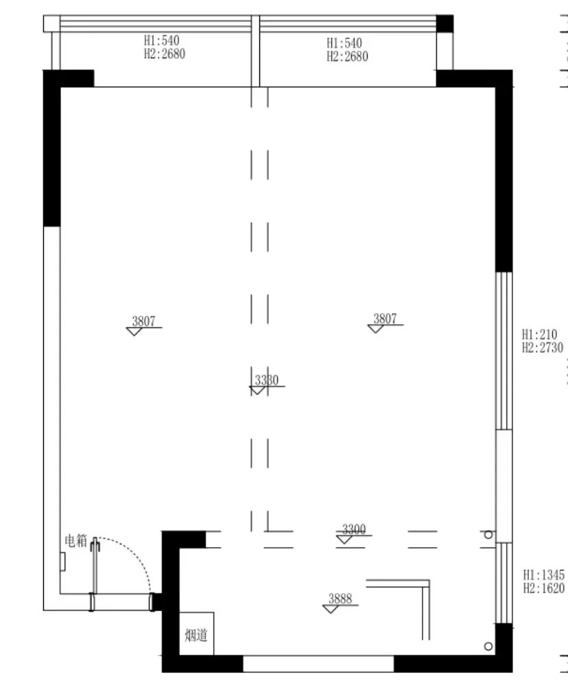
原始户型
原户型是 63㎡的一居室公寓,层高 3.8 米,和大多数公寓一样,空间形状就是如同一个“水泥盒子”,除了进门右侧的一根原始柱,空空如也。
改造前现场图
设计的首要任务,就是规划出生活空间。
1F/2F 平面布置图
空间划分的总体思路很容易理解:利用原始层高优势,搭建出二层空间。一层为公共区域,二层为私密区域,为避免压抑,一层保留了部分挑高空间。
1、一层新建厨房和卫生间隔墙(图中蓝色部分),划分出厨卫区域;
2、为了扩大厨房可操作空间,在厨房外侧新建了冰箱位置;
3、二层搭建出卧室区域,共有 12 个平方,搭建空间占客厅顶部空间的一半。
玄关
玄关做了高矮鞋柜的设计,顶天立地的高柜最大化储物空间,内部可收纳鞋子和家政物品。楼梯下方也是隐藏的收纳空间,门板样式与鞋柜统一,无拉手的设计同时也弱化了柜体存在感。
矮柜避免了柜体太多导致产生压抑,台面可以装点喜欢的艺术摆件,一盏小小的吊灯洒下温暖的光晕,推门的瞬间仿佛一位家人在静候主人归来。
入户地面用瓷砖和地板形成区分,顶面则设计了一个弧形造型,除了起到区分空间的作用,也有一种进入客餐厅时的仪式感。
地板收口细节,黑白棋盘格的地砖,也是近几年的大热门,时尚百搭。餐厅
餐桌选用了可伸缩的款式,向外拉出后,桌子瞬间变大,可容纳 6 人用餐,小型 party 无压力。
四把餐椅都是屋主亲自挑选的,配色与材质相互呼应,样式又各有特点,和谐又丰富层次。
屋主实拍
餐桌也承担着阅读、办公的功能,
竖百叶可以灵活调节光线,
让阳光明亮而不刺眼。
屋主实拍
屋主的汪星人友情出镜~
侧墙的谷仓门是通往卫生间的入口,利用门体厚度打造置物架,便具备了杂志架的功能,同时也是餐厅背景墙,摆上杂志、装饰画,时尚又实用~
厨房
通过设计和重新布局,规划出厨房和卫生间区域,隔墙顶部开了一条小窗,用玻璃隔断,为厨房空间增加采光和通透度。
厨房采用高效的 U 字型布局,从左到右依次是洗-切-炒的操作区,动线做到了最简洁。橱柜右侧内嵌了冰箱,左侧则是设计了洗衣机位置,这样使得家务动线更流畅,提高了生活的便利性与舒适性。
屋主实拍
小白砖与黑色橱柜的搭配,经典大方,柜门上的金属拉手则平添几许精致。
客厅
通过搭建二楼卧室,建梯隔墙,将客厅的区域划分了出来。
客厅旨在满足功能需求的情况下,形成流畅的动线以及明亮的生活空间。
一整排的衣柜满足了屋主收纳需求,衣柜到沙发之间有很多可能性,可以是衣帽间,也可以是运动区。
棕色双人皮沙发和千鸟格单人位,为这个简约空间增添层次。一旁的银色落地灯与餐厅吊灯材质呼应。悠闲的黄昏夜晚,打开灯,窝进沙发,静静地看手机或发呆,都很治愈。
墙面全部采用纯白色彩,增加漫反射将采光优势发挥到最大,从视觉上起到放大空间的效果。没有茶几,两个摞起的收纳箱放在沙发一侧充当边几功能,留出更多空间给两只宠物活动玩耍。
客餐厅的飘窗也是不错的休闲收纳区。
沙发对面也没有安装电视机,在左侧墙面预留了电视插座位置,可满足将来电视使用,也可以用做其他电源的插座。
整个墙面看起来利落干净。
屋主实拍
如今这里已经入驻了屋主的新伙伴。
卧室
卧室色调和全屋保持一致,干净的白墙搭配木地板,温馨清爽。屋主觉得睡眠空间不需要太花哨的装扮,简简单单的更能营造睡眠氛围。
床头竖向开了一扇小窗,让空间更有呼吸感,也与外面客餐厅空间有了互动。
卧室进门右侧做了一整排衣柜,确保收纳空间充足。此外,也不放过任何收纳角落——床头设计半高置物台扩充储物空间,可以摆放助眠的香薰、小音响等等。
这里还暗藏着暖光灯带,夜晚打开,便是温暖静谧的小世界。
卫生间
在卫生间的布局上,通过新建墙体,实现了浴室干湿分离。洗手台、马桶和淋浴区都有充足的间距,提高了使用的便利性和舒适性。
一人居的自由惬意无需多言,在这不被打扰的小世界里,可以完全按自己的节奏安排生活,偶尔孤独,还有一猫一狗相伴。
这个简单清爽的小家,你喜欢吗?
房屋信息
项目地址:四川成都
使用面积:63㎡
项目总花费:16w
客服
消息
收藏
下载
最近

































