查看完整案例


收藏

下载
让空间开阔又好用,居然不是拆墙而是建墙!设计师用一面矮墙就打开了全屋的空间,在通过软装和色彩的搭配让 60㎡的家变得像中国园林一样移步景异,全屋能欣赏不同景色。
使用面积:60㎡
户型:1 居室
装修花费:20W
房屋坐标:四川 成都
屋主是从事游戏动画设计的女孩,也是一名敬业的铲屎官,需要在房间里有自己的工作区以及猫咪玩耍的地方。
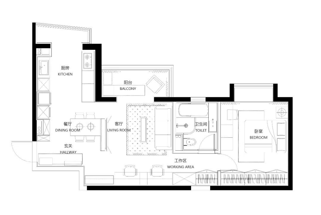
这套房子格局比较特殊,历史也比较久。当时成都地产行业百花齐放时,这个楼是按照上下层复式分两个产权售卖。现在买来其中一层,就在 60㎡的一居室存在了两个卫生间,变得很奇怪。
改造前后的房屋结构对比
设计师改造
拆除了门口的卫生间作为玄关、鞋柜和洗衣区域;打通餐厅、厨房和客厅,靠半隔墙作为洄游动线中心和区域边界;工作书桌、收纳柜和卫生间共用走道;阳台设置宠物空间,并预留划船机位置。
改造后平面图
一步一景,矮墙,你是我的神!因为客餐厅区域面积不大,如果完全分割为客厅和餐厅就会更加拥堵。但是如果全部开放,从玄关进来就能将室内看得一览无遗。设计师在房间的中央放置了一个矮墙,正好可以充当客厅的电视墙,也能在分割空间的同时让视觉感受更开阔,同时还能起到遮挡玄关视线的作用。
围着矮墙和旁边的餐桌,结合餐桌本来就需要通道的特点,在这里形成了一个新的洄游动线,将全屋的功能区域都串了起来。
玄关进来的地方,除了矮墙挡住了客厅,卧室的过道也做了偏移,保证卧室的隐私。
鞋柜转角的柜子一直延伸到厨房,包含储物区、洗衣烘干区和冰箱,一体的白色也让这面柜体形成一个完整统一的平面。
再往里面是白色的双一字厨房,操作台贴两边墙面,让尽端自然光线全部照进室内。
水池上的开放式隔板用于日常收纳,让前面不会太多柜子阻挡视线。
餐厅和客厅只有一墙之隔,矮墙的餐厅面做壁龛用来储物,客厅面用来放电视。
在客厅沙发墙装饰了一面画墙,中间还放了一面镜子。这面镜子在视觉上增大了空间的延伸,同时让画墙有了一个可变的画作。你站在不同地方,看这面镜子,就会有不同的景色。
“这个镜子中就包含了我国传统园林景观所说的一步一景,”设计师说。坐在沙发上,可以从矮墙旁边看到玄关进来的客人,但是从玄关看客厅是不方便的。房间两边景色不同已经不是出现了第一次。
从餐厅看向厨房是一片白色,反过来从厨房看回来就是层次丰富的各种材质的家具以及尽头的绿色墙壁。工作区和客厅也相互借景,形成开放的又能放松又能专注工作的一体格局。
工作区使用桦木板,是设计师自己画图现场制作的,桦木板的自然花纹搭配中古柜,颜色和纹理也更加丰富。
围绕着房间中的半墙,绿色的工作区、挂画的客厅、木色的餐厅和白色的厨房连成一体,有相互把对方作为自己空间的景色。一个矮墙就解决了丰富和开阔两个问题。
不一样的北欧,追求的是一种松懈的家居状态。风格上设计师选择的北欧风,但并不是我们常规看到的性冷淡北欧风。首先是因为北欧风在空间气质上更加松弛,不会让空间过于紧绷,回到家就有放松的气氛。
其次,在色彩和材质上北欧风其实是很包容的。我们平时看到的原木色搭配白墙,是北欧风的一种。
设计师说,北欧风应该叫做斯堪的纳维亚风格,是斯堪的纳维亚半岛也就是北欧三国的现代主义风格总称。
用金属搭配木材是这种风格的一个标志,这种风格和包豪斯发展以及欧洲古典文化发展密不可分,所以在设计上采用包豪斯和欧洲古典的一些元素也没有不和谐。
这样的风格从一进门就能看出来,金属的灯具,经典的换鞋凳以及地毯,设计师就是要打造一种不规整的松懈感,让人一回家就能放松下来。
同时,设计在玄关右侧墙边涂刷了卡其色墙面,和房屋其他位置的白色形成对比,增加视觉层次。
从餐厅看向工作区,这个卡其色墙面的第二个作用是作为绿色工作区的色彩过渡。屋内只有工作区这面迎光面采用了绿色,反而背光和其他面用了白色,为的就是调和全屋光线的对比度,让整个屋子处在同一种亮度下。
软装上,厨房到工作区这一条视线里,高低不同的吊灯,色彩不同的木头,各种材质交融在一起,给人一种在欣赏丝竹管弦揉在一起的交响乐的感受。
沙发背景墙也不是单纯的平面画作,还搭配了三维的雕像插花和刚才说过的镜子。露营风格的茶几、双层花色地毯、宜家的沙发再加上各种样子的抱枕,有一种欧洲庄园的客厅风格。
工作区域这一抹绿色还延续到了卫生间,让整个屋子的元素统一。
卧室的墙面和灯具则是和玄关的浅卡其色呼应,制造一种相对较暖的空间。
床品也是全屋颜色的延伸,让整个屋子的风格更加统一。
给猫主子设计
做一名尽职尽责的铲屎官。因为家里有猫猫,所以一定是会有一些宠物的专属设计。这个家的猫咪会玩水,屋主又想要木地板的效果,所以全屋都补了木纹砖。
木纹砖就是印上木头花纹的瓷砖,耐磨和防水都比木地板要好,也不怕猫咪到处挠。在阳台设计师专门在墙上打造了猫爬架,由于是向上延伸的攀爬空间所以也不会影响日常的使用。
下面还预留出来了屋主的健身区域,猫猫在这里爬梯子,铲屎官在这里练划船机。旁边搭配的休闲躺椅,可以让铲屎官一遍晒太阳一遍撸猫。
宠物设计不仅要考虑动物,还要考虑人宠共居的和谐,如何满足宠物功能同时不影响空间正常使用,最好还能让宠物和人互动。
在预算上,轻硬装重软装,硬装最大的改动就是拆除了原户型门口卫生间的墙面。全屋的空间分割仅仅用了一个矮墙,风格气质又全部由软装去组合,最好就能达到很好的效果。编辑/白猫 图片/设计师提供 参考来源:@iflife
客服
消息
收藏
下载
最近





































