查看完整案例


收藏

下载
| 慵懒木屋,珍藏私物,甜蜜婚房就该这样装
你理想中的家是什么样子的呢?
温馨、有格调,亦或是舒适大气……
相信关于家的模样,在买房后的无数个夜晚,我们都曾在脑海中构想,本案屋主也是如此。
在初期沟通时,就明确向设计师表达了需求。女屋主希望能喜欢收集各式各样的小物件,必须要有空间来满足她的收纳需求。男屋主更在意空间上的格调,不想家里太原始,最好能更加通透,各个空间互动性强。
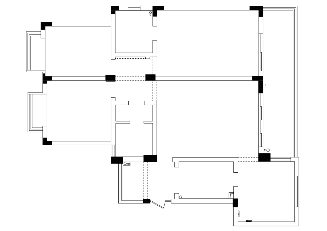
原始户型
设计师基于这些日常的生活需求,用过硬的技巧经验,结合业主的经历和习惯,让设计回归到本质状态,在家中还原最为真实的生活,最终打造出这样一套 147㎡的温馨宅,快来一起看看如何改造的吧!
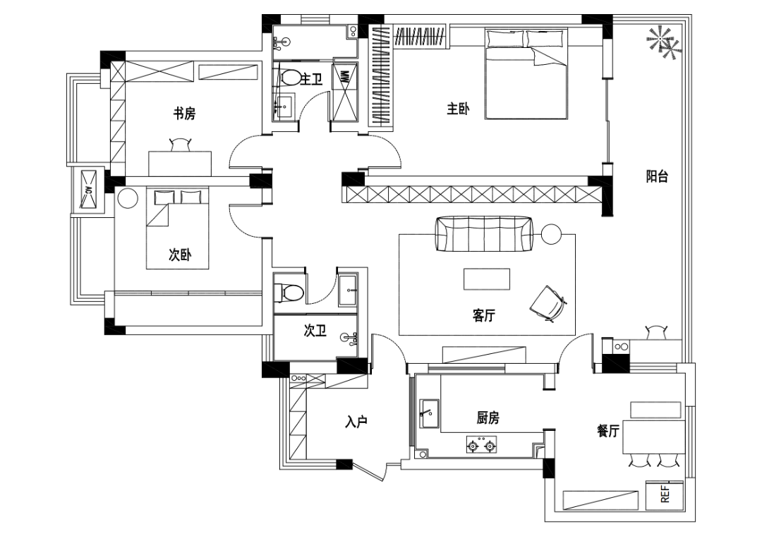
平面布置图
1、入户增设门窗,保证各个空间的独立性;
2、阳台封窗处理,确保空间安全且通透;
3、拆除次卫部分墙体,将空间纳入公区,动线流畅;
4、客厅定制整排柜子,满足日常收纳储物;
5、挪移主卫门,原位置设计衣柜,完善主卧功能;
玄关
相对狭小的入户空间,较为闭塞昏暗,
设计师借用玻璃门窗将自然光线引入室内,
使得进门就有通透敞亮的视觉感受。
从实用角度考虑,将一组换鞋凳很好的规划于此。再摆上几件小物件,旁边放置书架,阅读、闲谈,看窗外风景…休闲娱乐都可在此完成,好生意趣。
精致的生活不在华丽的配件,而体现在对生活细节处的精心打理。原本略显空白的入户墙面,女屋主挂置朋友送来的简约版画,对生活的热爱气息扑面而来。
玄关看向客厅
视觉由外入内,另一空间格调若隐若现。
客厅
相比于常规用复杂石材、乳胶漆来作为背景,这件屋子显得极为独特有格调,书香气息呼之欲出。
最开始规划的时候,屋主两人就表示有藏书的习惯。
考虑到日常阅读拿取及收纳归置,设计师没有选择单一空间作为书房来解决难题,而是贴墙定制一整面通顶的柜子作为沙发背景,既保证美观性,也让功能性发挥到极致。
软装搭配上选择了较为温馨舒适的木质产品,不论是小置物架,还是椅子沙发,都凸显出浓浓的温馨之感,与书架浑然一体。光线映衬下,未来关于两人的美好必然如约而至。
客厅另一面也是依照屋主的需求,打破规划电视的常规操作,两人更强调互动性,如何展现呢?经过多次沟通,设计师和屋主一致决定:开窗。
墙体进行合理拆砸,透明玻璃衔接客厅、厨房,周围墙体包裹以同色系的木质板材,温馨大气。周末闲暇时光,看书、做饭的身影,都能透过窗户抵达两人心中,美好大抵如此。
可拼装的置物架也给了空间许多可能性,没有厚重压抑的体块感,简洁大方,使用方便。
窗外的美景也被规划在家中,整面落地窗设计,苍葱绿意尽收眼底。
因此,在规划阳台区域时,设计师更多希望表达治愈、放松之感。
摆放复古的长凳,搭配一些绿植,简简单单,但又颇有格调,妥妥的理想家。
幸福的展现方式有很多种,阳光明媚时,搬一把椅子晒晒太阳,在此处恰是一种别样的体验。餐厅男屋主对于空间要求温馨,具体来说,就是木质元素多一点,这在客厅、餐厅都表现的淋漓尽致。
餐桌、餐边柜都选择了樱桃木,连吊灯都是妥妥的复古格调。相比于日式较为明亮的原木色系,更多了一丝回归生活的温度。加上屋主精心挑选的各类物件,又给空间了更多想象,满满烟火气。
木质餐桌上摆放的小油瓶,亦或是琼浆玉液酒,无形中提升了空间的温馨感。
作为空间里最为惊喜的存在,这一处的设计获得了屋主两人的一致好评。阳台和餐厅区域衔接处,借用窗洞,形成了有趣的互动空间,且保证房屋通透性。
最重要的是,另一面可作为临时工作区,美观性、功能性、互动性,三重在线。厨房
厨房没有过多复杂的设计,一切围绕实用进行发散,满足日常烹饪。设计师规划了一组地柜,让空间得到释放。在沟通时,屋主说到之前做饭总脖子疼,这一问题也通过定制 90cm 地柜得以解决,真正的从屋主需求、习惯出发进行规划。
主卧卧室是空间内最为私人的场所,舒适一定是第一要义,而这又关乎色彩、材质的运用。
因此,整体规划时,硬装软装都没有选择过多复杂的元素。墙面延续整屋空间格调,木质半墙设计,配以大白墙,加以灯带设计,组合搭配,温馨治愈感油然而生。
无床头的背景板设计,从视觉上更显简洁,营造极其轻松的氛围,方便屋主休憩,卸下疲惫。床头摆放的小物件,远看像是一幅画,近看似托盘,也被当作调节卧室氛围的饰品点缀空间。
次卧
因日常仅夫妻俩人居住,次卧偶尔来客使用,设计师在规划次卧时,更强调储物功用。收纳区和睡眠区巧用樟子门分割,极具日式意蕴的同时,又让空间更为美观。
对于年轻小夫妻来说,希望家各个角落都独有韵味。选择了形状个性的吊线灯,搭配多种功用的置物架,想追求的氛围感一步到位。
将甜蜜小夫妻的喜好全部搬进家里
让理想照进现实,设计之路也告一段落。
照片定格了关于理想家的每一幕,
但新的故事未来还会继续生发。
那么,
这套小夫妻的家,
对你来说有装修启发吗?
房屋信息
项目地址:成都
使用面积:147㎡
项目花费:50w
设计机构:成都拾光悠然设计
客服
消息
收藏
下载
最近

























