查看完整案例


收藏

下载
这个女孩的家,你也许在热搜上见过,也许在家居杂志上看到过。很多人会误以为是国外博主的家,但有越来越多人喜欢正是因为它打破了这种刻板印象——
其实它位于浙江的一个小城,是普通楼房的一楼边套,屋主也并非富二代。它完全是我们触手可及的。
建筑面积:140㎡
使用面积:110㎡
户型:三室两厅
装修花费:50W
坐标:浙江 嵊州
房屋信息
屋主路问是一名 90 后平面设计师兼摄影师,曾在杭州读大学、工作。自由随性的她很快发觉自己不适合做一个朝九晚五的上班族,于是选择创业做一名自由职业者。
与众不同的是,她并没有留在大城市租下一间办公室,“我的工作只需要一台电脑而已”。于是她回到家乡买房,自己设计、全程参与装修,爸爸和叔叔叫上熟人一起来帮忙装修,花一年时间打造了一个完全符合自己想象的家和工作室。
这套房子层高有 3.15m,采光充足,看起来像是别墅,其实是位于一楼的东边套。房前正好是别墅区,三面采光没有高层遮挡,屋主还能独享房前屋后的绿化,春看樱花、秋赏枫叶。路问在采访中说:“越来越觉得住一楼太好了,不仅能免费拥有前后花园,还比高层便宜!”
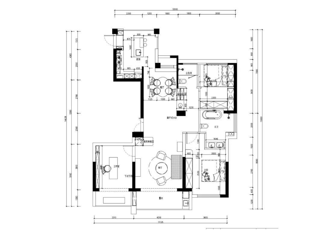
原户型承重墙比较多,路问并没有对空间格局作大改动,而是通过局部的改动,调整空间布局。
改造后户型平面图
改造重点:
- 改变客卫进门位置,做敞开式洗手台;
- 借用卧室空间,将卫生间扩大至 9㎡,放下大浴缸和双台盆;
- 将一间卧室改为书房,作为工作区域;
- 9 扇落地窗 9 道拱形门洞,全屋极致通透敞亮。
9 扇窗景各不同
9 道拱门全屋通透
推开路问家的门,最先映入眼帘的是客厅与餐厅之间一根特别设计的承重柱。作为公共区域和卧室、卫生间的交通枢纽,它像一颗伞形树,撑起了整个家,四道拱又将视线延伸到不同空间。
视线右移就是全屋色彩最丰富的地方——客厅。
屋主考虑到南方城市的潮湿气候,并且还是一楼,
全屋墙面选用了吸水性好的硅藻泥,淡淡的乳黄色让家显得很温馨。
硬装简约,软装用色却大胆跳脱,再用绿植点缀在各个角落,家里的每一个角落都是美丽的风景,360°无死角的好看!
因为太喜欢通透感,路问把阳台都包进了室内,不仅扩大了室内面积,还保证了充足的采光。
为了避免阳光太刺眼,路问还加了香格里拉窗帘,可以柔化照进来的阳光,也能保证隐私。
她家 9 扇窗,几乎都是大大的落地窗,四时景色也不同。将客厅与阳台打通后,墙角用弧形过渡,不做吊顶和花边,视觉上从地面延伸到天花板,非常连贯。
▲玻璃砖都是路问自己搬进来,爸爸贴的。
阳台一侧是她养的龟背竹,玻璃砖是新砌的,作为客厅和书房的隔断。
猫咪们的猫爬架也装着这里,给猫主子最好的阳光浴体验。
进入书房,最吸睛的就是书桌边的红色收纳柜,和书桌上方的红色吊灯相呼应。这间房原本是采光最好的一间卧室,被路问改成了工作区,现在也是她最常待的地方。
阳台是她的植物角,角落里种满了她喜欢的植物,秋海棠类和海芋类居多。工作累了,坐在这里看看植物很快就能恢复元气。
大大的落地窗也把室外的景色都揽进书房,坐在这里晒晒太阳也十分惬意。
走出书房,从客厅看向餐厅,拱形门洞将视线贯通到餐厅和厨房。
客餐厅之间有一个很妙的设计是从客卫移出来的水槽,刚好跟承重柱衔接。
卫生间干湿分离的同时,也方便吃饭时洗手。
餐桌边上做了嵌入式壁龛,用作餐边柜。但它其实也暗藏玄机,路问做的是双面柜,面向餐桌一面主要用作展示,上层放上好看的瓶罐杯碟,下面储存红酒。
柜子背面则是正常衣柜深度的储物空间,上面存纸巾,下面放衣物。
▲冰箱选了和墙面接近的奶油色
路问梦想中的厨房一定要有个中岛和大大的水槽。岛台是她亲自参与设计的,立面用瓷砖手工拼贴而成。台面部分以岩板代替大理石,更易打理。大水槽也使厨房的使用无比便利。
厨房窗外是樱花树,路问经常会在厨房做一些插花作品。
餐桌上的鲜花也随着四季流转。
借用卧室空间扩大内卫,实现大浴缸和双台盆的梦想。
路问将对通透空间的执念贯彻到了卫生间,她的主卧内卫扩大后有 9㎡,并且不设门做成敞开式。
卫浴间扩大后轻松容纳了大浴缸,窗外就是枫树,浴缸旁还摆放着大颗绿植,路问可以在这里享受着被大自然包围的“户外”沐浴体验。
▲路问做双台盆的冲动之源
双台盆的构想源自她刷到的一张网图,本来想按照图片把双台盆做成绿色,效果会非常惊艳。结果没找到合适的石材就换了现在的米白色,反而让这间屋子有种安静的气质。
浴室地面和主卧做了不规则拼接,波浪形带来了一种沙滩和海浪的感觉~看起来像不像是浴室的水流了出来?但这种有趣的效果非常考验师傅的工艺水平。路问爸爸找到了一位专门为上海老洋房施工的师傅,师傅不仅工艺水平高,还非常细致且耐心,一点点切割、打磨瓷砖和地板,最后拼接效果才达到了严丝合缝。
卧室衣柜也都是木工打的,因为她从头到尾参与了装修,所以并没有遇到需要返工的情况,每一步都是事先沟通好细节再做。
主卧和次卧配色都延续了墙面的奶油色,简单温馨,非常适合入睡。
主卧外种了绣球花,夏天花团锦簇。落地窗原本是个飘窗,为了拉近和室外的距离路问干脆打掉了。
小卧室既是客卧,也分担着储物功能。地板做了鱼骨拼,为小空间带来了层次感。
▲客卫的小砖铺贴同样很考验师傅手艺。
家里几扇门都给了卧室、书房和客卫这几个需要隔音的私密空间,如果不是考虑爸妈偶尔过来,路问可能全屋只会留一扇入户门,其它的统统敞开。
满屋中古&自制家具
处处体现屋主个性
路问的爸爸是名木匠,她从小就跟着爸爸在木屑里玩耍,也许是受了爸爸的影响,动手能手很好。加上从小学画画,喜爱艺术相关的东西,多年的审美积累使得她对家里的软装要求也很高。
路问家的软装有很多亮点,很多人是因为客厅这幅红绿撞色的画而记住她家,也有些人对屏风印象深刻到处找同款。其实这幅挂画是出自路问之手,画中是她家的三只小猫;最吸睛的屏风是法国 1940 年代的一款中古家具,和沙发一样都是她在装修之初就开始搜寻的,可遇不可求。
后来她又创作了一幅黑白装饰画,放在客厅也很搭,家的气质也变得温柔内敛起来。
她家的椅子也大多是设计师款,这两把中古椅的拱形靠背正好和背后的两道拱形门呼应。棋盘格茶几看起来也是复古风,其实是路问在一家少年兴趣班看到的国际象棋桌。她用非常诚恳的态度请求老板卖给了她,小桌子完美地融入了复古混搭风的客厅。
阳台一侧墙垛里是木工打的家政柜,路问在柜子里藏下了洗烘一体机。
她比较喜欢清爽的感觉,没有在阳台做晾衣杆,需要晾衣服时就用 FOPPA 章鱼晾衣架,颜值高又好收纳。
▲家里每个角度都能拍出大片感
客厅的展示柜和餐厅的餐边柜都是路问自制的实木多斗柜(自己画图,木工打),被很多网友笑称是中药柜。
绿色棋盘格台灯也是她自制的,底座是师傅手工雕刻,灯罩是路问在普通棉麻灯罩上画上了绿色格格。
路问家最贵的一件单品颜值要大于实用性,就是书房这个塑料+钢组合成的旋转抽屉。路问在 casa casa 上海的橱窗里一眼看见它,就立刻想把它搬回家了,放在书房就是让人挪不开眼的存在。
这两把椅子也可以说是中古的,因为它们年龄比路问都大,只不过不是设计师款,也不是某品牌的,而是“爸爸牌”。
书房的高颜值展示书架也是木工师傅打造,独此一家。虽然路问家有很多“逼疯”装修师傅的设计,但都凭着爸妈多年积攒的人情和她全程参与的真诚而化解。施工过程非常艰苦,但装完的成就感是语言无法表达的。随着对她家的逐步了解,小编才解开了心里最初那个疑问:为什么年轻人都在大城市内卷时,路问却有胆量回到家乡?因为她本身的能力不会被局限在某个城市,也因为家人会给她最大程度的爱和支持。编辑 / 阿寺图片/ 屋主提供参考来源:@?LUWEN
客服
消息
收藏
下载
最近























































