查看完整案例


收藏

下载
| 家的归属感 |
| 是藏在人间烟火里的温柔 |
今天要介绍的案例,是格局复杂的顶跃户型,也是一个三口之家。
女主人喜欢简美风格,偏好色彩和精致的搭配。
设计打破了原有格局,重新构建空间,功能重新分配,让空间与居住者紧密相连。
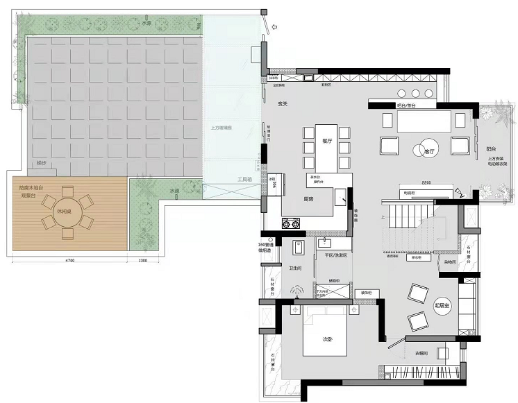
▲一楼平面设计
图
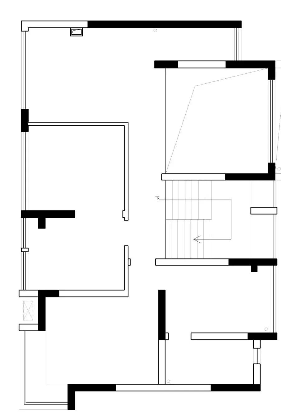
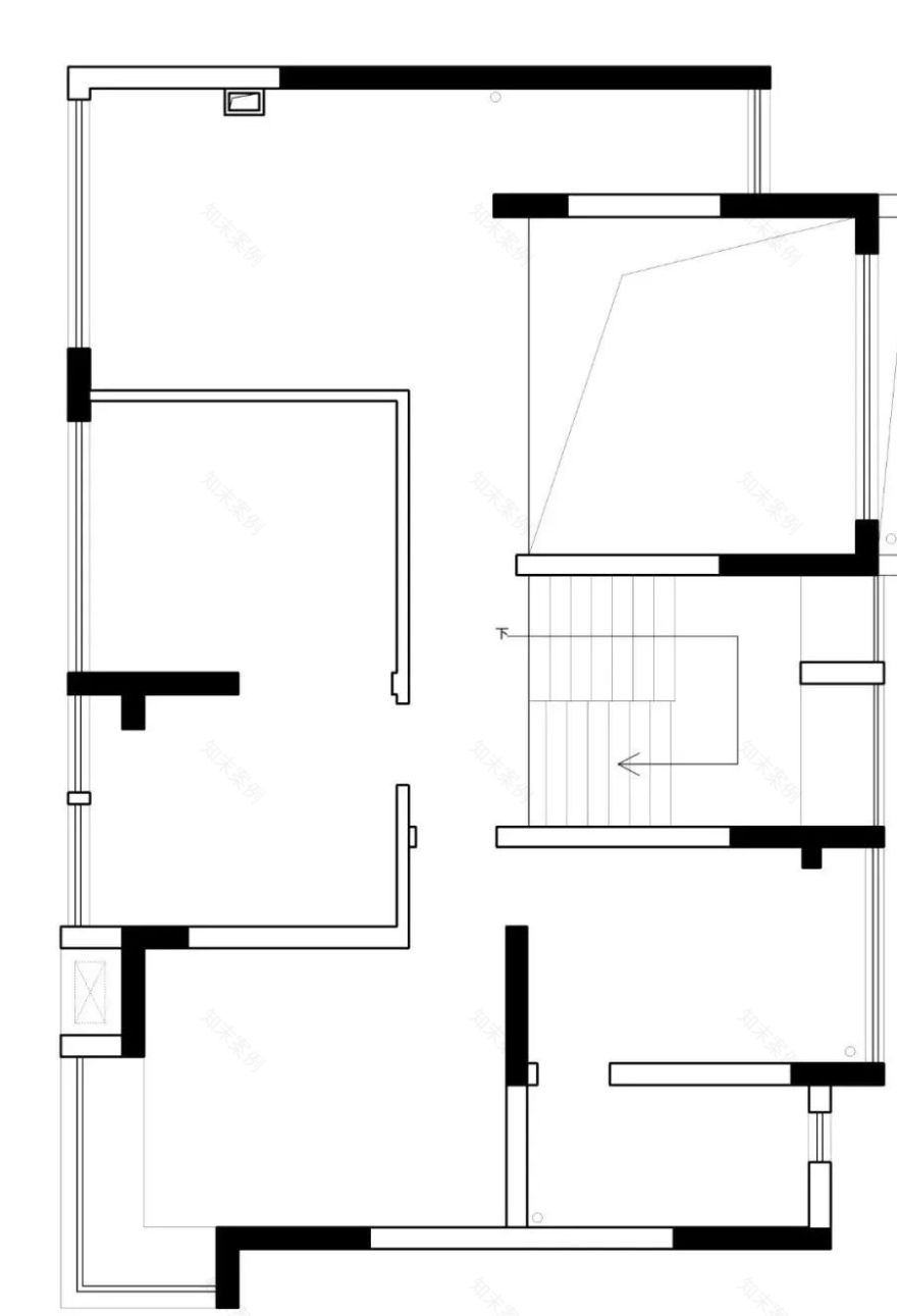
▲二楼平面布置图
空间特点:
• 户型方正,采光佳,但每个空间狭小;
• 楼梯间太大,面积过于浪费;
• 厨房太小,满足不了大厨房需求。
屋主需求:
• 女主喜欢烹饪,想拥有大厨房空间;
• 理想有一个独立衣帽间;
• 男主需要在家办公,需要独立书房;
• 屋顶有一个很大的露台,不想设计过于复杂,满足花草庭院、休闲空间即可。
▲二楼原始户型
图
▲二楼平面布置图
设计亮点:
•一楼分成四个功能区域,客餐厅一体,会客区、客卫、老人房以及露台;
•将入户门改为从露台进入;
•将厨房移至卫生间位置,厕所后移,设计开放式厨房;
•楼梯间与电视墙采用玻璃材质做隔断。
餐厅
淡雅高级的灰蓝色,自带 ins 风滤镜和浪漫气质,贯穿于餐客厅整个区域,橱柜与墙体选择不同色系的蓝色,搭配爵士白墙砖,营造干净、精致的烹饪空间。
女主人喜欢烹饪,占用一个卧室的位置,得到开放式厨房,开放式厨房+岛台设计,完全满足多人共享烹饪乐趣的需求。
岩板材质的餐桌,简约低调,质感细腻、轻盈,灰色+草绿色的温和自然,配上同色系皮质细腿餐椅,黄铜小吊灯,空间立显轻盈精致。
客厅
延续了入户餐厨区的整体基调,整个客厅空间明朗清爽,又带有复古精致的小资情调,丝绒材质单椅,一蓝一绿相互对话,女主偏爱的落日灯增加一丝暖意,营造清冷空间的氛围感。
客厅这个视角完美望向入户区。入户进来是整壁顶天立地收纳柜,满足日常收纳,完美归纳隐藏凌乱。
柜体延伸到客厅后方小吧台处,收纳之余,藏露之间,完美增加陈列摆件的功能。从客厅一角望向吧台背景处,也不会显得沉闷。搭配可爱的人物装饰画,与吧台桌布大搭配,让空间多一份灵动、趣味。
承载休闲、阅读等功能的小吧台,是由原本狭长的阳台打掉改造的。光线极佳的舒适小角落,偶尔作为品酒区或工作区也毫无压力。
电视墙非承重墙的一部分,以及会客区改为长虹玻璃做隔断,垂直条纹能在视觉上拉长层高,增加空间的通透感与采光,将空间分割又具有互动性。
休闲区
楼梯后面的房间,改为了开放式会客区,借用楼梯面积,让原本狭长的空间瞬间变宽敞通透。深色系搭配沉稳、内敛,单人沙发与卡座搭配给人自由放松的感受。
楼梯
连接一层二层空间的楼梯处,都离不开精致感,黑色扶手搭配金属栏杆,复古感十足的装饰画,玻璃球吊灯点亮了空间活力,小小一隅空间,充满复古美式的精致感,移步楼上目之所及的“风景”,都是一种散发着美好的享受。
起居室
二楼治愈色调的起居室,作为私密空间的连接点,尽可能地给与空间舒适惬意的状态,让家人之间的交流更亲密,也让二楼的功能性更完满。
白色壁炉、造型别致的黑色茶几,红色落地灯,复古调调说来就来,考究的配色和精致软装,散发着一股难以抗拒的轻熟魅力。
卧室
墨绿色背景墙自带复古气质,搭配深灰床品,呈现古典气质。轻盈时尚的主卧空间,细节之处,无一不体现主人精致的生活质感。
女儿房
女儿房卫生间太小,借用了卧室面积,形成一个凹槽,于是用了两个斗柜装饰,精致实用,颜值在线。
豆沙粉背景墙搭配深灰色丝绒床,浪漫少女心,久看不厌。冷暖相宜的软装配搭,让空间更有“小公举”的气息。
衣帽间
与一楼柜体颜色相呼应的衣帽间,灰蓝色沉静内敛,都流露着精致。一边为顶天立地的衣柜,一边是开放式格子,超强收纳能力完美满足一家三口使用。临窗书桌既可以是女主的化妆台,也可以作为男主的临时工作区。
次卧
简约舒适的次卧空间,满足偶尔来住的父母或朋友。光线极佳的空间,只需简单装饰,同时也给未来留有更多改造可能性。
卫生间
干净明亮的卫生间设计,简单,耐看,黑灰蓝的色彩搭配,也与其他空间有着相互对话。
露台
入户改为顶楼花园入户,
一回家就是自己亲自养的花草,
真的归属感和幸福感爆棚!
防腐木铺地面,一张桌子四把椅子,
简单的布置,供一家人休闲娱乐,
种花品茶,小型聚会,
平凡生活的浪漫情愫,
在这个阳光露台都可以实现。
家的归属感,是藏在人间烟火里的温柔,不论居住的空间是精致复古风,还是质朴简约风,一家人在一起的生活,都能把琐碎的画面变成幸福风景。房屋信息项目地址:重庆房屋面积:160㎡设计机构:PINK 瓶子设计
客服
消息
收藏
下载
最近















































