查看完整案例


收藏

下载
谁说有个院子就得住郊区,大都市北京的核儿就是院子堆起来的。今儿个要讲的这个房子,就在北京东城的胡同里。夫妻俩住腻了大高楼,就买下了这套一百多平的小杂院。地方虽小,却让设计师给切出来三个小院,屋里屋外、从下到上四处都能观景,在里面过日子如同游山玩水了。看腻了公寓大平层,今天小编就带您看看这个老北京的小院如何藏下三处小花园。
面积:100㎡
户型:一居室
装修花费:45W(加建+硬装)
房屋坐标:北京东城
#01 还真不是四合院
地方小需求多只能让院子裂开
夫妻俩人想在这个杂院中体现老北京人的闲散生活氛围。最好能做个四合院,打开门就得看见景儿,院儿里还得敞亮。而且,喝茶、会友和藏书这些地儿都得要顶好的舒服。
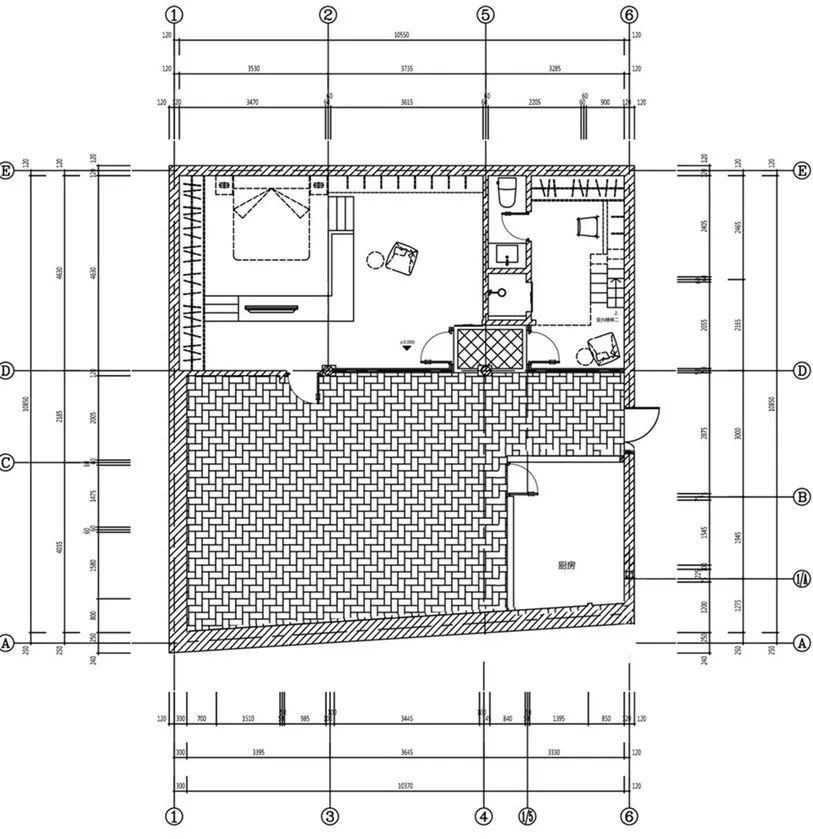
虽说小院子坐落在老北京胡同中,布局却和四合院毫不相干。
△ 改造前房屋布局
这个院子早已被之前的主人改的面目全非,只留下了一明两暗的北房还是传统结构。
院外两个连着的坡屋顶山墙是之前的主人改的,好像要做中国传统勾连搭结构但又做的不合规范。院外两个屋顶,院里只有一间屋子,这个外立面就是个摆设,又不符合传统又没有什么实用价值。
院子只有 100㎡,还是一个直角梯形,南侧墙是一个向内偏的斜边,根本没有办法放入一个四合院。既要满足屋主的生活需求,又要传统院落的风格,还要不破坏传统建筑和城市肌理,设计师询问古建专家后决定使用元代的“工字型”布局。保留北房,并在南边加入一个倒 T 字建筑,连廊让院子裂开,分出了一前一后两进院,建筑也分出了一动一静两间房和一个可以聊天议事的过廊。
除此之外,南边新房利用限高规范,在屋顶做了观景平台,让主人可以登高望景,打破平房无阳台的限制。
#02
门口就得改,迎接归家人的大门要温馨。规划好了布局,首先要规整的就是院子不伦不类的外墙,两座山墙本身就有很多问题,更重要的是它们压在本来就矮小的如意门上,像门口站了两个孔武有力的保安,把人拒之门外。
将南侧假屋顶拆掉,如意门换上浅色老榆木,再用浅灰的水刷石做传统西洋门楼的门框,搭配门前左右的两个传统门墩。
新的外墙,通过更加细长的深色青砖、浅灰色的水刷石门楼和不加修饰的老榆木门板,在保留传统同时,又让大门多出了迎接归家人的温暖感受。
#03
传统建筑北房
同一黑色的不同感受
推门进入外院,从正对的玻璃房茶室可以隐约看到对面的内院,空间通透首先可以让人感到宽敞,其次就是有传统院落的层次。沿着草地上的青石板,右转进入客厅。
客厅是院子经历史后唯一保留下来的传统建筑,设计师将中国传统的木结构全部漏出来,提升空间的古朴色彩。天花板上安置两排天窗,解决困扰胡同平房已久的采光问题。
进门右侧一面的黑色烟熏橡木书架墙,既能放书又能放鞋,还能放入中央空调。黑色书架上收藏屋主的藏书和陶罐,颜色丰富又能形成对比,光照下让木纹若隐若现,很有设计细节。休闲沙发的大块黑色,让空间材质丰富同时保持配色的完整。
再往里面走是开放式厨房。墙面烟熏橡木茶壶架和对面的书架呼应,背面的银箔材质又让北房的两面墙相似却又不单调。
银箔的反光可以达到展柜效果,如果使用金属板不仅会晃眼,还会和传统的古建筑有格格不入的反差。
随着每天太阳的东升西落,银箔也会反射出不同的色彩。台面使用同样反光的黑色大理石,同样增强了质感的丰富性。
△银箔材质反光颜色变化。黑色岩板打造的岛台上安置了水池和灶台,隐藏式的油烟机让岛台保持最大的简约。带有纹理的木材、哑光的皮革、亮面的大理石和规整有力的岩板,整个北房就是用不同材质的黑色给人似曾相识又初次相见的感受。而且在细节上设计师也强调了这个颜色,踢脚、射灯轨道、把手和门窗框也用黑色达到统一。
#04 加建一个倒 T 字。玻璃连廊显层次,屋顶平台看风景。南北房之间的连廊满足主人的待客需求,三面玻璃让人在这里可以将前院、后院收眼底,抬头还能看见天上的云和飞舞的鸟雀。
厨房、客厅和餐区之间没有门和墙的阻拦,动线简单带来使用方便。4 米长的条案完全满足屋主会客谈天、饮茶吃饭等多种用途。闲时,屋主在这个桌子上练字作画,也不会因为光线昏暗影响心情。
走廊尽头就是屋主的私人空间,一边是卫生间,另一边是卧室。卫生间做了干湿分离,双台盆让夫妻俩人拥有各自的空间,木质台面可以随手收纳洗漱用品。
淋浴间面对着前院,增加了采光。墙面通长的壁龛,用来放置洗浴用品。为了保持色彩的一致,卫生间用了暖色的大理石瓷砖。淋浴间地面做了防滑切线处理。
卧室的床是一个抬起的榻榻米,床下和侧墙都可以用来储物。卧室窗外是后院,后院中间的水泥石台上种了一棵枫树,随着枫叶的颜色变化,在家中既可以感受四季的色彩。
水泥台盆的四周铺满黑色石子,有传统山水园林的意境。夜晚,灯带勾出院子的边际,四周点缀的壁灯让氛围更加安逸。
新建后的南屋屋顶被做成一处观景平台,主人可以在这里体验《邪不压正》中老北京屋顶错落的城市景观。
#05
开放很重要
室内室外无界限,全屋配色要统一
在这座小院中开放是最重要的东西,开放不仅让紧促的小院得到良好的采光,还可以打通各个功能区。
整个空间没有硬隔断,室内外全部用玻璃隔开,有四个门可以连接内外,随意穿梭,室内外界限模糊。
△ 空间动线图
在北方大面积采用玻璃就会遇到保温隔热难的问题。设计师采用了隔温效果好的玻璃,搭配室内的地暖和中央空调进行保温。同时在玻璃房的上方,设置了一个可遥控的遮光帘,在夏天随时阻隔炎炎的烈日。
室内功能区域也没有很强的分割,室内全部用同一种木地板铺装,就是为了达到统一的效果。卧室和卫生间的门使用顶天的平开门,开启时候会有一种屏风的感受,弱化门和墙的概念,同时也保证了私密性。
设计师说:“设计现代四合院依然要用传统的方式,青石、青砖、灰瓦、老榆木等传统材料和现代设计的搭配,才能让沉寂的传统建筑焕发新生。”
编辑 / 白猫
图片 / Mooi timeless 建筑室内设计事务所提供
客服
消息
收藏
下载
最近


































