查看完整案例


收藏

下载
外观于物,内感于心,居所总是在由表及里的渗透中,关照情感,滋养日常。天安别墅样板间坐落于常州西太湖之畔,由方磊领衔壹舍团队担纲设计,依托原有地域、水系等特性,以感知思维切入,融合酒店式的卓越体验,不断探索自然语境下的至臻之居,旨为当代塔尖精英探寻一种全新的宜居范本,让生活与精神全然丰盈。
“天赋谧境,是自然的馈赠;湖光作序,碧水为脉,深研理想人居。我们从项目在地性思考,不囿于某种边界,根植于生活点滴,用现代设计语汇糅合酒店格调之美,从容进退间,品味人文积淀的府邸韵味,于情境调度中激发无限的想象。”方磊如是概述。
01开篇 & 造境
以写意笔触营造归家的极致仪式感,虚实相生的造景手法,光影流动、意境悠然。金属格栅作底,吊灯叠映其上,光源映射强化细节,随即楼梯转角一隅也隐约而现,目之所及材质碰撞、造型辉映,一切浑然交融、尽显和谐。
循步向前,基于原始建筑的地势落差,梳理出体块关系,并使之层叠与衔接,在起伏变化中,穿梭递进。诚然,这也是因地制宜的设计演绎。
客餐厅于横轴上联动而设,熟悉的金属格栅对称散布于四角,开阔大气的东方格调不彰自显。背景墙石材对拼奠定客厅沉稳俊朗的主基调,软装陈设将大气雅致与质感表现相平衡,以期互补共生。烛火摇曳,美好愉悦氛围也随之渲染。
作为横纵交互的中心点,餐厅更关乎彼此的响应与关联。借由千丝万缕的紧密包裹与光芒散射,水晶通体管宛若立体艺术装置,熠熠生辉,自成一景。设计师以清晰的脉络串联起点、线、面、体,高低交错、张弛有度,为用餐增添一抹空灵优雅之韵。
汲取设计元素的延续,强化整体感受。拼叠有序、内凹成势、弧度起伏之貌同样出现在吧台,底座则运用金属构件又可削弱体量厚重感,对立与融合的张力亦潜藏于细部之中。
以融洽的存在,表达静谧自由的本色。将木盒子浑然嵌入,中厨于内、西厨于外,这包含着对每一寸空间的周全应用,也是对功能需求的完善与补充。
02 演绎 & 升华
参照酒店式起居场景,于二楼构造枢纽之地,套间居室环绕。提取颇具东方意象的屏风形态,对沙发呈包裹姿态,并以此开启围合布局。内敛规整的低调秩序亦进一步描摹酒店气韵,透过阵列式陈设、高饱和色点缀,强化典雅之境。在深浅对比、错落有致中,仪式感与随性气息兼具。
酒店式居住感受,切实落笔在体验层面,主卧套间可谓对此深度践行。主背景显著的线条韵律、内凹的弧度极具包容抚慰之感,清晰可见其与一楼一脉相承之意。非对称的床头柜设计,也蕴含着对上下体量、前后交互的思考。搭配两侧留白,提升感官的从容呼吸。
主卫顶部设有天窗,借助光线变化塑造着微妙动态,并让这一隅实现室内外的交融与对话。此外,镜面的尺度、位置、造型,乃至圆弧的边角处理,无一不凝聚着设计师对功能与美学的融汇捕捉。
利落的块面,直观勾勒出长辈房套间简洁清秀的风貌。素雅的底色、亲和的材质,温润又不失层次。入门处柜体外侧设置镂空式格架,有效减少逼仄感,强化其舒缓之气。于外则坐拥双露台,让两个方向各不同的景致温情陪伴四季的更替,尽释闲情雅韵。
格栅以一气呵成的过渡关联,加强卧室与卫浴空间的连贯性,立体而生动。
晚辈房套间以色调为触点氤氲开静谧安适气息,又引入纹路、肌理的细腻呼应,传递出克制的高级。悬浮柜体辅以内嵌格架,并配与灯光烘托,丰富场景层级。
导入建筑美学,让不同体块及材质的咬合穿插,格局分明又有形体之变,释放简练质感。
多元功能的整合,并不等同于叠加合并,背后承载着对需求做更深层的探讨与分析。弹性的疆域,具有包容未来的特性,诠释复合场域的平衡奥义,内核中必然不能缺少对整体设计的延续与响应。
细节总潜藏在方寸间,客卫利用体块、纹理、光影强化个性,创造通透轻盈之感,亦兼顾本质的使用需求。
03 沉浸&共融
抵达地下一层,玻璃砖配合灯光的上下烘托,显得愈发通透与醒目。遵循中国古典的步入方式,并体察视觉落点,渐渐揭开序幕,引导向前探索。
休闲区从兴趣爱好、娱乐社交的触点出发,依托建筑结构延展并利用采光井,将光照引入,打破沉闷。在软装陈设上,也充分考量其与空间轮廓的适配以及构成关系,在形、色、质上全方位统筹,精心呵护每一细腻点滴中的惬意享受。
常州天安别墅样板间,敏锐关照居者内心感受,将国际视野、酒店风情、人文气息注入这一湖岸府邸,外部视觉的流露与内在情感的映射,相得益彰。在逐步的引导与浸润下,触发品质和精神深层共鸣,共筑奢享之居。
效果图▲
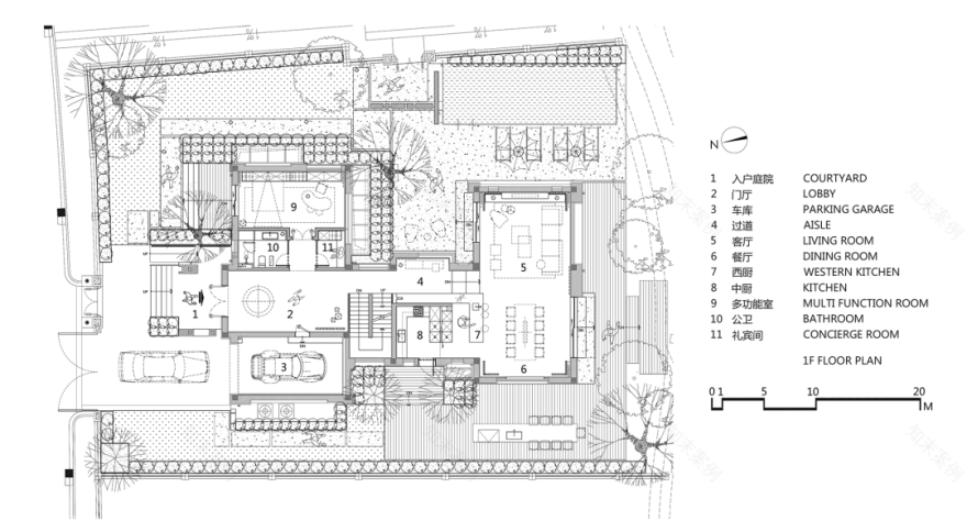
1F 平面图▲
2F 平面图▲
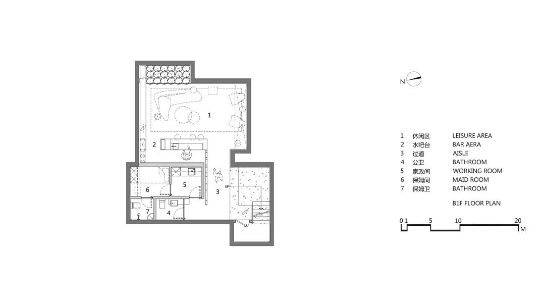
B1F 平面图▲
项目信息
项目名称|常州天安别墅样板间
设计面积|480㎡
完工时间|2022 年 10 月
设计公司|ONE HOUSE DESIGN 壹舍设计
设计主创|方磊
参与设计|蒙程鹏、柴润之、胥磊、刘思宇、李斌、陈汶霄
视觉陈列|李文婷、孙雨辰、王伊荣、李静
项目摄影|张静
方磊,现代简约设计先行者,都市精英生活方式引导者,壹舍设计创始人。近年来获得诸多国内外室内设计大奖。他认为设计师思维是感性与理性的结合,擅长用现代简约的美学精神展开空间多维描述,以克制与平衡的手法、表象和内在的矛盾统一来表现丰富而纯粹的设计本质。
ONE HOUSE DESIGN 壹舍设计由方磊创建于 2009 年,凝聚了一批拥有前瞻性理念、国际化视野的活力团队。作为集室内设计、软装设计、环境设计等一体化的综合性专业设计公司,壹舍主要从事地产售楼处、样板间、会所、商业空间、办公空间、精品酒店等设计项目,为众多知名地产商提供至高水准的个性化定制服务。以过硬的专业能力和不懈的探索,积极面对未来与市场的全新考量,致力于当代新人居观念的启迪与更新,为设计提供更多可能。
壹舍设计代表作:
▼壹舍设计新办公室
▼上海季公馆
▼嘉华国际南京嘉璟峰售楼处
▼上海 Smelix 仕觅男装高定店
投稿及
如果你喜欢乐活设计,一定要把“newlohasdesign”置顶哦!
↓
或者点击左下角“阅读原文”,迅速添加!
客服
消息
收藏
下载
最近




































































