查看完整案例


收藏

下载
极简主义风格的居室设计极简主义(Minimalism),并不是现今所称的简约主义,是第二次世界大战之后60年代所兴起的一个艺术派系,又可称为"Minimal Art",作为对抽象表现主义的反动而走向极致,以最原初的物自身或形式展示于观者面前为表现方式,意图消弥作者借着作品对观者意识的压迫性,极少化作品作为文本或符号形式出现时的暴力感,开放作品自身在艺术概念上的意像空间,让观者自主参与对作品的建构,最终成为作品在不特定限制下的作者。
极简主义(Minimalism)以简单到极致为追求,是一种设计风格,感官上简约整洁,品味和思想上更为优雅。
今日分享
陕西风华盛典装饰设计工程有限责任公司
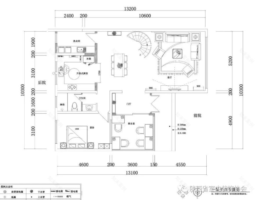
杨晓梅《君临城邦如园5-101》
极简主义风格设计作品
效 果 图 及 平 面 图:
设计说明:
本案设计风格为极简风格。即是身心舒适。
本案业主是事业小成即将步入婚姻的90后小夫妻,日常的工作事务基本属于国内国外之间转战。快节奏的工作使得他们需要一个便捷简单又舒适的空间来慰藉忙碌的身体和灵魂。
极简主义(Minimalism)并不局限于艺术或设计,它是极简主义者(Minimalist)奉行的一种哲学思想,价值观以及生活方式--“极简主义”生活方式。简化”是有底线的,并不是所有的生活和事务都可以被简化,所以我们应该首先考虑“简化”的前提。
第一,“简化”应该保留你所必需的。
第二,“简化”应该尊重个体之间的“差异性”。
第四,“简化”不能改变太多或太剧烈。
第五,应该从总体来评估“简化”的效果。
第六,“简化”是对于自己的生活而言的。
“极简”本身只是一种最终的目标或趋向,而不是一杆固定的标尺,也不是一个确定的、适合于衡量每一个人的相同的标准。我们无法说,谁的生活、怎样的生活能称为“极简主义生活”。实际上,每一个人的生活很难同其他人的生活相比较。但我们能够说,相对于你以前更为繁忙的生活,你现在的生活已经进行了最大可能的“简化”,并且不能再被“简化”了,这就是“极简单主义生活”。
“老板电器杯”陕西省第十届室内设计大赛获奖作品
作品类别:住宅空间 实例类
获奖奖项:铜 奖
项目名称:君临城邦如园5-101
设计团队:杨晓梅
参赛单位:陕西风华盛典装饰设计工程有限责任公司
主创设计师 杨晓梅
参赛图版
大赛简介
陕西省室内设计大赛是陕西室内装饰协会常设的一项专业性设计大赛,是陕西省室内装饰行业的最具有权威性、专业性和影响力的设计大赛,受到了全行业高度关注和社会各界广泛参与。大赛在推出设计新锐和精英、扩大设计团队及个人的公众认知度、加强“设计创新”等方面获得极大的社会影响;获奖团队和个人作品带来“设计驱动”,在创意设计、室内装饰、关联产业等领域取得了显著成效。该赛事进一步提高了我省室内设计水平,推动了全行业和相关产业的创新发展。
2018年陕西省第十届室内设计大赛,由“老板电器”独家冠名赞助。
陕西省室内装饰协会家装专业委员会
地址:大明宫建材家居·钻石店
- END
-
客服
消息
收藏
下载
最近
















