查看完整案例


收藏

下载
东方禅意
浑然天成
相聚吃茶暖
辗转长清宁
今日分享
养老康复会馆设计
位于西安市东大
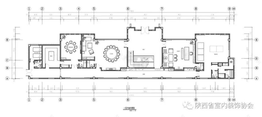
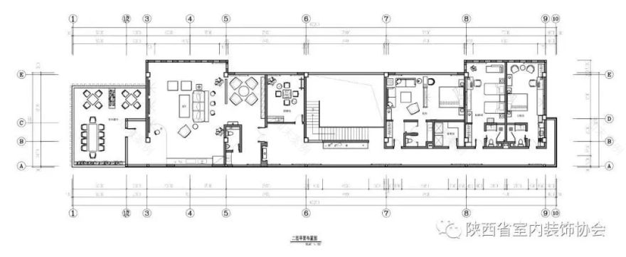
实 景 照 片 及 部 分 施 工 图:
设计说明:
沐易堂的设计以现代审美为基调,以中国古建筑为灵感,挖掘传承与创新不可言破的玄机,传递宁移白首之心对生命至死方休的热爱,体现当下人们对幸福、美好、富裕、吉祥的追求。
春花流水沓然去,别有天地非人间。
透过质朴平和的东方禅意,独具特色的圆、方、原本的自然石材,构建一个富有浑然天成的含蓄美。年华,在轮回中逐渐老去,心境,在辗转出滋长清宁。闲暇时刻,三五知己,相聚拥居,吃茶聊天,把盏言欢,不亦乐乎。古朴厚重的生活气息在这里是人们共同的记忆。
老当益壮缘在沐易,尽享天伦心是归处。
沐易堂方阔庭院的设计集山川之灵气,融文化之精华。不深不浅、高雅柔情中国传统色彩里最深情的颜色——相思灰大面积的运用,使得建筑与自然形成一种共享互联。灰色墙面对称高挂红色串灯,大理石门框红的对联热烈温暖,门前一对石狮以特别的方式护佑着浅浅的美好。
曲径通幽的石砖路、圆形月亮门与房屋主体建筑的主色调一脉相承,继续讲述即使相思成灰,仍然痴心不改。宁可食无肉,不可居无竹,与竹相伴真洒脱。青翠欲滴的竹书写着稳重、优雅,不亢不卑,宁折不弯的君子之风。牵着你的手走过这座桥,桥的这头是白发,那头是青丝。桥下清泉石上流,大自然馈赠的山石看似无意,实则是用心堆砌,旨在营造出山水环绕,舒缓起伏的灵动。
“老板电器杯”陕西省第十届室内设计大赛获奖作品
作品类别:公共空间 实例类
获奖奖项:铜 奖
项目名称:沐易堂——养老康复会馆
设计团队:刘建军
参赛单位:西安市群众艺术馆
项目地址:西安市长安区东大
项目时间:2017年
设计面积:约1000平方米
主创设计师 刘建军
参赛图版
大赛简介
陕西省室内设计大赛是陕西室内装饰协会常设的一项专业性设计大赛,是陕西省室内装饰行业的最具有权威性、专业性和影响力的设计大赛,受到了全行业高度关注和社会各界广泛参与。大赛在推出设计新锐和精英、扩大设计团队及个人的公众认知度、加强“设计创新”等方面获得极大的社会影响;获奖团队和个人作品带来“设计驱动”,在创意设计、室内装饰、关联产业等领域取得了显著成效。该赛事进一步提高了我省室内设计水平,推动了全行业和相关产业的创新发展。
2018年陕西省第十届室内设计大赛,由“老板电器”独家冠名赞助。
陕西省室内装饰协会家装专业委员会
地址:大明宫建材家居·钻石店
- END
-
客服
消息
收藏
下载
最近

























