查看完整案例


收藏

下载
木器之美我们分享过不少案例
木作的可发挥空间非常大
作为材料区呈现设计师的创意时
也有不可替代的特质
今日分享餐厅设计
时尚简洁的
西贝莜面
效 果 图 及 部 分 施 工 图:
设计说明:
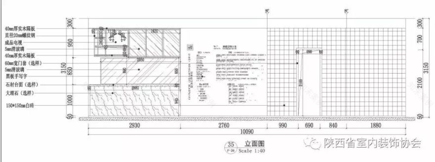
根据西贝的最新改革策略,整体店面时尚化,简洁化来进行设计,采用大量的原色实木,辅助铁艺来打造餐厅特色,以适应商场快时尚和餐厅的独特复制性。
西贝餐厅,面积四百左右,商场人流量大,考虑翻台率,我们在设计上采用统一的原木色系,着重考虑动线问题,简化所有动线,避免重复动线,快操作,抢时间,包括后厨等.....在整体后厨这一块,采用一字厨房,减少操作人员来回走动和转身的时间。
“老板电器杯”陕西省第十届室内设计大赛获奖作品
作品类别:公共空间方案类
获奖奖项:铜 奖
项目名称:重庆西贝莜面村
设计团队:刘 磊
陈雅煦
参赛单位:西安锦上添花装饰设计工程有限公司
主创设计师 刘 磊
参赛图版
大赛简介
陕西省室内设计大赛是陕西室内装饰协会常设的一项专业性设计大赛,是陕西省室内装饰行业的最具有权威性、专业性和影响力的设计大赛,受到了全行业高度关注和社会各界广泛参与。大赛在推出设计新锐和精英、扩大设计团队及个人的公众认知度、加强“设计创新”等方面获得极大的社会影响;获奖团队和个人作品带来“设计驱动”,在创意设计、室内装饰、关联产业等领域取得了显著成效。该赛事进一步提高了我省室内设计水平,推动了全行业和相关产业的创新发展。
2018年陕西省第十届室内设计大赛,由“老板电器”独家冠名赞助。
陕西省室内装饰协会家装专业委员会
地址:大明宫建材家居·钻石店
- END
-
客服
消息
收藏
下载
最近














