查看完整案例


收藏

下载
自古大唐之地
诗境文意繁荣
历史人文丰富
日起日落,云开云合
星空变幻与东方哲学中的
天人合一的意象
是本案设计之本。
效果图及部分施工图:
设计说明:
求水波浩渺、静谧深邃和天清云淡的静秀安宁。
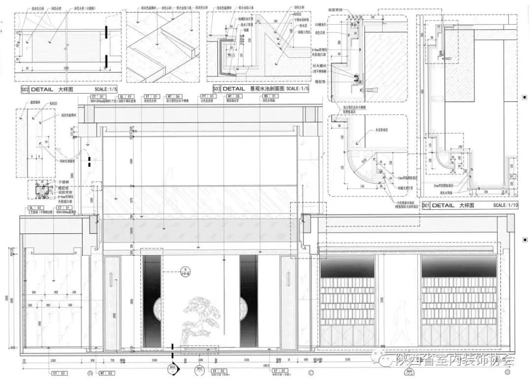
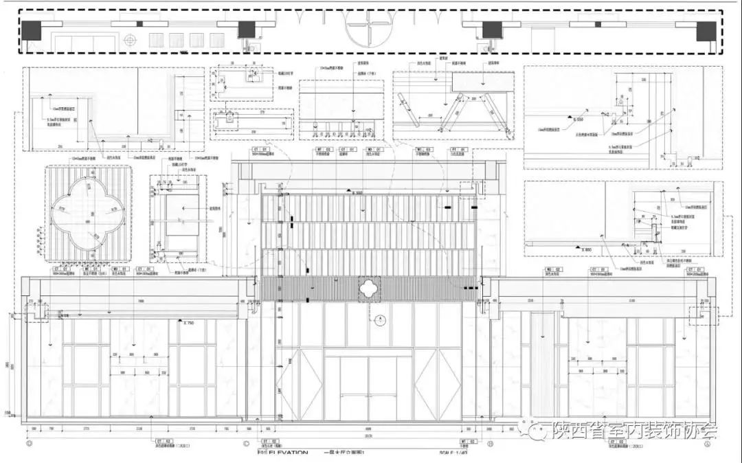
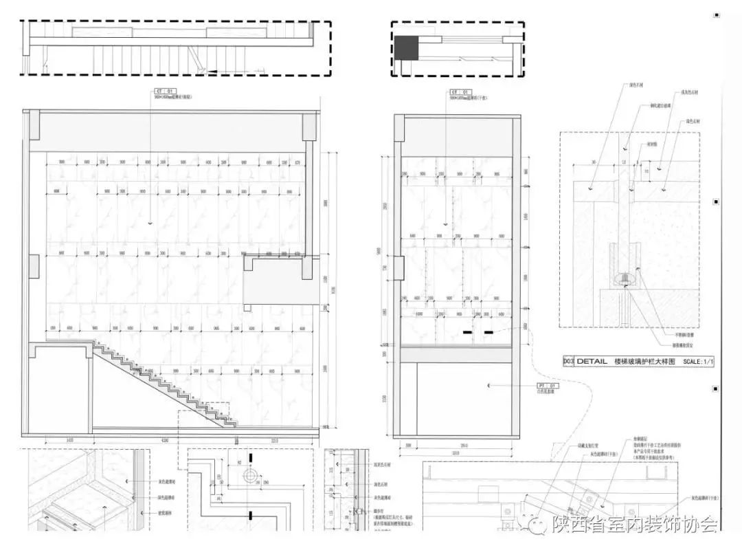
定制图案的夹胶片玻璃造型,宛如一扇扇门、一座座山,一排排林立成售楼部视觉中心的艺术装置,形成无限丰富的层次美感,庄重古典的传统中式情韵弥漫而生。
大厅接待区选用幽蓝色沙发椅,搭配木材的清雅安然,与整体氛围相协。
设计将山水烟岚缭绕的自然融入空间之中,营造出与自然无比亲和的审美境界。水墨的氤氲之气与带有花灰色纹理的大理石之间低调地呼应着,同时也体现了硬装和软装之间的契合无间。
“老板电器杯”陕西省第十届室内设计大赛获奖作品
作品类别:公共空间方案类
获奖奖项:铜 奖
项目名称:大唐府邸项目售楼部(方案)
设计团队:李 娟
陈 龙
参赛单位:陕西科技大学
项目地点:
西安市未央区 凤城二路瑞和大唐府邸11#楼
项目面积:
1000㎡
主要用材:
仿石材超薄砖、天然石材、木饰面板、夹胶片玻璃、古铜不锈钢
主创设计师 李 娟
参赛图版
大赛简介
陕西省室内设计大赛是陕西室内装饰协会常设的一项专业性设计大赛,是陕西省室内装饰行业的最具有权威性、专业性和影响力的设计大赛,受到了全行业高度关注和社会各界广泛参与。大赛在推出设计新锐和精英、扩大设计团队及个人的公众认知度、加强“设计创新”等方面获得极大的社会影响;获奖团队和个人作品带来“设计驱动”,在创意设计、室内装饰、关联产业等领域取得了显著成效。该赛事进一步提高了我省室内设计水平,推动了全行业和相关产业的创新发展。
2018年陕西省第十届室内设计大赛,由“老板电器”独家冠名赞助。
陕西省室内装饰协会家装专业委员会
地址:大明宫建材家居·钻石店
- END
-
客服
消息
收藏
下载
最近
























